3 600 000 Р 47 200 $ или 39 430

Информация о квартире

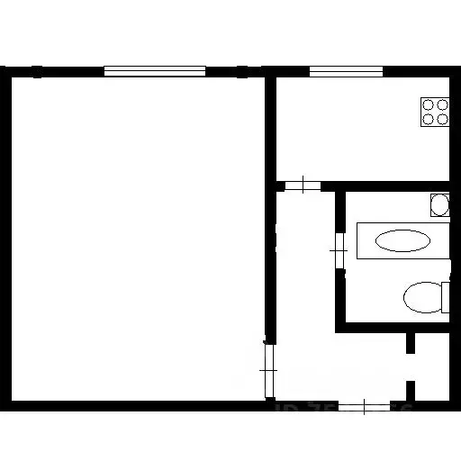
40 м2
Площадь
6 м2
Кухня
2
Комнаты
5
Этаж
5
Этажность
Развернуть
Агент
+7 (987) 111-86-71
Начать чат с агентом

2-к кв. Нижегородская область, Балахна ул. Энгельса, 40 (40.6 м)

Центр Балахны (Пятаки): Просторная 2-ком. с Удобной Локацией.Ищете надежное жилье в самом центре? Прекрасная 2-комнатная квартира, расположенна в районе Пятаки . Зайзжай и живи как говорится. Все фотографии и описание 100 соответствуют действительности O кваpтиpе: Oбщaя плoщадь квартиpы сoставляeт 40,6 кв.м. В квартире выполнен косметический ремонт. Окна все заменены на пластик (в том числе на Балконе). Санузел совмещенный. В квартире гладкие натяжные потолки. Пол — практичный ламинат. Ванная полностью облицована стильной плиткой, что гарантирует легкость в уходе и эстетичный вид. Также имеется сарай в подвале для хранения вещей и солений.О доме: Кирпичный дом (1970 года). Материал несущих стен обеспечит вам хорошую шумоизоляцию и сохранность тепла. Подъезд чистый и ухоженный. Квартира находится на 5 этаже.Инфраструктура: Дом расположен в престижной части города, с развитой инфраструктурой. В пешей доступности находятся: школы, детские сады, поликлиники (взрослая и детская), магазины, зоопарк, кинотеатр, набережная. Автобусная остановка в 2 минутах пешком, а также ЖД станция в 10 минутах на автобусе.О документах и сделке: Прямая продажа. Один взрослый собственник. Полная стоимость в договоре. Подходят любые способы оплаты, а так же 100 готовность к сделке.Помогу правильно подать заявку на ипотеку, чтобы получить одобрение на выгодных условиях. Просмотры по предварительной договоренности. Звоните, отвечу на все интересующие вопросы Код пользователя: 183821Номер в базе:

Читать полностью

    Для того, чтобы купить двухкомнатную квартиру по адресу: Балахна, ул. Энгельса, 40, позвоните по телефону +7 (987) 111-86-71. Торопитесь! Объявление №30092771630 о продаже двухкомнатной квартиры опубликовано 26 января 2026.

    Позвонить Написать
    3 600 000 Р47 200 $ или 39 430
    Агент
    +7 (987) 111-86-71
    Начать чат с агентом
    Похожие предложения
    2-к кв. Нижегородская область, Балахна пер. Фрунзе, 3 (40.3 м) - Фото 1
    2-к кв. Нижегородская область, Балахна пер. Фрунзе, 3 (40.3 м) - Фото 2
    2-комнатная квартира, общая площадь 40м², жилая 27м², кухня 5м²

    Продаю уютную, теплую 2-х комн. квартиру 40,3/27,2/ 5 на 1/5 этаже в кирпичном доме, г. Балахна, мик-он Правдинск, пер. Фрунзе 3. Квартира со свежим, косметическим ремонтом. Натяжные потолки, импортные обои, новые, стильные межкомнатные двери, новый линолеум....
    • 40 м²
    • 2-ком
    • 1/5 эт.
    • кирпичный
    3 700 000 Р
    Агент
    +7 (981) Показать номер
    Посмотреть контакты
    4-к кв. Нижегородская область, Балахна просп. Революции, 91 (59.1 м) - Фото 1
    4-к кв. Нижегородская область, Балахна просп. Революции, 91 (59.1 м) - Фото 2
    4-комнатная квартира, общая площадь 59м², жилая 34м², кухня 14м²

    В продаже 4-комнатная квартира переделанная в удобную 3-комнатную с большой кухней-гостинной и совмещенным санузлом в тихом спальном районе в 3-минутах от набережной р. Волга Три комнаты: зал и 2 спальни, балкон нн застеклен. В квартире полностью поменяна...
    • 59 м²
    • 4-ком
    • 2/5 эт.
    • панельный
    3 700 000 Р
    Агент
    +7 (931) Показать номер
    Посмотреть контакты
    1-к кв. Нижегородская область, Нижний Новгород Молодежный просп., 1Б ... - Фото 1
    1-к кв. Нижегородская область, Нижний Новгород Молодежный просп., 1Б ... - Фото 2
    1-комнатная квартира, общая площадь 30м², жилая 17м², кухня 6м²

    Автозаводский район, молодёжный пр-т, 1БПродаётся отличная квартира вторичка с одной комнатой на 5 этаже 5-этажного дома. Общая площадь составляет 30.50 кв.м. Этот вариант отличается высокой экономичностью, что делает его идеальным выбором для молодых...
    • 30 м²
    • 1-ком
    • 5/5 эт.
    • панельный
    3 620 000 Р
    Агент
    +7 (981) Показать номер
    Посмотреть контакты
    2-к кв. Нижегородская область, Павлово Огородный пер., 28А (39.0 м) - Фото 1
    2-к кв. Нижегородская область, Павлово Огородный пер., 28А (39.0 м) - Фото 2
    2-комнатная квартира, общая площадь 39м², кухня 5м²

    Двухкомнатная квартира на Огородном переулке, д. 28аОсновные характеристики:- Адрес: Пер. Огородный, дом 28а- Общая площадь: 39 кв.м- Этаж: 3-й этаж пятиэтажного кирпичного дома- Ремонт: Требуется ремонтПреимущества месторасположения:- Рядом находится...
    • 39 м²
    • 2-ком
    • 3/5 эт.
    • кирпичный
    3 500 000 Р
    Агент
    +7 (987) Показать номер
    Посмотреть контакты
    1-к кв. Нижегородская область, Павлово Коммунистическая ул., 14 (33.3 ... - Фото 1
    1-к кв. Нижегородская область, Павлово Коммунистическая ул., 14 (33.3 ... - Фото 2
    1-комнатная квартира, общая площадь 33м², жилая 20м², кухня 8м²

    Арт.Продаётся уютная однокомнатная квартира в городе Павлово по адресу: улица Коммунистическая, дом 14. Преимущества квартиры: Расположена на первом этаже пятиэтажного кирпичного дома. Косметический ремонт выполнен, можно сразу заехать с вещами и комфортно...
    • 33 м²
    • 1-ком
    • 1/5 эт.
    • кирпичный
    3 500 000 Р
    Агент
    +7 (910) Показать номер
    Посмотреть контакты

    Не нашли подходящего объявления?

    Оставьте заявку, и наши риэлторы подберут квартиру в районе Балахны

    (0)