Реализация объекта недвижимости приостановлена

Информация о коттедже

92.0 м2
Площадь
2
Этажность
5.0 cоток
Участок

Дополнительная информация

Дом продаётся вместе с участком
есть
Развернуть

Дом в Нижегородская область, Богородск пер. Победы (92 м)

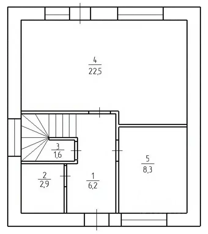
Площадь - 92 кв.м., земельный участок 5,3 соток.В доме 2 этажа, подключены и заведены ВСЕ КОММУНИКАЦИИ.Фундамент монолитный, буронабивные сваи с ростверком.Стены из газосиликатного блока толщиной 300 мм, утепление 50 мм, облицовка кирпич.Кровля металлочерепица.Межэтажные перекрытия, как и лестница монолитные, что является гарантией надежности и долговечности.Планировка дома:1 этаж: кухня-гостиная, комната, санузел, холл, хоз. комната.2 этаж: 3 комнаты, санузелДом качественный, застройщик надёжные приезжайте и убедитесь самостоятельно.Стоимость: . 500 тыс..Возможно выполнение в предчистовой отделке: . 500 тыс..

Читать полностью

    Реализация объекта недвижимости приостановлена

    Не нашли подходящего объявления?

    Оставьте заявку, и наши риэлторы подберут купить дом в районе Богородска

    (0)