Реализация объекта недвижимости приостановлена

Информация о квартире

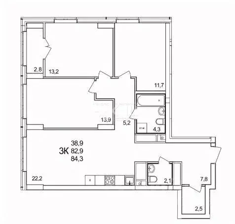
84.0 м2
Площадь
38.0 м2
Жилая
22.0 м2
Кухня
3
Комнаты
17
Этаж
25
Этажность

Дополнительная информация

Тип дома
монолит
Развернуть

3-к кв. Нижегородская область, Нижний Новгород д. Анкудиновка, КМ ...

В современном и развивающемся жилом комплексе Анкудиновский парк, продается квартира. Двор без машин, много детских площадок, своя школа и детский сад.В шаговой доступности кафе, магазины, аптеки, а для прогулок- ботанический сад. Хорошая, продуманная планировка: прихожая 7,8м2 + кладовая 2,5м2кухня+ гостиная 22,2м2комнаты 11,7м2 + 13,2м2 + 13,9м22 санузла 2,1м2 и 4,3м2утепленная лоджия 2,8м2 От застройщика есть дополнительные скидки: -5 для иногородних-7 для семей с 3-мя детьми-10 скидка для участников СВО Квартира сдается с черновой отделкой

Читать полностью

    Реализация объекта недвижимости приостановлена

    Не нашли подходящего объявления?

    Оставьте заявку, и наши риэлторы подберут квартиру в новостройке в районе Анкудиновки

    (0)