350 000 Р 4 480 $ или 3 850

Информация об помещении

1
Этаж

Состояние и оснащение

Количество этажей
1
Развернуть
Агент
+7 (915) 931-46-03
Начать чат с агентом

Производственное помещение в Нижегородская область, Бор Малое Пикино ...

Сдам в аренду здание 1024 кв.м. Отдельностоящее кирпичное здание. Высота потолков около 5 м. Высокие ворота.Электричество 150кВт. Заведено водоснабжение и сделана канализация.Здание в отличном состоянии, пригодное для работы.Сделана крыша, кирпичные стены, идеально ровный заливной пол.В здании имеется отдельное помещение под кабинет и душевые.1 большой въезд (можно сделать несколько). Разрешены перепланировки.Охраняемая территория, видеонаблюдение, шлагбаум, удобный подъезд и большая парковка для фур.Здание находится на территории ДПМК (сразу за магазином 26).Цена указана за аренду всего здания.По всем вопросам звоните.

Читать полностью
    Позвонить Написать
    350 000 Р4 480 $ или 3 850
    Агент
    +7 (915) 931-46-03
    Начать чат с агентом
    Похожие предложения
    Производственное помещение в Нижегородская область, Нижний Новгород ... - Фото 1
    Производственное помещение в Нижегородская область, Нижний Новгород ... - Фото 2
    Арт.Сдаю в аренду на -1 этаже теплое производственно-складское помещение 770 м2 и теплое бытовое помещение с сан/узлом 43 м2 в Ленинском районе на ул.Памирская.Помещение квадратной формы,азделено 4-мя колоннами. Есть окна. Разгрузка осуществляется...
    • -1/4 эт.
    350 000 Р
    Агент
    +7 (910) Показать номер
    Посмотреть контакты
    Производственное помещение в Самарская область, Самара ул. Земеца, 4 ... - Фото 1
    Производственное помещение в Самарская область, Самара ул. Земеца, 4 ... - Фото 2
    Аренда от 1000 м2 производство/склад на базе адрес: Самарская область, г. Самара, ул. Земеца, д. 4. От собственника, без комиссии.Аренда отапливаемых помещений под производство или склад в производственном корпусе с кранбалками, бытовыми, подсобными...
    • 1/1 эт.
    350 000 Р
    Агент
    +7 (919) Показать номер
    Посмотреть контакты
    Производственное помещение в Московская область, Дедовск г. Истра ... - Фото 1
    Производственное помещение в Московская область, Дедовск г. Истра ... - Фото 2
    г. Дедовск, ул. Гагарина, д.18Б. Сдается в долгосрочную аренду отдельный этаж 340 кв.м в производственном здании на закрытой территории, есть возможность увеличения площади за счет других этажей. Удобная планировка: цех, столовая, раздевалки, кабинет,...
    • 1/4 эт.
    350 000 Р
    Агент
    +7 (985) Показать номер
    Посмотреть контакты
    Производственное помещение в Владимирская область, Александровский ... - Фото 1
    Производственное помещение в Владимирская область, Александровский ... - Фото 2
    Арт.Сдается в аренду отдельно стоящее здание в с. Большое Каринское Идеальное решение для вашего бизнеса Предлагаю в аренду просторное отапливаемое отдельно стоящее здание площадью 1406,1 м построенное на земельном участке 1,11 га, в селе Большое Каринское...
    • 1/2 эт.
    351 500 Р
    Агент
    +7 (923) Показать номер
    Посмотреть контакты
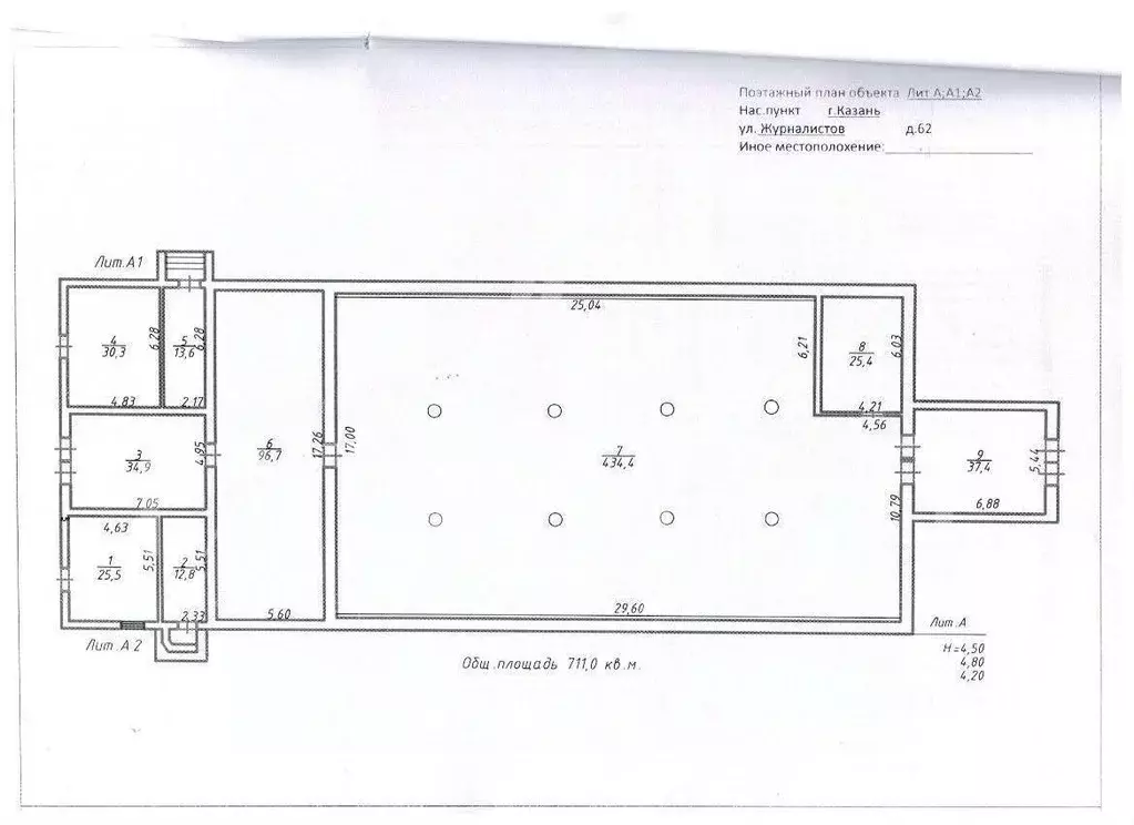
    Производственное помещение в Татарстан, Казань ул. Журналистов, 62к7 ... - Фото 1
    Производственное помещение в Татарстан, Казань ул. Журналистов, 62к7 ... - Фото 2
    Предложение от собственника Предлагаем в аренду производственно-складское 711 кв.м.- доступ 24/7;- мощность э/э 80 квт.;- высота потолков 4.5м.;- пол промышленный бетон;- автономное отопление пеллетный котел;- ворота 4х4м.;- свой сан.узел. Номер в базе:...
    • 1/1 эт.
    355 500 Р
    Агент
    +7 (919) Показать номер
    Посмотреть контакты

    Не нашли подходящего объявления?

    Оставьте заявку, и наши риэлторы подберут производственное помещение в районе Бора

    (0)