8 500 000 Р 107 600 $ или 93 860

Информация о коттедже

153 м2
Площадь
2
Этажность
7 cоток
Участок

Дополнительная информация

Дом продаётся вместе с участком
есть
Развернуть
Агент
+7 (906) 560-75-92
Начать чат с агентом

Дом в Нижегородская область, Дивеевский муниципальный округ, деревня ...

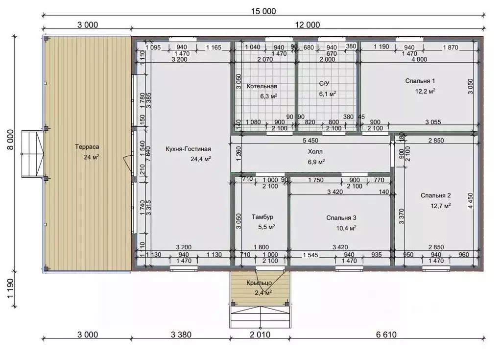
Код объекта: 1930010.Вашему вниманию предлагается уникальный объект недвижимости — двухэтажный дом в деревне Осиновка Дивеевского муниципального округа Нижегородской области, расположенный по адресу: Новая улица, 43. Этот дом, построенный в 2013 году, станет идеальным выбором для семей с детьми, пар без детей, пожилых пар и инвесторов.Расположение дома отличается особой привлекательностью благодаря удобному подъезду по асфальтированной дороге и хорошей транспортной доступности. Близость к природе и одновременно наличие всех необходимых коммуникаций (электричество, водоснабжение, газ, канализация) делают этот дом идеальным местом для проживания. Дом построен из бруса, перекрытия — деревянные, кровля покрыта профнастилом.Общая площадь дома составляет 153,7 кв. м, из которых 50,3 кв. м — жилая площадь. Высота потолков в 2,8 м создаёт ощущение простора и свободы. Дом имеет четыре комнаты с площадями 16,5 + 15,7 + 9,3 + 8,8 кв. м, а также просторную кухню площадью 60 кв. м. Дом подходит для круглогодичного проживания благодаря индивидуальному котлу отопления и чистовому ремонту.На участке площадью 7,34 соток есть баня, что станет дополнительным преимуществом для любителей расслабиться и отдохнуть.Этот дом — отличное вложение для инвесторов, поскольку его расположение и состояние делают его привлекательным для аренды или последующей перепродажи. Для семей с детьми и пожилых пар дом будет идеальным местом для спокойной и комфортной жизни, удалённой от городской суеты, но с сохранением всех удобств современного проживания.Позвоните нам прямо сейчас, чтобы узнать больше и записаться на просмотр Мы гарантируем безопасную сделку и юридическую поддержку нашим клиентам. Поможем одобрить ипотеку с сниженной ставкой.

Читать полностью

    Для того, чтобы купить 2-этажный коттедж по адресу: Осиновка, ул. Новая, 43, позвоните по телефону +7 (906) 560-75-92. Торопитесь! Объявление №50016587124 о продаже двухэтажного коттеджа опубликовано 19 ноября 2025.

    Позвонить Написать
    8 500 000 Р107 600 $ или 93 860
    Агент
    +7 (906) 560-75-92
    Начать чат с агентом
    Похожие предложения
    Коттедж в Нижегородская область, Нижний Новгород д. Малая Ельня,  (75 ... - Фото 1
    Коттедж в Нижегородская область, Нижний Новгород д. Малая Ельня,  (75 ... - Фото 2
    1 этаж, общая площадь 75м², участок 5 соток

    Семейная ипотека от 6 Ипотека для IТ-специалистов от 6 Для участников СВО ипотека от 3 (в сельской местности) + скидкаОТ ЗАСТРОЙЩИКА, одноэтажный кирпичный дом 74м2(+мансарда 24м2) с участком от 5 соток Листайте фото, смотрите видео - там все про наши...
    • 1 эт.
    • 75 м²
    • 5 сот.
    8 600 000 Р
    Агент
    +7 (987) Показать номер
    Посмотреть контакты
    Дом в Нижегородская область, Дальнеконстантиновский муниципальный ... - Фото 1
    Дом в Нижегородская область, Дальнеконстантиновский муниципальный ... - Фото 2
    2 этажа, общая площадь 152м², участок 19 соток

    Продаются 2 жилых дома на участке 19 соток в Хмелевой Поляне — идеальное место для жизни вдали от городской суеты Предлагается к приобретению благоустроенные индивидуальные жилые дома(ИЖС) в очаровательной деревушке с названием Хмелевая Поляна, расположенной...
    • 2 эт.
    • 152 м²
    • 19 сот.
    8 600 000 Р
    Агент
    +7 (987) Показать номер
    Посмотреть контакты
    Дом в Нижегородская область, Городецкий муниципальный округ, д. ... - Фото 1
    Дом в Нижегородская область, Городецкий муниципальный округ, д. ... - Фото 2
    1 этаж, общая площадь 140м², участок 10 соток

    Продаю новый дом в деревне Вашуриха на берегу Горьковского моря в Городецком районе. Дом каркасный одноэтажный общей площадью 140 кв м. Срок сдачи дома июнь 2025 г. Фундамент ленточный с теплым полом по грунту. Толщина стен 200 мм (основной каркас...
    • 1 эт.
    • 140 м²
    • 10 сот.
    8 500 000 Р
    Агент
    +7 (910) Показать номер
    Посмотреть контакты
    Дом в Нижегородская область, Нижний Новгород Мыза СНТ, 55 (109 м) - Фото 1
    Дом в Нижегородская область, Нижний Новгород Мыза СНТ, 55 (109 м) - Фото 2
    1 этаж, общая площадь 108м², участок 6 соток

    Код объекта: 1695223.Продается просторный загородный дом 2025 года постройки — уютное пространство для жизни с продуманным комфортом Свой уголок за городом, но в шаге от цивилизацииВсего 19 км до города — вы наслаждаетесь тишиной и природой, без долгих...
    • 1 эт.
    • 108 м²
    • 6 сот.
    8 600 000 Р
    Агент
    +7 (987) Показать номер
    Посмотреть контакты
    Дом в Нижегородская область, с. Безводное ул. Красивая, 15 (92 м) - Фото 1
    Дом в Нижегородская область, с. Безводное ул. Красивая, 15 (92 м) - Фото 2
    1 этаж, общая площадь 92м², участок 15 соток

    Арт.Продается дом в Нижегородской области, Кстовском районе, село БезводноеПараметры дома: - площадь застройки 92 кв. м.- площадь дома 70.3 кв. м.- высота потолков 3.30 мПараметры участка: - площадь земельного участка 15.13 сот.- категория земель: земли...
    • 1 эт.
    • 92 м²
    • 15 сот.
    8 500 000 Р
    Агент
    +7 (987) Показать номер
    Посмотреть контакты

    Не нашли подходящего объявления?

    Оставьте заявку, и наши риэлторы подберут купить дом в районе Осиновки

    (0)