6 200 000 Р 78 630 $ или 67 100

Информация о коттедже

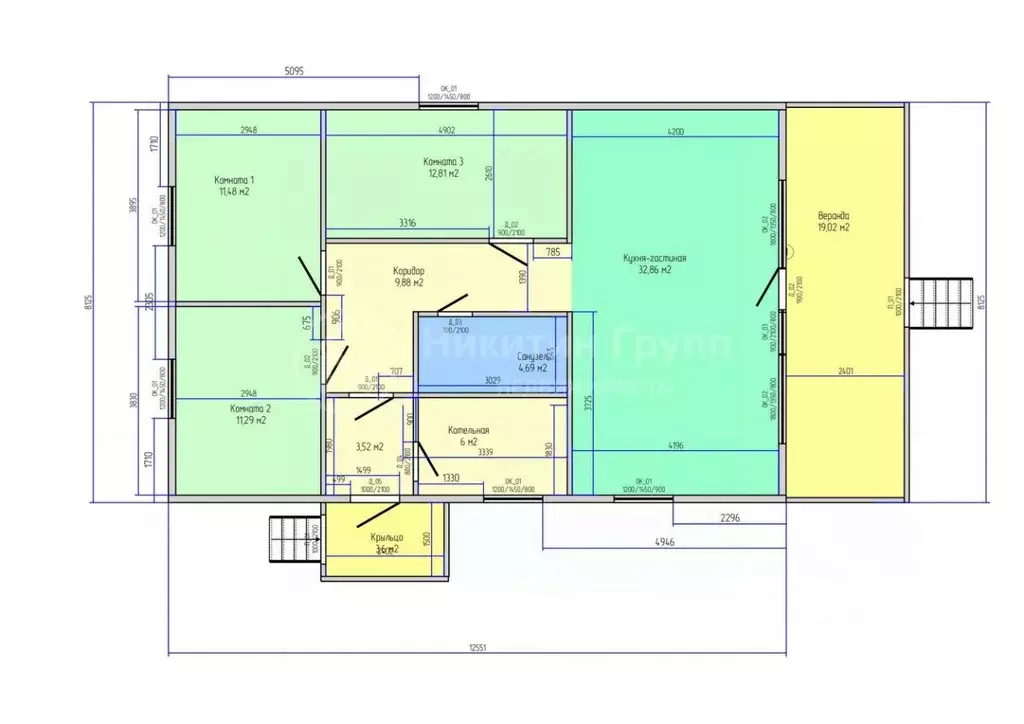
122 м2
Площадь
2
Этажность
10 cоток
Участок

Дополнительная информация

Дом продаётся вместе с участком
есть
Развернуть
Агент
+7 (931) 892-51-40
Начать чат с агентом

Дом в Нижегородская область, Городецкий муниципальный округ, д. ...

Продам 2х.эт дом хорошего качества.Дом 122м2 изготовлен из арболитовых блоков, стены снаружи утеплены на 100мм и заштукатурены. Пол внутри дома бетонный. Пластиковые окна дорогие и качественные. В доме 3 комнаты, кухня и 2 с/у, прихожая, холл. Фундамент ленточный. Второй этаж утеплен, стены обшиты ГВЛ. Крыша утеплена на 200 мм, покрыта многослойной мягкой черепицей. Водосточная система Docke. Отмостки по периметру дома шириной 1метр.Дренажная система состоит из двух колодцев. Веранда 3х12 на ленточном фундаменте сбоку у дома, на неё выход из кухни. Септик двойной переливной. Электричество 380Вт, счетчик на столбе у дома. Так же сделана разводка электричества, в соответствии с дизайн-проектом. Своя скажина с чистейшей питьевой 32 - 35м.Дом газифицирован. Отопление от газового котла. Дом 2023 года постройки Нужна внутренняя отделка дома. Земельный участок 10 соток, ИЖС, межевание сделано. Подъезд хороший. Соседи замечательные. Соседняя улица с домами построена для работников Курцевской сыроварни. Месторасположение дома очень удобное, вся инфраструктура в шаговой доступности, садик, школа, магазины, фельдшерский пункт, пункты выдачи интернет магазинов....... Аргументированный торг. До Городца 10 минут на машине. Автобус из Городца ходит несколько раз в день. Долгов и обременений нет, один взрослый собственник. Помощь в одобрении ипотеки, работаем со всеми видами сертификатов, сотрудничаем со всеми ведущими банками России. Деятельность агентства Чекни застрахована.

Читать полностью

    Для того, чтобы купить 2-этажный коттедж по адресу: , позвоните по телефону +7 (931) 892-51-40. Торопитесь! Объявление №50015813835 о продаже двухэтажного коттеджа опубликовано 11 января 2026.

    Позвонить Написать
    6 200 000 Р78 630 $ или 67 100
    Агент
    +7 (931) 892-51-40
    Начать чат с агентом
    Похожие предложения
    Коттедж в Нижегородская область, Бор Виктория СНТ, ул. 10-я линия, 26 ... - Фото 1
    Коттедж в Нижегородская область, Бор Виктория СНТ, ул. 10-я линия, 26 ... - Фото 2
    1 этаж, общая площадь 165м², участок 5 соток

    Арт.Продается идеальное решение квартирного вопроса Ваш новый дом — коттедж мечты Устали от городской суеты и мечтаете о тихом уголке на земле? Предлагаем вам уникальный вариант — коттедж общей площадью 165.88 м в прекрасном месте, где уют и комфорт...
    • 1 эт.
    • 165 м²
    • 5 сот.
    6 100 000 Р
    Агент
    +7 (958) Показать номер
    Посмотреть контакты
    Дом в Нижегородская область, Богородский муниципальный округ, д. ... - Фото 1
    Дом в Нижегородская область, Богородский муниципальный округ, д. ... - Фото 2
    1 этаж, общая площадь 102м², участок 10 соток

    Арт.Предлагаем вашему вниманию уютный одноэтажный жилой дом общей площадью 115 м, расположенный в закрытом охраняемом коттеджном посёлке Владыкино в Богородском муниципальном округе Нижегородской области. Этот дом станет идеальным выбором для тех, кто...
    • 1 эт.
    • 102 м²
    • 10 сот.
    6 200 000 Р
    Агент
    +7 (910) Показать номер
    Посмотреть контакты
    Дом в Нижегородская область, Нижний Новгород Хохломская ул., 24 (44 м) - Фото 1
    Дом в Нижегородская область, Нижний Новгород Хохломская ул., 24 (44 м) - Фото 2
    1 этаж, общая площадь 43м², участок 2 сотки

    В продаже жилой дом в Московском районе. Дом деревянный с кирпичным пристроем. Пластиковое остекление, газовое отопление. Можно жить в зимнее время.На участке есть кирпичный гараж, действующая баня из красного кирпича. Отведено место для теплицы и грядок.Один...
    • 1 эт.
    • 43 м²
    • 2 сот.
    6 150 000 Р
    Агент
    +7 (987) Показать номер
    Посмотреть контакты
    Дом в Нижегородская область, Богородский муниципальный округ, д. ... - Фото 1
    Дом в Нижегородская область, Богородский муниципальный округ, д. ... - Фото 2
    2 этажа, общая площадь 56м², участок 20 соток

    Арт.В продаже экологически чистый деревянный дом из оцилиндрованного бревна 2020 года постройки, расположенный на участке в 20 соток земли. Дом полностью с ремонтом и мебелью. Строился как гостевой дом с баней на первом этаже, поэтому при желание задумку...
    • 2 эт.
    • 56 м²
    • 20 сот.
    6 100 000 Р
    Агент
    +7 (987) Показать номер
    Посмотреть контакты
    Дом в Нижегородская область, Нижний Новгород Молодежный просп. (125 м) - Фото 1
    Дом в Нижегородская область, Нижний Новгород Молодежный просп. (125 м) - Фото 2
    2 этажа, общая площадь 125м², участок 5 соток

    Продаю 2х эт. жилой дом , площадью 125м. кв. на земельном участке 5 соток, в СНТ Надежда, пр. Молодежный, для круглогодичного проживания, с удобной планировкой: 5 комнат, 2 лоджии, кухня, сан.узел., 1 лоджия, 1 веранда В дом проведена вода, скважина...
    • 2 эт.
    • 125 м²
    • 5 сот.
    6 200 000 Р
    Агент
    +7 (910) Показать номер
    Посмотреть контакты

    Не нашли подходящего объявления?

    Оставьте заявку, и наши риэлторы подберут купить дом в районе Городецкого района

    (0)