4 300 000 Р 52 940 $ или 45 820

Информация о квартире

41 м2
Площадь
27 м2
Жилая
6 м2
Кухня
2
Комнаты
4
Этаж
5
Этажность

Дополнительная информация

Тип дома
кирпичный
Развернуть
Агент
+7 (987) 081-29-43
Начать чат с агентом

2-к кв. Нижегородская область, Кстово ул. 40 лет Октября, 15А (41.0 м)

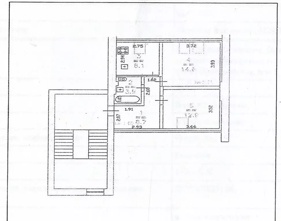
Арт.Продаётся 2-х комнатная квартира в г. Кстово, ул. 40 лет Октября, д.15 АПАРАМЕТРЫ КВАРТИРЫ:- общая площадь 41.1 м2- жилая площадь 27 м2- площадь комнат 17+10 м2- площадь кухни 6 м2- балкон естьОПИСАНИЕ КВАРТИРЫ:Продаётся 2-х комнатная квартира в г. Кстово, ул. 40 лет Октября, д.15 А расположенная на 4-м этаже 5-и этажного кирпичного жилого дома. Квартира полностью с ремонтом, окна пластиковые, санузел совместный в плитке, потолки натяжные, установлена хорошая входная дверь, есть балкон. Один взрослый собственник. ИНФРАСТРУКТУРА:- Во дворе есть детская площадка- Школа- Детский сад- магазин Пятерочка, Магнит, аптека и др.;- Автобусная остановка.МОЖНО КУПИТЬ:- Наличные- Ипотека- Материнский капитал- Военная ипотека- Иные жилищные сертификаты.АГЕНТСТВО ПРЕДОСТАВЛЯЕТ СЛЕДУЮЩИЕ УСЛУГИ:- Помощь в оформлении ипотеки по сниженной ставке.- Юридические консультации.- Льготное страхование всех видов недвижимости, транспорта, жизни.БОНУСЫ:- Подарочная карта на скидку в магазин HoFF.- Подарочный сертификат от агентства на

Читать полностью

    Для того, чтобы купить двухкомнатную квартиру по адресу: Кстово, ул. 40 лет Октября, 15А, позвоните по телефону +7 (987) 081-29-43. Торопитесь! Объявление №30091604904 о продаже двухкомнатной квартиры опубликовано Сегодня.

    Позвонить Написать
    4 300 000 Р52 940 $ или 45 820
    Агент
    +7 (987) 081-29-43
    Начать чат с агентом
    Похожие предложения
    2-к кв. Нижегородская область, Кстово ул. 40 лет Октября, 15А (41.1 м) - Фото 1
    2-к кв. Нижегородская область, Кстово ул. 40 лет Октября, 15А (41.1 м) - Фото 2
    2-комнатная квартира, общая площадь 41м², жилая 27м², кухня 6м²

    Арт.Продаётся 2-х комнатная квартира в г. Кстово, ул. 40 лет Октября, д.15 АПАРАМЕТРЫ КВАРТИРЫ:- общая площадь 41.1 м2- жилая площадь 27 м2- площадь комнат 17+10 м2- площадь кухни 6 м2- балкон естьОПИСАНИЕ КВАРТИРЫ:Продаётся 2-х комнатная квартира в...
    • 41 м²
    • 2-ком
    • 4/5 эт.
    • кирпичный
    4 300 000 Р
    Агент
    +7 (987) Показать номер
    Посмотреть контакты
    2-к кв. Нижегородская область, Кстово Нижегородская ул., 18 (44.8 м) - Фото 1
    2-к кв. Нижегородская область, Кстово Нижегородская ул., 18 (44.8 м) - Фото 2
    2-комнатная квартира, общая площадь 44м², жилая 25м², кухня 6м²

    В продаже уютная 2-комнатная квартира по адресу г. Кстово, ул. Нижегородская, 18.Этаж 3 из 5, кирпичный дом.В квартире сделан свежий ремонт в 2025 году. Проведена новая электропроводка и сантехника, установлены счётчики. Комнаты изолированные, что обеспечивает...
    • 44 м²
    • 2-ком
    • 3/5 эт.
    • кирпичный
    4 350 000 Р
    Агент
    +7 (910) Показать номер
    Посмотреть контакты
    2-к кв. Нижегородская область, Кстово Лукерьинская ул., 5 (48.2 м) - Фото 1
    2-к кв. Нижегородская область, Кстово Лукерьинская ул., 5 (48.2 м) - Фото 2
    2-комнатная квартира, общая площадь 48м², жилая 27м², кухня 8м²

    Арт.Продается двухкомнатная квартира мансардного типа в г. Кстово на ул. Лукерьинская, дом 5ПАРАМЕТРЫ КВАРТИРЫ:- общая площадь 48,2 кв. м- жилая площадь 27,5 кв. м- площадь кухни 8,1 кв. мПродается видовая двухкомнатная квартира в одном из живописных...
    • 48 м²
    • 2-ком
    • 6/6 эт.
    • кирпичный
    4 400 000 Р
    Агент
    +7 (987) Показать номер
    Посмотреть контакты
    2-комнатная квартира: Кстово, Лукерьинская улица, 5 (48.2 м) - Фото 1
    2-комнатная квартира: Кстово, Лукерьинская улица, 5 (48.2 м) - Фото 2
    2-комнатная квартира, общая площадь 48м², жилая 27м², кухня 8м²

    Арт.Продается двухкомнатная квартира мансардного типа в г. Кстово на ул. Лукерьинская, дом 5 ПАРАМЕТРЫ КВАРТИРЫ: - общая площадь 48,2 кв. м - жилая площадь 27,5 кв. м - площадь кухни 8,1 кв. м Продается видовая двухкомнатная квартира в одном из живописных...
    • 48 м²
    • 2-ком
    • 6/6 эт.
    4 400 000 Р
    Агент
    +7 (915) Показать номер
    Посмотреть контакты
    1-к кв. Нижегородская область, Кстово Нижегородская ул., 3 (49.0 м) - Фото 1
    1-к кв. Нижегородская область, Кстово Нижегородская ул., 3 (49.0 м) - Фото 2
    1-комнатная квартира, общая площадь 49м², жилая 35м², кухня 8м²

    Продается уютная 1-комнатная квартира, 49 кв.м- Адрес: г. Кстово, ул. Нижегородская, д. 3- Этаж: 1 из 9, кирпичный дом- Общая площадь: 49 кв.м- Кухня 8 кв.м- Санузел совмещенный, в плитке- Просторная прихожая- Лоджия с погребом и кладовая для хранения-...
    • 49 м²
    • 1-ком
    • 1/9 эт.
    • кирпичный
    4 400 000 Р
    Агент
    +7 (934) Показать номер
    Посмотреть контакты

    Не нашли подходящего объявления?

    Оставьте заявку, и наши риэлторы подберут квартиру в районе Кстово

    (0)