7 850 000 Р 96 690 $ или 83 470

Информация о коттедже

118 м2
Площадь
1
Этажность
15 cоток
Участок

Дополнительная информация

Дом продаётся вместе с участком
есть
Развернуть
Агент
+7 (987) 502-19-51
Начать чат с агентом

Дом в Нижегородская область, Нижний Новгород д. Майдан, ул. Горшкова, ...

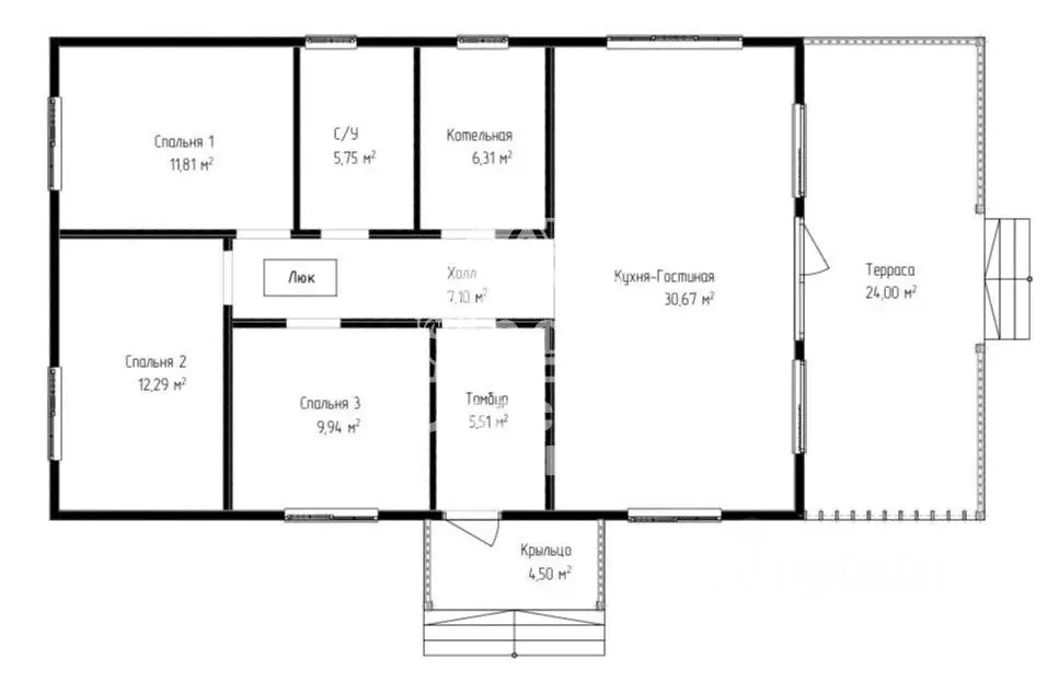
Код объекта: 1775938. Представляем вашему вниманию одноэтажный дом: Габариты дома: 8 х 12,5 Площадь дома: 118 мг Материал - строганый каркас камерной сушки Фасадная отделка - Имитация бруса в покраске В доме : - 3 спальных комнаты - Просторная кухня-гостиная - 1 Санузел - Котельная - Тамбур - Терраса и крыльцоО доме:- фундамент жб сваи- строганный каркас- утепление 200- сетка от грызунов- кровля: металлочерепица- подшив свесов: софит пвх- водосточная система пвх- снегозадержание: трубчатое- фасад: имитация бруса в покраске и шлифовке- цоколь: панели оптима +дверка в цоколе- внутренняя предчистовая отделка (фанера на полу. гипсокартон на стенах, обрешетка на потолках)- настил уличный: палубная доска гладкая• межэтажная лестница клееная- окна 60 мм. exprof- дверь на крыльцо/ балкон: пвхИнженерные коммуникации:-ГИЛЬЗЫ-электрика-вентиляция-хгвс и канализация-отопление водяное, радиаторы, котёл электрический-скважина.- септик одинарный из бетонных колецПодойдет под льготную ипотеку

Читать полностью

    Для того, чтобы купить 1-этажный коттедж по адресу: Майдан, улица Горшкова, 30, позвоните по телефону +7 (987) 502-19-51. Торопитесь! Объявление №50016351881 о продаже одноэтажного коттеджа опубликовано 08 октября 2025.

    Позвонить Написать
    7 850 000 Р96 690 $ или 83 470
    Агент
    +7 (987) 502-19-51
    Начать чат с агентом
    Похожие предложения
    Коттедж в Нижегородская область, Нижний Новгород д. Подвалиха, ул. ... - Фото 1
    Коттедж в Нижегородская область, Нижний Новгород д. Подвалиха, ул. ... - Фото 2
    1 этаж, общая площадь 108м², участок 10 соток

    Уважаемые покупатели Предлагаем Вашему вниманию уютный коттедж площадью 108 м2. на участке 10 соток в д. Подвалиха. В данный момент коттедж находится в стадии чистовой отделки, что дает Вам возможность воплотить в жизнь свои дизайнерские идеи и предпочтения....
    • 1 эт.
    • 108 м²
    • 10 сот.
    8 000 000 Р
    Агент
    +7 (910) Показать номер
    Посмотреть контакты
    Коттедж в Нижегородская область, Кстово  (116 м) - Фото 1
    Коттедж в Нижегородская область, Кстово  (116 м) - Фото 2
    2 этажа, общая площадь 115м², участок 5 соток

    Уважаемые покупатели Предлагается к продаже дом общей площадью 116 м2 в г.Кстово Нижегородской области. Дом расположен в экологически чистом месте, вдали от шумных трасс и при этом с удобной транспортной развязкой. В пешей доступности магазин SPAR,...
    • 2 эт.
    • 115 м²
    • 5 сот.
    7 850 000 Р
    Агент
    +7 (910) Показать номер
    Посмотреть контакты
    Дом в Нижегородская область, Кстовский муниципальный округ, д. ... - Фото 1
    Дом в Нижегородская область, Кстовский муниципальный округ, д. ... - Фото 2
    1 этаж, общая площадь 102м², участок 12 соток

    Предложение для ценителей качественной и комфортной жизни в своем доме. Представляем вашему вниманию дом 102m2 на 12 сот. земли в д. Подвалиха Кстовский р-н, ул. Первомайская, 67В доме:• три изолированных комнаты• кухня-гостиная 30m2• гардеробная комната...
    • 1 эт.
    • 102 м²
    • 12 сот.
    7 880 000 Р
    Агент
    +7 (910) Показать номер
    Посмотреть контакты
    Дом в Нижегородская область, Нижний Новгород городской округ, с. ... - Фото 1
    Дом в Нижегородская область, Нижний Новгород городской округ, с. ... - Фото 2
    2 этажа, общая площадь 102м², участок 7 соток

    Предлагаю к покупке двухэтажный дом 102 м. Данный вариант обеспечивают комфорт и уют для всей семьи.Конкурентные преимущества: Фундамент из железобетона для устойчивости.Стены из блоков Poritep с утеплителем для сохранения тепла зимой.Утеплённая крыша...
    • 2 эт.
    • 102 м²
    • 7 сот.
    7 990 000 Р
    Агент
    +7 (910) Показать номер
    Посмотреть контакты
    Дом в Нижегородская область, Кстовский муниципальный округ, с. Вязовка ... - Фото 1
    Дом в Нижегородская область, Кстовский муниципальный округ, с. Вязовка ... - Фото 2
    2 этажа, общая площадь 124м², участок 11 соток

    Код объекта: 1363786. Продаётся уютный дом в коттеджном посёлке Бавария Парк Это идеальное место для постоянного проживания в 20 минутах от Нижнего Новгорода. Вас ждут тишина, спокойствие и безопасность.Общая площадь дома — 124,8 кв. м. 1 этаж с высотой...
    • 2 эт.
    • 124 м²
    • 11 сот.
    8 000 000 Р
    Агент
    +7 (981) Показать номер
    Посмотреть контакты

    Не нашли подходящего объявления?

    Оставьте заявку, и наши риэлторы подберут купить дом в районе Майдана

    (0)