8 430 240 Р 105 400 $ или 90 960

Информация о квартире

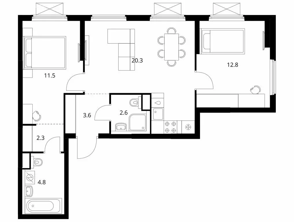
57 м2
Площадь
2
Комнаты
5
Этаж
25
Этажность
Развернуть
Агент
+7 (962) 509-23-41
Начать чат с агентом

2-комнатная квартира: городской округ Нижний Новгород, деревня ...

Продаётся 2-комн.квартира площадью 57.90 кв.м на 5 этаже 25 этажного дома (Корпус 10, секция 1) проекта ПИК Савин парк. Светлый просторный подъезд на уровне земли, функциональная планировка, большие окна. Жилой квартал «Савин парк возводится в Кстовском муниципальном районе, рядом с Советским районом Нижнего Новгорода. До центра Нижнего Новгорода всего 20 минут на автомобиле, а до города Кстово — 18 минут. В этом проекте есть всё для комфортной жизни. Кроме жилых домов , проект включает два детских сада, один из которых уже строится, школу и многоуровневый надземный паркинг. На первых этажах откроются кафе, магазины и другие сервисы — чтобы купить кофе к завтраку или пиццу на ужин, можно будет просто спуститься на лифте. На подземном этаже появятся кладовые, в которых удобно хранить крупные и сезонные вещи. Чтобы жители квартала чувствовали простор и получали больше солнечного света, мы построим дома разной высоты. Во дворах появятся уютные парки с детскими площадками и местами для отдыха — здесь можно поболтать с соседями, почитать в тени или позаниматься йогой. Спортивные площадки мы разместим так, чтобы шум от них не мешал жителям. В квартирах тоже будет много солнечного света за счёт балконов и больших окон. На выбор есть множество функциональных планировок, все они продуманы так, чтобы как можно большая площадь использовалась для жизни. Вы получите ключи от квартиры с уже готовой отделкой — можно заезжать и жить. На машине от «Савин парка можно доехать до ТРЦ «МЕГА за 7 минут, за 14 минут — до Анкудиновского леса, а за 20 — до «Щёлоковского хутора . Артикул - 970038

Читать полностью
    Позвонить Написать
    8 430 240 Р105 400 $ или 90 960
    Агент
    +7 (962) 509-23-41
    Начать чат с агентом
    Похожие предложения
    2-комнатная квартира: Утечино, жилой комплекс Савин Парк, к5 (51.1 м) - Фото 1
    2-комнатная квартира: Утечино, жилой комплекс Савин Парк, к5 (51.1 м) - Фото 2
    2-комнатная квартира, общая площадь 51м²

    Продаётся 2-комн.квартира площадью 51.10 кв.м на 12 этаже 15 этажного дома (Корпус 5, секция 1) проекта ПИК Савин парк. Светлый просторный подъезд на уровне земли, функциональная планировка, большие окна, с отделкой. Жилой квартал «Савин парк возводится...
    • 51 м²
    • 2-ком
    • 12/15 эт.
    8 426 390 Р
    Агент
    +7 (962) Показать номер
    Посмотреть контакты
    2-к кв. Нижегородская область, Нижний Новгород д. Утечино, Савин Парк ... - Фото 1
    2-к кв. Нижегородская область, Нижний Новгород д. Утечино, Савин Парк ... - Фото 2
    2-комнатная квартира, общая площадь 51м², жилая 20м², кухня 18м²

    Продаётся 2-комн. квартира площадью 51,1 кв.м на 14 этаже 15 этажного дома (Корпус 5, Секция 1) проекта ПИК Савин парк. Светлый просторный подъезд на уровне земли, функциональная планировка, большие окна, c отделкой. Жилой квартал Савин парк возводится...
    • 51 м²
    • 2-ком
    • 14/15 эт.
    • монолит
    8 313 970 Р
    Агент
    +7 (904) Показать номер
    Посмотреть контакты
    2-к кв. Нижегородская область, Нижний Новгород д. Утечино, Савин Парк ... - Фото 1
    2-к кв. Нижегородская область, Нижний Новгород д. Утечино, Савин Парк ... - Фото 2
    2-комнатная квартира, общая площадь 50м², жилая 20м², кухня 18м²

    Продаётся 2-комн. квартира площадью 50,9 кв.м на 10 этаже 15 этажного дома (Корпус 6, Секция 1) проекта ПИК Савин парк. Светлый просторный подъезд на уровне земли, функциональная планировка, большие окна, c отделкой. Жилой квартал Савин парк возводится...
    • 50 м²
    • 2-ком
    • 10/15 эт.
    • монолит
    8 427 971 Р
    Агент
    +7 (904) Показать номер
    Посмотреть контакты
    2-к кв. Нижегородская область, Нижний Новгород д. Утечино, Савин Парк ... - Фото 1
    2-к кв. Нижегородская область, Нижний Новгород д. Утечино, Савин Парк ... - Фото 2
    2-комнатная квартира, общая площадь 60м², жилая 23м², кухня 18м²

    Продаётся 2-комн. квартира площадью 60,5 кв.м на 6 этаже 17 этажного дома (Корпус 7, Секция 1) проекта ПИК Савин парк. Светлый просторный подъезд на уровне земли, функциональная планировка, большие окна, c отделкой. Жилой квартал Савин парк возводится...
    • 60 м²
    • 2-ком
    • 6/17 эт.
    • монолит
    8 421 600 Р
    Агент
    +7 (904) Показать номер
    Посмотреть контакты
    2-к кв. Нижегородская область, Нижний Новгород д. Утечино, Савин Парк ... - Фото 1
    2-к кв. Нижегородская область, Нижний Новгород д. Утечино, Савин Парк ... - Фото 2
    2-комнатная квартира, общая площадь 60м², жилая 23м², кухня 18м²

    Продаётся 2-комн. квартира площадью 60,5 кв.м на 2 этаже 17 этажного дома (Корпус 7, Секция 1) проекта ПИК Савин парк. Светлый просторный подъезд на уровне земли, функциональная планировка, большие окна, c отделкой. Жилой квартал Савин парк возводится...
    • 60 м²
    • 2-ком
    • 2/17 эт.
    • монолит
    8 349 000 Р
    Агент
    +7 (904) Показать номер
    Посмотреть контакты

    Не нашли подходящего объявления?

    Оставьте заявку, и наши риэлторы подберут квартиру в новостройке в районе Утечино

    (0)