8 944 000 Р 110 200 $ или 95 100

Информация о квартире

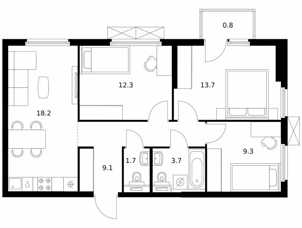
68 м2
Площадь
3
Комнаты
3
Этаж
25
Этажность
Развернуть
Агент
Недвижимость от застройщика (ПИК)
+7 (962) 509-23-41
Начать чат с агентом

3-комнатная квартира: Утечино, жилой комплекс Савин Парк (68.8 м)

Продаётся 3-комн.квартира площадью 68.80 кв.м на 3 этаже 25 этажного дома (Корпус 8, секция 1) проекта ПИК Савин парк. Светлый просторный подъезд на уровне земли, функциональная планировка, большие окна, с отделкой. Жилой квартал «Савин парк возводится в Кстовском муниципальном районе, рядом с Советским районом Нижнего Новгорода. До центра Нижнего Новгорода всего 20 минут на автомобиле, а до города Кстово — 18 минут. В этом проекте есть всё для комфортной жизни. Кроме жилых домов , проект включает два детских сада, один из которых уже строится, школу и многоуровневый надземный паркинг. На первых этажах откроются кафе, магазины и другие сервисы — чтобы купить кофе к завтраку или пиццу на ужин, можно будет просто спуститься на лифте. На подземном этаже появятся кладовые, в которых удобно хранить крупные и сезонные вещи. Чтобы жители квартала чувствовали простор и получали больше солнечного света, мы построим дома разной высоты. Во дворах появятся уютные парки с детскими площадками и местами для отдыха — здесь можно поболтать с соседями, почитать в тени или позаниматься йогой. Спортивные площадки мы разместим так, чтобы шум от них не мешал жителям. В квартирах тоже будет много солнечного света за счёт балконов и больших окон. На выбор есть множество функциональных планировок, все они продуманы так, чтобы как можно большая площадь использовалась для жизни. Вы получите ключи от квартиры с уже готовой отделкой — можно заезжать и жить. На машине от «Савин парка можно доехать до ТРЦ «МЕГА за 7 минут, за 14 минут — до Анкудиновского леса, а за 20 — до «Щёлоковского хутора . Артикул - 985591

Читать полностью
    Позвонить Написать
    8 944 000 Р110 200 $ или 95 100
    Агент
    Недвижимость от застройщика (ПИК)
    +7 (962) 509-23-41
    Начать чат с агентом
    Похожие предложения в Утечино
    2-к кв. Нижегородская область, Нижний Новгород д. Утечино, Савин Парк ... - Фото 1
    2-к кв. Нижегородская область, Нижний Новгород д. Утечино, Савин Парк ... - Фото 2
    2-комнатная квартира, общая площадь 61м², жилая 23м², кухня 18м²

    Продаётся 2-комн. квартира площадью 61,1 кв.м на 11 этаже 17 этажного дома (Корпус 7, Секция 1) проекта ПИК Савин парк. Светлый просторный подъезд на уровне земли, функциональная планировка, большие окна, c отделкой. Жилой квартал Савин парк возводится...
    • 61 м²
    • 2-ком
    • 11/17 эт.
    • монолит
    8 865 610 Р
    Агент
    +7 (904) Показать номер
    Посмотреть контакты
    2-к кв. Нижегородская область, Нижний Новгород д. Утечино, Савин Парк ... - Фото 1
    2-к кв. Нижегородская область, Нижний Новгород д. Утечино, Савин Парк ... - Фото 2
    2-комнатная квартира, общая площадь 51м², жилая 20м², кухня 17м²

    Продаётся 2-комн. квартира площадью 51,6 кв.м на 15 этаже 15 этажного дома (Корпус 6, Секция 1) проекта ПИК Савин парк. Светлый просторный подъезд на уровне земли, функциональная планировка, большие окна, c отделкой. Жилой квартал Савин парк возводится...
    • 51 м²
    • 2-ком
    • 15/15 эт.
    • монолит
    8 999 040 Р
    Агент
    +7 (904) Показать номер
    Посмотреть контакты
    2-к кв. Нижегородская область, Нижний Новгород д. Утечино, Савин Парк ... - Фото 1
    2-к кв. Нижегородская область, Нижний Новгород д. Утечино, Савин Парк ... - Фото 2
    2-комнатная квартира, общая площадь 58м², жилая 21м², кухня 20м²

    Продаётся 2-комн. квартира площадью 58,4 кв.м на 5 этаже 15 этажного дома (Корпус 6, Секция 1) проекта ПИК Савин парк. Светлый просторный подъезд на уровне земли, функциональная планировка, большие окна, c отделкой. Жилой квартал Савин парк возводится...
    • 58 м²
    • 2-ком
    • 5/15 эт.
    • монолит
    8 847 600 Р
    Агент
    +7 (904) Показать номер
    Посмотреть контакты
    2-к кв. Нижегородская область, Нижний Новгород д. Утечино, Савин Парк ... - Фото 1
    2-к кв. Нижегородская область, Нижний Новгород д. Утечино, Савин Парк ... - Фото 2
    2-комнатная квартира, общая площадь 58м², жилая 21м², кухня 19м²

    Продаётся 2-комн. квартира площадью 58 кв.м на 17 этаже 17 этажного дома (Корпус 7, Секция 1) проекта ПИК Савин парк. Светлый просторный подъезд на уровне земли, функциональная планировка, большие окна, c отделкой. Жилой квартал Савин парк возводится...
    • 58 м²
    • 2-ком
    • 17/17 эт.
    • монолит
    8 816 000 Р
    Агент
    +7 (904) Показать номер
    Посмотреть контакты
    2-к кв. Нижегородская область, Нижний Новгород д. Утечино, Савин Парк ... - Фото 1
    2-к кв. Нижегородская область, Нижний Новгород д. Утечино, Савин Парк ... - Фото 2
    2-комнатная квартира, общая площадь 63м², жилая 25м², кухня 20м²

    Продаётся 2-комн. квартира площадью 63,1 кв.м на 11 этаже 15 этажного дома (Корпус 5, Секция 1) проекта ПИК Савин парк. Светлый просторный подъезд на уровне земли, функциональная планировка, большие окна, c отделкой. Жилой квартал Савин парк возводится...
    • 63 м²
    • 2-ком
    • 11/15 эт.
    • монолит
    8 955 025 Р
    Агент
    +7 (904) Показать номер
    Посмотреть контакты

    Не нашли подходящего объявления?

    Оставьте заявку, и наши риэлторы подберут квартиру в новостройке в районе Утечино

    (0)