10 000 000 Р 127 800 $ или 110 100

Информация о коттедже

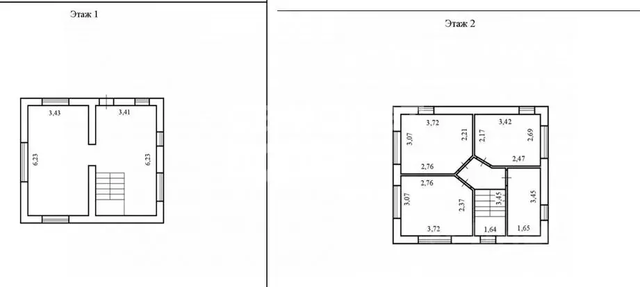
90 м2
Площадь
2
Этажность
3 cоток
Участок

Дополнительная информация

Дом продаётся вместе с участком
есть
Развернуть
Агент
+7 (910) 873-33-02
Начать чат с агентом

Дом в Нижегородская область, Нижний Новгород Горловская ул., 2/177 (90 ...

Арт.Этот дом можно приобрести в ипотеку по ставке 12.25 Представляем вашему вниманию капитальный двухэтажный дом из красного керамического кирпича в одном из самых востребованных и престижных районов Нижнего Новгорода — Советском.Дом спроектирован для себя, из тёплого и дышащего красного кирпича, что гарантирует вам комфортный микроклимат в любое время года и невероятный комфорт на протяжении долгих лет. Состояние под черновую отделку — это ваша уникальная возможность. Вы сможете создать пространство с нуля, воплотив в жизнь любые дизайнерские задумки, будь то классический интерьер или ультрасовременный лофт.При этом участок в центре города позволяет осуществить самые смелые решения. Поставить баню, патио или же детскую площадку с качелями. В заботливых руках эта земля позволит реализовать любые решения Что касается локации — здесь идеально сочетаются спокойствие загородной жизни и все преимущества городской инфраструктуры. В нескольких минутах ходьбы находятся школы, детские сады, магазины и поликлиники. До центра города легко добраться на общественном транспорте.Этот дом — не просто стены, это основа для вашего будущего, будь то гнездышко для большой семьи или выгодная инвестиция в недвижимость перспективного района. Участок земли полностью оформлен в собственность, что делает сделку простой и безопасной.Этот дом уже сейчас обладает тем, что ценится превыше всего при выборе комфортной частной жизни — полноценными и готовыми к использованию коммуникациями. Здесь уже есть магистральный газ по границе участка, центральное водоснабжение и современный вкопанный септик. Если вы ищете дом, в котором захотите провести всю жизнь, это предложение — для вас. С удовольствием проведу для вас личный просмотр, расскажу обо всех деталях и помогу сделать верный шаг к вашему новому дому.

Читать полностью

    Для того, чтобы купить 2-этажный коттедж по адресу: Нижний Новгород, м. Горьковская, ул. Горловская, 2/177, позвоните по телефону +7 (910) 873-33-02. Торопитесь! Объявление №50016557664 о продаже двухэтажного коттеджа опубликовано 2 дня назад.

    Позвонить Написать
    10 000 000 Р127 800 $ или 110 100
    Агент
    +7 (910) 873-33-02
    Начать чат с агентом
    Похожие предложения
    Коттедж в Нижегородская область, Нижний Новгород Маяк садовое ... - Фото 1
    Коттедж в Нижегородская область, Нижний Новгород Маяк садовое ... - Фото 2
    2 этажа, общая площадь 144м², участок 5 соток

    Прекрасная альтернатива 3-х комнатной квартире - Свой Дом в городе В продаже коттедж в Нижегородском районе, 2024 г постройки,асположенный на Казанском шоссе, напротив ЖК Красная Поляна, рядом с микрорайоном Верхние Печеры. Отличное месторасположение...
    • 2 эт.
    • 144 м²
    • 5 сот.
    9 950 000 Р
    Агент
    +7 (981) Показать номер
    Посмотреть контакты
    Дом в Нижегородская область, Нижний Новгород Подновье сл., 504 (64 м) - Фото 1
    Дом в Нижегородская область, Нижний Новгород Подновье сл., 504 (64 м) - Фото 2
    1 этаж, общая площадь 63м², участок 9 соток

    В продаже Дом с большим земельным участком в престижном районе Нижнего Новгорода Жилой дом с ровным земельным участком в экологически чистом районе города - Подновье Слобода, первая линия домов от Гребного канала. Дом 63,5 кв. метра включает в себя...
    • 1 эт.
    • 63 м²
    • 9 сот.
    10 550 000 Р
    Агент
    +7 (931) Показать номер
    Посмотреть контакты
    Дом в Нижегородская область, Нижний Новгород Лапшиха мкр, ул. ... - Фото 1
    Дом в Нижегородская область, Нижний Новгород Лапшиха мкр, ул. ... - Фото 2
    1 этаж, общая площадь 122м², участок 4 сотки

    Продаю дом на ул. Молдавская в Советском районе. Дом кирпичный 1960 года постройки, Добротный хороший дом, строили для себя. Есть жилой подвал под всем домом, где расположены кухня и сан.узел. Разделен на две половины , У каждого отдельный вход. Фундамент...
    • 1 эт.
    • 122 м²
    • 4 сот.
    9 500 000 Р
    Агент
    +7 (981) Показать номер
    Посмотреть контакты
    Коттедж в Нижегородская область, Нижний Новгород Казанское ш. (172 м) - Фото 1
    Коттедж в Нижегородская область, Нижний Новгород Казанское ш. (172 м) - Фото 2
    2 этажа, общая площадь 172м², участок 5 соток

    Прекрасная альтернатива 3-х комнатной квартире, - Свой Дом В продаже коттедж в Нижегородском районе, Нижний Новгород. Казанское шоссе. Общая площадь дома 172 м кв, расположен на ровном участке 5 соток, (можно купить соседний участок, еще 5 соток...
    • 2 эт.
    • 172 м²
    • 5 сот.
    9 500 000 Р
    Агент
    +7 (981) Показать номер
    Посмотреть контакты
    Дом в Нижегородская область, Нижний Новгород Заветы Мичурина Сад № 4 ... - Фото 1
    Дом в Нижегородская область, Нижний Новгород Заветы Мичурина Сад № 4 ... - Фото 2
    2 этажа, общая площадь 135м², участок 6 соток

    Срочно продается дом 135 кв м в СНТ Заветы Мичурина сад 4 (самый ближний к Юбилейной улице), рядом Щелковский хутор, улицы Бекетова, Юбилейная, Нартова, Советская площадь. Месторасположение прекрасно подходит для совмещения сельской уединенности с комфортом...
    • 2 эт.
    • 135 м²
    • 6 сот.
    10 900 000 Р
    Агент
    +7 (981) Показать номер
    Посмотреть контакты

    Не нашли подходящего объявления?

    Оставьте заявку, и наши риэлторы подберут купить дом в районе Нижнего Новгорода

    (0)