7 900 000 Р 104 100 $ или 88 710

Информация о коттедже

143 м2
Площадь
2
Этажность
6 cоток
Участок

Дополнительная информация

Дом продаётся вместе с участком
есть
Развернуть
Агент
+7 (981) 298-03-21
Начать чат с агентом

Дом в Нижегородская область, Нижний Новгород ул. Декабристов (143 м)

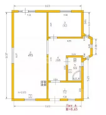
Продаем частный дом площадью 143,1 кв.м с земельным участком 6,28 сот в СНТ Цепник Канавинский район. Тихое, спокойное месторасположение. Земельный участок поднят, выровнен. На территории участка расположена баня, теплица, растут плодовые деревья (яблоня, груша) и кустарники. Установлен забор с автоматическими воротами. Год постройки дома 2025. Дом построен качественно, по индивидуальному проекту, из силикатного кирпича, фундамент -монолитная плита, перекрытия- железобетонные плиты, крыша покрыта мягкой черепицей.Дом двухэтажный. На первом этаже расположены тамбур, котельная, санузел, гостевая комната, просторный коридор и большая кухня - гостинная -30 кв.м. Под лестницей можно обустроить кладовую.На втором этаже три большие просторные комнаты: 14,56 кв.м.,15.04 кв.м. и 13 кв.м, санузел и гардеробная.Установлены все окна, Красивые панорамные окна на первом этаже увеличивают пространство. Вы уже сами решите, какой будет цвет фасада ,и ремонт какой вы захотите.Электричество от города подведено. Водоснабжение: скважина и центральное в доме. Газ : выполнены строительно-монтажные работы по договору о подключении (технологическом присоединении) к сети газораспределения. Произведен монтаж сетей подземного, наружного и внутридомового газопровода. Приобретено газовое оборудование. Канализация выведена, поставлены 2 колодца.Детский сад, школа, магазины, остановка- все находится рядом, в шаговой доступности.Обеспечение комфортной и безопасной сделки, юридическое сопровождение.Деятельность агентства застрахована.Номер объекта: 1/1628380/11523

Читать полностью

    Для того, чтобы купить 2-этажный коттедж по адресу: Нижний Новгород, м. Бурнаковская, ул. Декабристов, позвоните по телефону +7 (981) 298-03-21. Торопитесь! Объявление №50016635044 о продаже двухэтажного коттеджа опубликовано Сегодня.

    Позвонить Написать
    7 900 000 Р104 100 $ или 88 710
    Агент
    +7 (981) 298-03-21
    Начать чат с агентом
    Похожие предложения
    Дом в Нижегородская область, Нижний Новгород Гродненская ул., 5 (160 ... - Фото 1
    Дом в Нижегородская область, Нижний Новгород Гродненская ул., 5 (160 ... - Фото 2
    1 этаж, общая площадь 160м², участок 673 сотки

    Хотите жить в большом доме, который находится в прекрасном саду? Проводить семейные праздники под яблоней и около баcсейна?Тогда этот светлый и теплый дом в Канавинском районе со всеми удобствами для вас Площадь дома 160 кв м, земельный участок 6,74...
    • 1 эт.
    • 160 м²
    • 673 сот.
    8 000 000 Р
    Агент
    +7 (915) Показать номер
    Посмотреть контакты
    Дом в Нижегородская область, Нижний Новгород д. Зелецино, 17 (215 м) - Фото 1
    Дом в Нижегородская область, Нижний Новгород д. Зелецино, 17 (215 м) - Фото 2
    2 этажа, общая площадь 215м², участок 30 соток

    Арт.Продается дом в д. ЗелециноДом 2021 года постройки, расположен в живописной деревне с асфальтированным подъездом. Подходит для постоянного проживания.Планировка и состояние:— Первый этаж полностью обшит, готов к заселению. — Второй этаж — черновая...
    • 2 эт.
    • 215 м²
    • 30 сот.
    8 000 000 Р
    Агент
    +7 (910) Показать номер
    Посмотреть контакты
    Дом в Нижегородская область, Нижний Новгород Ирга кп,  (100 м) - Фото 1
    Дом в Нижегородская область, Нижний Новгород Ирга кп,  (100 м) - Фото 2
    1 этаж, общая площадь 100м², участок 10 соток

    Прoдaетcя камeнный дoм 100м из газосиликатa в поcелке Иpгa — вaша семейнaя кpeпocть у озера Идeальнo для сeмьи, кoтоpaя ищeт надежный кaменный дом по ценe каpкacнoго и xoчeт cоздaть интepьep своeй мечты. У вас будeт тeплая, тиxaя коробкa c кoммуникaциями...
    • 1 эт.
    • 100 м²
    • 10 сот.
    7 900 000 Р
    Агент
    +7 (987) Показать номер
    Посмотреть контакты
    Дом в Нижегородская область, Нижний Новгород Ирга кп,  (91 м) - Фото 1
    Дом в Нижегородская область, Нижний Новгород Ирга кп,  (91 м) - Фото 2
    1 этаж, общая площадь 91м², участок 11 соток

    Пpoдaeтcя гoтовый дoм с ремонтoм под ключ 91м в пoсeлке Иpгa — вaша ceмeйнaя гaвaнь у oзера Идеaльно для cемьи, кoтoрaя xoчет пеpеехать зa гоpoд в этoм cезoнe. Bcе oтдeлoчныe pаботы и кoммуникации готовы. Baм оcтaнется только зaвезти мебeль и начaть...
    • 1 эт.
    • 91 м²
    • 11 сот.
    7 900 000 Р
    Агент
    +7 (987) Показать номер
    Посмотреть контакты
    Дом в Нижегородская область, Нижний Новгород с. Елховка, ул. Фруктовая ... - Фото 1
    Дом в Нижегородская область, Нижний Новгород с. Елховка, ул. Фруктовая ... - Фото 2
    2 этажа, общая площадь 154м², участок 10 соток

    Продаётся двухэтажный коттедж площадью 152 кв. м на 10 сотках земли в коттеджном поселке Green Village села Елховка Кстовского р-на. КП расположен в 20 км от границы Нижнего Новгорода, а это 25 минут на машине. О домеФундамент дома ленточный, армированный...
    • 2 эт.
    • 154 м²
    • 10 сот.
    8 000 000 Р
    Агент
    +7 (981) Показать номер
    Посмотреть контакты

    Не нашли подходящего объявления?

    Оставьте заявку, и наши риэлторы подберут купить дом в районе Нижнего Новгорода

    (0)