Россия, Нижегородская область, Нижний Новгород, Верен Плейс Одесская жилой комплекс
17 352 388 Р 213 900 $ или 183 800

Информация о квартире

55 м2
Площадь
18 м2
Жилая
22 м2
Кухня
1
Комната
8
Этаж
17
Этажность

Дополнительная информация

Тип дома
монолит
Развернуть
Агент
+7 (958) 729-76-03
Начать чат с агентом

1-к кв. Нижегородская область, Нижний Новгород Верен Плейс Одесская ...

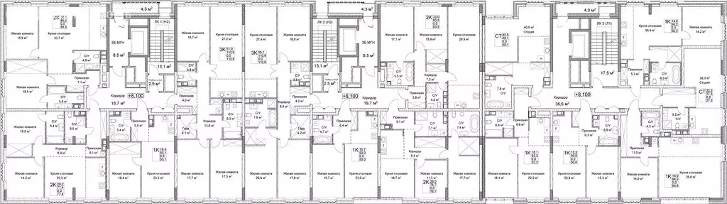
Продается 1-комн. квартира от застройщика в ЖК VEREN PLACE Одесская на 8 этаже. Квартира без отделки, после оформления собственности можно делать ремонт. Общая площадь: 55.24 кв.м., жилая: 18.87 кв.м., площадь просторной куxни-гостиной: 22.34 кв.м. Все окна выходят на одну сторону. В квартире один совмещенный и один раздельный санузел. Высота потолков 2.93 м. Квартира находится в корпусе 1. Дом монолитный, одноподъездный, высотой 17 этажей. На этаже 8 квартир. В подъезде 1 пассажирский и 1 грузовой лифт. Окончание строительства - 3 квартал 2026 года. Оформление сделки по договору долевого участия. Вид на город (рассвет), мастер-спальня, гардеробная, 2 санузла. VEREN PLACE ОДЕССКАЯ - это 17-этажный клубный дом бизнес-класса, который разместится на высоком берегу Оки на исторической территории в Старом Нижнем Новгороде. Комплекс VEREN PLACE ОДЕССКАЯ продолжает линейку проектов бизнес-класса от VEREN GROUP. Жилой комплекс имеет удобное расположение — в локации с насыщенной социальной и торговой инфраструктурой. Рядом находятся детский сад 135, корпус ННГУ, ТЦ Небо , а в 20 минутах ходьбы — центральная прогулочная улица города Большая Покровская. Архитектурный проект нового жилого комплекса был разработан именитым бюро Остоженка . Отделка фасадов выполнена из кирпича и кортеновой стали, что в сочетании с панорамным остеклением, придает ему выразительный облик. Первый этаж запроектирован на высоте 13 метров. Таким образом, просторная входная группа имеет высоту потолков 10 метров, что делает ее интерьер уникальным. Благодаря расположению и продуманной архитектуре из каждой квартиры как на верхних, так и на нижних уровнях будут открываться живописные виды. Просторные стильные холлы в высотке будут выполнены по индивидуальному проекту. В доме предусмотрено два лифта — пассажирский с панорамным остеклением и грузовой. Будущие жильцы смогут спуститься, в том числе на подземную парковку, рассчитанную на 94 машино-места, также предусмотрен гостевой паркинг. В VEREN PLACE ОДЕССКАЯ будут системы контроля доступа и видеонаблюдения. Предполагается собственная огороженная территория, благоустроенная по авторскому дизайн-проекту с учетом последних тенденций ландшафтной архитектуры. Здесь разместятся зоны отдыха, воркаут зона и детская площадка. В доме предусмотрено 114 квартир различного формата площадью от 50 до 156 кв. м (от четырех до восьми квартир на каждом этаже). Во всех квартирах панорамное остекление, а на верхних этажах запроектированы террасы с видом на закат и слияние Оки и Волги. Отделка квартир в проекте не предусмотрена. zwCCVu

Читать полностью
    Позвонить Написать
    17 352 388 Р213 900 $ или 183 800
    Агент
    +7 (958) 729-76-03
    Начать чат с агентом
    Похожие предложения в Нижнем Новгороде
    1-комнатная квартира: Нижний Новгород, Новая улица, 38 (50 м) - Фото 1
    1-комнатная квартира: Нижний Новгород, Новая улица, 38 (50 м) - Фото 2
    1-комнатная квартира, общая площадь 50м², жилая 15м², кухня 22м²

    Apт.2496223. Однокомнатная квартира от застройщика в ЖК Симфония Нижнего на 3 этаже. Квартира без отделки, после оформления собственности можно делать ремонт. Общая площадь: 50 кв.м., жилая: 15.3 кв.м., площадь просторной кухни-столовой: 22.8 кв.м....
    • 50 м²
    • 1-ком
    • 3/9 эт.
    16 965 780 Р
    Агент
    +7 (985) Показать номер
    Посмотреть контакты
    1-комнатная квартира: Нижний Новгород, Новая улица, 38 (52.8 м) - Фото 1
    1-комнатная квартира: Нижний Новгород, Новая улица, 38 (52.8 м) - Фото 2
    1-комнатная квартира, общая площадь 52м², жилая 14м², кухня 26м²

    Apт.2524916. Продается 1-комн. квартира от застройщика в ЖК Симфония Нижнего на 5 этаже. Квартира без отделки, после оформления собственности можно делать ремонт. Общая площадь: 52.8 кв.м., жилая: 14.6 кв.м., площадь просторной кухни-столовой: 26.3...
    • 52 м²
    • 1-ком
    • 5/9 эт.
    17 561 656 Р
    Агент
    +7 (985) Показать номер
    Посмотреть контакты
    1-комнатная квартира: Нижний Новгород, ЖК Симфония Нижнего 2 (52.3 м) - Фото 1
    1-комнатная квартира: Нижний Новгород, ЖК Симфония Нижнего 2 (52.3 м) - Фото 2
    1-комнатная квартира, общая площадь 52м², жилая 14м², кухня 26м²

    Apт.2496076. Просторная 1-комн. квартира в ЖК Симфония Нижнего на 2 этаже. Квартира без отделки, полностью готова к чистовой отделке и дальнейшему ремонту. Общая площадь: 52.3 кв.м., жилая: 14.2 кв.м., площадь просторной кухни-столовой: 26.4 кв.м. Все...
    • 52 м²
    • 1-ком
    • 2/9 эт.
    16 252 418 Р
    Агент
    +7 (985) Показать номер
    Посмотреть контакты
    1-комнатная квартира: Нижний Новгород, ЖК Симфония Нижнего 2 (50.6 м) - Фото 1
    1-комнатная квартира: Нижний Новгород, ЖК Симфония Нижнего 2 (50.6 м) - Фото 2
    1-комнатная квартира, общая площадь 50м², жилая 18м², кухня 18м²

    Apт.2496083. 1-комн. квартира в ЖК Симфония Нижнего на 4 этаже. Квартира без отделки, после оформления собственности можно делать ремонт. Общая площадь: 50.6 кв.м., жилая: 18.6 кв.м., площадь просторной кухни-столовой: 18.8 кв.м. Все окна выходят на...
    • 50 м²
    • 1-ком
    • 4/9 эт.
    17 189 144 Р
    Агент
    +7 (985) Показать номер
    Посмотреть контакты
    2-комнатная квартира: Нижний Новгород, ЖК Симфония Нижнего 2 (57.7 м) - Фото 1
    2-комнатная квартира: Нижний Новгород, ЖК Симфония Нижнего 2 (57.7 м) - Фото 2
    2-комнатная квартира, общая площадь 57м², жилая 29м², кухня 14м²

    Apт.2496097. 2-комн. квартира от застройщика в ЖК Симфония Нижнего на 3 этаже. Квартира без отделки, после оформления собственности можно делать ремонт. Общая площадь: 57.7 кв.м., жилая: 29.7 кв.м., площадь просторной кухни-столовой: 14 кв.м. Угловая...
    • 57 м²
    • 2-ком
    • 3/9 эт.
    17 539 096 Р
    Агент
    +7 (985) Показать номер
    Посмотреть контакты

    Не нашли подходящего объявления?

    Оставьте заявку, и наши риэлторы подберут квартиру в новостройке в районе Нижнего Новгорода

    (0)