Реализация объекта недвижимости приостановлена

Информация о квартире

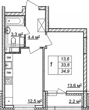
47.0 м2
Площадь
19.0 м2
Жилая
2
Комнаты
2
Этаж
25
Этажность

Дополнительная информация

Тип дома
панельный
Развернуть

2-к кв. Нижегородская область, Нижний Новгород д. Анкудиновка, КМ ...

Старт продаж в доме 53 в КМ Анкудиновский Парк Квартира с новой улучшенной отделкой. Ванная комната подвесная раковина с тумбойбелоснежная акриловая ваннаэлектрический полотенцесушительудобный унитаз-компактстены — бежевая плитка, пол — керамогранит под мраморспоты на потолке Кухня светлый кухонный гарнитурвстроенные духовой шкаф и варочная панельраковина и смеситель уже установленыНа полу ламинат 32 класса Комнаты белые обои под покраску — легко освежить интерьер в любом стиленадёжный ламинат 32 класса на полушпонированные межкомнатные двери Прихожая износостойкий керамогранит под мрамор, который всегда выглядит аккуратно и стильно. КМ Анкудиновский Парк — современный жилой комплекс, который уже стал полноценным районом для жизни. Здесь не нужно ждать, пока появится инфраструктура — всё уже есть и работает Открыты 2 детских сада на 150 и 280 мест, 2 школы на 1350 местСетевые магазины, кафе и различные сервисыИгровые и спортивные площадки для детей и взрослыхПроектом предусмотрено строительство третьего детского сада, а также торгового центра, поликлиники и ФОКаОбщественный транспорт: несколько действующих маршрутов, на которых удобно добираться в разные части города Станьте жителем КМ Анкудиновский Парк и вы Посетите наш шоурум и узнайте больше о выгодных предложениях и вариантах покупки в офисе продаж группы компаний Каркас Монолит.

Читать полностью

    Реализация объекта недвижимости приостановлена

    Не нашли подходящего объявления?

    Оставьте заявку, и наши риэлторы подберут квартиру в новостройке в районе Нижнего Новгорода

    (0)