Реализация объекта недвижимости приостановлена

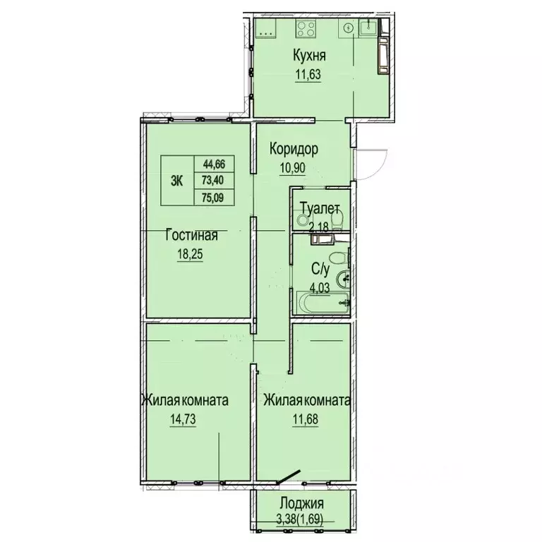
Информация о квартире

75.0 м2
Площадь
44.0 м2
Жилая
11.0 м2
Кухня
3
Комнаты
8
Этаж
9
Этажность

Дополнительная информация

Тип дома
панельный
Развернуть

3-к кв. Нижегородская область, Нижний Новгород Вязниковская ул., 43 ...

ЖК Новый город Продается квартира в экологически-чистом районе с развитой инфраструктурой вблизи заповедника Березовая роща — идеальное место для семей с детьми и активной молодежи. Всего 20 минут до центра города на автомобиле или общественном транспорте, остановка рядом с домом. Все социальные объекты находятся шаговой доступности, есть места для отдыха и занятий спортом.Продуманный комфорт:Продуманные планировки — максимум полезной площади,Стильный панельный дом с энергосберегающими фасадами,Собственная крышная котельная,Система фильтрации воды в доме,Подсобное помещение общего пользования для хранения вещей на каждом этаже.Благоустройство двора:Уютный двор с благоустроенной территорией,Спортивные площадки для разных возрастных групп,Детские площадки с антиударным покрытием,Открытый и крытый паркинги.Выгодные возможности для покупки:выгодная ипотека,рассрочка 0 от застройщика,материнский капитал.Пишите в сообщения для получения более подробной информации

Читать полностью

    Реализация объекта недвижимости приостановлена

    Не нашли подходящего объявления?

    Оставьте заявку, и наши риэлторы подберут квартиру в новостройке в районе Нижнего Новгорода

    (0)