8 410 840 Р 103 900 $ или 88 930

Информация о квартире

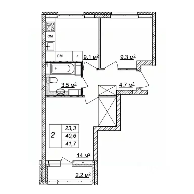
41 м2
Площадь
23 м2
Жилая
9 м2
Кухня
2
Комнаты
20
Этаж
25
Этажность
Развернуть
Агент
+7 (958) 729-74-39
Начать чат с агентом

2-к кв. Нижегородская область, Нижний Новгород Кузнечиха Город жилой ...

В продаже квартира 119, расположенная в доме 13 (по генплану) в ЖК Новая Кузнечиха . Срок сдачи - 1 кв. 2027г. Квартиры сдаются с чистовой отделкой, выполненной с использованием современных, безопасных, экологичных и долговечных материалов высокого класса. Интерьер жилых комнат выполнен в нейтральных тонах, что делает его универсальным. Все инженерные коммуникации, стояки водоснабжения и канализации зашиты в короба. Советский район. Экологически чистая среда в близи Щелковского хутора. Остановка общественного транспорта на территории ЖК. В пешеходной доступности от жилого комплекса находится уже развитая инфраструктура Советского района: школы, детские сады, поликлиники, торгово-развлекательные центры , остановки общественного транспорта с развитой сетью маршрутов. На территории ЖК продуманная концепция благоустройства с детскими игровыми комплексами, спортивными площадками, озеленение по всей территории микрорайона. Официальный застройщик - ООО СЗ Инградстрой .

Читать полностью
    Позвонить Написать
    8 410 840 Р103 900 $ или 88 930
    Агент
    +7 (958) 729-74-39
    Начать чат с агентом
    Похожие предложения в Нижнем Новгороде
    1-к кв. Нижегородская область, Нижний Новгород ул. Родионова (43.18 м) - Фото 1
    1-к кв. Нижегородская область, Нижний Новгород ул. Родионова (43.18 м) - Фото 2
    1-комнатная квартира, общая площадь 43м²

    Продаётся 1-комнатная квартира в строящемся доме (Дом 1), срок сдачи: I-кв. 2028, общей площадью 43.18 кв.м., на 19 этаже. Новый жилой комплекс Подкова Новая от застройщика ГК Подковаасположен по адресу: г. Нижний Новгород, ул. Родионова
    • 43 м²
    • 1-ком
    • 19/22 эт.
    8 400 000 Р
    Агент
    +7 (914) Показать номер
    Посмотреть контакты
    1-к кв. Нижегородская область, Нижний Новгород ул. Родионова (43.18 м) - Фото 1
    1-к кв. Нижегородская область, Нижний Новгород ул. Родионова (43.18 м) - Фото 2
    1-комнатная квартира, общая площадь 43м²

    Продаётся 1-комнатная квартира в строящемся доме (Дом 1), срок сдачи: I-кв. 2028, общей площадью 43.18 кв.м., на 16 этаже. Новый жилой комплекс Подкова Новая от застройщика ГК Подковаасположен по адресу: г. Нижний Новгород, ул. Родионова
    • 43 м²
    • 1-ком
    • 16/22 эт.
    8 310 000 Р
    Агент
    +7 (914) Показать номер
    Посмотреть контакты
    1-к кв. Нижегородская область, Нижний Новгород ул. Родионова (43.18 м) - Фото 1
    1-к кв. Нижегородская область, Нижний Новгород ул. Родионова (43.18 м) - Фото 2
    1-комнатная квартира, общая площадь 43м²

    Продаётся 1-комнатная квартира в строящемся доме (Дом 1), срок сдачи: I-кв. 2028, общей площадью 43.18 кв.м., на 18 этаже. Новый жилой комплекс Подкова Новая от застройщика ГК Подковаасположен по адресу: г. Нижний Новгород, ул. Родионова
    • 43 м²
    • 1-ком
    • 18/22 эт.
    8 370 000 Р
    Агент
    +7 (914) Показать номер
    Посмотреть контакты
    1-к кв. Нижегородская область, Нижний Новгород пос. Cовхоза Цветы,  ... - Фото 1
    1-к кв. Нижегородская область, Нижний Новгород пос. Cовхоза Цветы,  ... - Фото 2
    1-комнатная квартира, общая площадь 44м²

    Продаётся 1-комнатная квартира в строящемся доме (Дом 1), срок сдачи: IV-кв. 2027, общей площадью 44 кв.м., на 5 этаже. Новый жилой комплекс Дом на Цветочной от застройщика Подковаасположен по адресу: г. Нижний Новгород, Приокский район, ул. Цветочная...
    • 44 м²
    • 1-ком
    • 5/14 эт.
    8 380 000 Р
    Агент
    +7 (958) Показать номер
    Посмотреть контакты
    1-к кв. Нижегородская область, Нижний Новгород ул. Родионова (46.31 м) - Фото 1
    1-к кв. Нижегородская область, Нижний Новгород ул. Родионова (46.31 м) - Фото 2
    1-комнатная квартира, общая площадь 46м²

    Продаётся 1-комнатная квартира в строящемся доме (Дом 1), срок сдачи: I-кв. 2028, общей площадью 46.31 кв.м., на 3 этаже. Новый жилой комплекс Подкова Новая от застройщика ГК Подковаасположен по адресу: г. Нижний Новгород, ул. Родионова
    • 46 м²
    • 1-ком
    • 3/22 эт.
    8 460 000 Р
    Агент
    +7 (914) Показать номер
    Посмотреть контакты

    Не нашли подходящего объявления?

    Оставьте заявку, и наши риэлторы подберут квартиру в новостройке в районе Нижнего Новгорода

    (0)