Реализация объекта недвижимости приостановлена

Информация о квартире

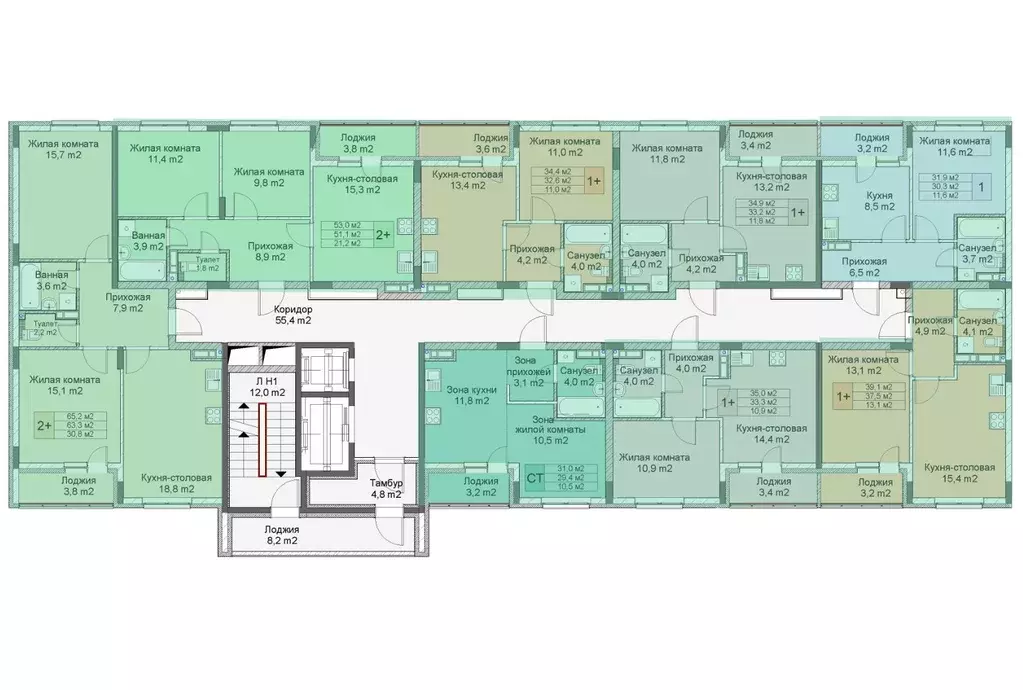
35.0 м2
Площадь
12.0 м2
Жилая
13.0 м2
Кухня
1
Комната
9
Этаж
10
Этажность
Развернуть

1-к кв. Нижегородская область, Нижний Новгород СНТ Расцвет - Советский ...

Продаётся 1-комнатная квартира в строящемся доме (дом 7), срок сдачи: II-кв. 2028, общей площадью 35 кв.м., на 9 этаже. Жилой комплекс Новая Кузнечихаасположен в Советском районе Нижнего Новгорода рядом с двумя излюбленными местами отдыха Ботаническим садом и Щелоковским хутором. В непосредственной близости от комплекса несколько школ, детских садов, поликлиник, торгово-развлекательных центров, остановок общественного транспорта с развитой сетью маршрутов. Первая очередь жилого комплекса состоит из 12 кварталов. Это 37 домов разной этажности от 10 до 18. В конце 2018 года досрочно был введен в эксплуатацию первый квартал, в конце 2019 г. начали получать ключи от своих квартир жители второго квартала. Все квартиры сдаются с современной отделкой, выполненной по дизайн-проекту. Примеры отделки и меблировки уже сейчас можно увидеть в шоу-румах жилого комплекса в ТРЦ Жар-Птица и 7 небо . Начаты продажи квартир с отделкой комфорт-класса, дизайнеры проекта уделили особое внимание деталям все коммуникации скрыты, стояки водоотведения и канализации зашиты в короба, на лоджии освещение и розетка, а также пересмотрели отделку ванной и санузла пол и стены полностью в плитке, установлена акриловая ванна с экраном.В Новой Кузнечихе представлен широкий ассортимент квартир от эргономичных студий, до просторных четырехкомнатных квартир. Планировки классические и евро отвечают современным запросам наших покупателей. Сквозные подъезды с входом с уровня земли, просторные холлы, колясочные, системы видеонаблюдения все это делает жизнь в микрорайоне более комфортной, безопасной и уютной. Новая Кузнечиха — это масштабный проект не только по объему возводимого жилья, но и сточки зрения создаваемой инфраструктуры. На территории микрорайона уже работает собственная котельная. Проектом предусмотрено строительство двух детских садов, школы, многоуровневого паркинга, дополнительных остановок общественного транспорта. На первых этажах домов разместится торговая галерея, которую наполнят магазины, кафе, развивающие центры и другие, необходимые для комфортной жизни объекты. Новая Кузнечиха это первый в Нижнем Новгороде жилой микрорайон квартального типа. Такой тип застройки позволяет сделать территорию двора обособленной и безопасной для детей. Для автовладельцев предусмотрены парковочные места по периметру квартала. Внутри каждого квартала будут собственные детские и спортивные площадки. Изюминкой жилого комплекса станет благоустроенная зона у ручья с пешеходными и велодорожками, площадками для отдыха взрослых и детей. Здесь каждый квадратный метр продуман с заботой о комфорте будущих жителей Строительством ЖК Новая Кузнечиха занимается ООО Специализированный застройщик Инградстрой .

Читать полностью

    Реализация объекта недвижимости приостановлена

    Не нашли подходящего объявления?

    Оставьте заявку, и наши риэлторы подберут квартиру в новостройке в районе Нижнего Новгорода

    (0)