Реализация объекта недвижимости приостановлена

Информация о квартире

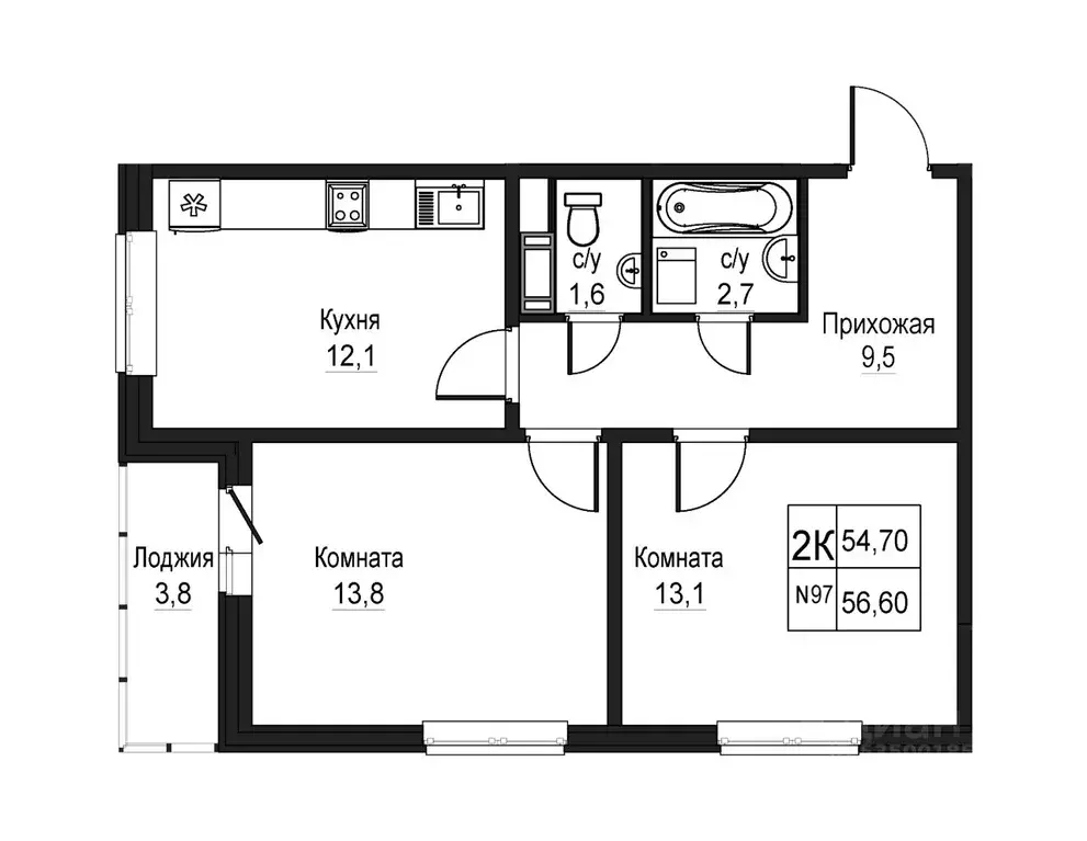
54.0 м2
Площадь
2
Комнаты
10
Этаж
10
Этажность

Дополнительная информация

Тип дома
панельный
Развернуть

2-к кв. Нижегородская область, Нижний Новгород Торпедо жилой комплекс ...

Продаётся 2-комнатная квартира в строящемся доме (дом 6), срок сдачи: I-кв. 2027, общей площадью 54 кв.м., на 10 этаже. Жилой комплекс Торпедо - это прекрасная возможность для начала Вашей новой жизни. ЖК Торпедоасположен в экологически чистом и динамично развивающемся районе Нижнего Новгорода. Микрорайон назван в честь знаменитого хоккейного клуба не случайно. Главная идея - создание комфортной среды для поддержания здорового образа жизни автозаводчан, популяризация спорта и поддержка легенды Советского хоккея - команды Торпедо . Это масштабный жилой комплекс в Автозаводском районе, расположенный вдоль реки Оки вблизи памятника природы регионального значения Малышевские гривы . 39 домов высотой десяти и семнадцати этажей вырастут на территории в 44 гектара. Жители Торпедо смогут наслаждаться свежим воздухом природного заповедника, близостью к лесной дубраве и естественным водоемам. Для отдыха и занятий спортом внутри микрорайона также будут обустроены детские и баскетбольные площадки, прогулочные зоны, во дворах появятся уличные тренажеры и велодорожки. Заезжай и живи - принцип, которому придерживается Группа компаний Жилстрой-НН . Квартиры в Торпедо традиционно будут сдаваться с полным ремонтом: обои, линолеум, натяжные потолки, сантехника, двери, приборы учета. Все отделочные материалы высокого качества и современного дизайна. Также новые дома будут полностью диспетчерезированы. Это означает что показания приборов учета будут передаваться автоматически в управляющую компанию. Жителям не нужно будет об этом думать. Если говорить о планировках, то на выбор нижегородцев широкая линейка жилья стандартного класса: от студий до трехкомнатных квартир достаточных по метражу с кухней-гостиной. А это значит, что каждый желающий - студент, молодая пара или солидная семья - найдет себе дом по вкусу и по карману. Живи с комфортом - дружи со спортом - девиз нового жилого комплекса Торпедо в Автозаводском районе. И если вы хотите жить в благоустроенном тихом месте и заботиться о здоровье своих близких, ведя активный образ жизни, лучшего места, чем новый микрорайон, вам не найти. Добро пожаловать в Торпедо И вперед - за квартирой Инфраструктура: - Детские площадки- Спортивные площадки- Места для отдыха- Школа- Детский сад- Торговый центр- Фитнес-клуб с бассейном- Велодорожки- Хоккейные коробкиПарковка: - Открытая

Читать полностью

    Реализация объекта недвижимости приостановлена

    Не нашли подходящего объявления?

    Оставьте заявку, и наши риэлторы подберут квартиру в новостройке в районе Нижнего Новгорода

    (0)