5 377 484 Р 66 380 $ или 57 250

Информация о квартире

23 м2
Площадь
9 м2
Жилая
3 м2
Кухня
студия
Комнат
16
Этаж
25
Этажность

Дополнительная информация

Тип дома
монолит
Развернуть
Агент
+7 (938) 542-92-78
Начать чат с агентом

Студия Нижегородская область, Нижний Новгород Кузнечиха Город жилой ...

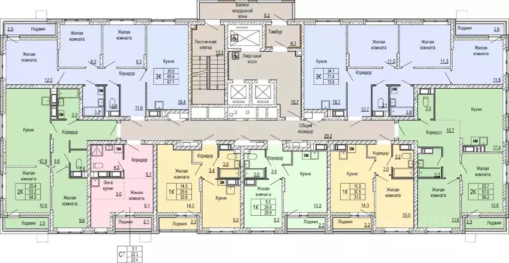
Продается однокомнатная квартира-студия с отделкой в ЖК Кузнечиха город на 16 этаже. Общая площадь: 23.4 кв.м., площадь гостиной 12.7 кв.м., из которых 3.6 кв.м. выделено под кухонную зону. Все окна выходят на одну сторону. В квартире одна лоджия, один совмещенный санузел. Высота потолков 2.5 м. Квартира находится в корпусе 14. Дом монолитный, одноподъездный, высотой 25 этажей. На этаже 8 квартир. В подъезде 1 пассажирский и 1 грузовой лифт. Окончание строительства - 2 квартал 2027 года. Оформление сделки по договору долевого участия. Кузнечиха Город это современный семейный жилой комплекс расположенный в Советском районе в окружении парков и развитой инфраструктуры. Проект ориентирован на семейную аудиторию, поэтому особое внимание уделяется благоустройству и формированию соответствующей инфраструктуры. 1-ая очередь застройки включает в себя 12 кварталов, состоящих из 37 домов разной этажности. В 2024 году строительство первой очереди было завершено. На территории первой очереди ЖК работают 2 детских сада и школа, открыто более 100 объектов торговой инфраструктуры.2-ая очередь застройки - это еще 16 домов по 10 и 25 этажей. По состоянию на октябрь 2025 г. в эксплуатацию введено 12 домов. Помимо жилых домов, здесь появится и развитая социальная, коммерческая, транспортная инфраструктура и благоустройство. На территории второй очереди уже работает школа, ведется подготовка к строительству детского сада на 320 мест. В 3-ей очереди застройки запланировано строительство 11 домов высотой 10, 18 и 25 этажей. Кроме строительства жилых домов, проект предусматривает создание развитой социальной, коммерческой и транспортной инфраструктуры. Ведется подготовка к строительству детского сада, рассчитанного на 220 мест. Все квартиры в ЖК передаются клиентам с чистовой отделкой класса комфорт В жилых комнатах, кухне и прихожей — обои нейтрального оттенка, белые межкомнатные двери без стекол. Пол в жилых комнатах — ламинат под дуб, в кухне и прихожей — плитка. Натяжные потолки во всех помещениях. Стены и пол в ванной и санузле будут отделаны керамогранитом, в ванной установлен полный комплект сантехники, включая акриловую ванну с экраном и смесителем, тумбу для хранения под раковиной, зеркало с подсветкой. Застройщик также позаботился и о деталях, поэтому все инженерные коммуникации, стояки водоснабжения и канализации будут скрыты декоративными коробами. 2mIUCT

Читать полностью
    Позвонить Написать
    5 377 484 Р66 380 $ или 57 250
    Агент
    +7 (938) 542-92-78
    Начать чат с агентом
    Похожие предложения в Нижнем Новгороде
    Студия Нижегородская область, Нижний Новгород Кузнечиха Город жилой ... - Фото 1
    Студия Нижегородская область, Нижний Новгород Кузнечиха Город жилой ... - Фото 2
    студия, общая площадь 23м², жилая 9м², кухня 3м²

    Просторная 1-комн. квартира-студия с отделкой в ЖК Кузнечиха город на 20 этаже. Общая площадь: 23.4 кв.м., площадь гостиной 12.7 кв.м., из которых 3.6 кв.м. выделено под кухонную зону. Все окна выходят на одну сторону. В квартире одна лоджия, один совмещенный...
    • 23 м²
    • студия-ком
    • 20/25 эт.
    • монолит
    5 377 484 Р
    Агент
    +7 (938) Показать номер
    Посмотреть контакты
    Студия Нижегородская область, Нижний Новгород Кузнечиха Город жилой ... - Фото 1
    Студия Нижегородская область, Нижний Новгород Кузнечиха Город жилой ... - Фото 2
    студия, общая площадь 23м², жилая 9м², кухня 3м²

    Просторная 1-комн. квартира-студия с отделкой в ЖК Кузнечиха город на 19 этаже. Общая площадь: 23.4 кв.м., площадь гостиной 12.7 кв.м., из которых 3.6 кв.м. выделено под кухонную зону. Все окна выходят на одну сторону. В квартире одна лоджия, один совмещенный...
    • 23 м²
    • студия-ком
    • 19/25 эт.
    • монолит
    5 377 484 Р
    Агент
    +7 (938) Показать номер
    Посмотреть контакты
    Студия Нижегородская область, Нижний Новгород Кузнечиха Город жилой ... - Фото 1
    Студия Нижегородская область, Нижний Новгород Кузнечиха Город жилой ... - Фото 2
    студия, общая площадь 23м², жилая 9м², кухня 3м²

    Однокомнатная квартира-студия от застройщика с отделкой в ЖК Кузнечиха город на 18 этаже. Общая площадь: 23.4 кв.м., площадь гостиной 12.7 кв.м., из которых 3.6 кв.м. выделено под кухонную зону. Все окна выходят на одну сторону. В квартире одна лоджия,...
    • 23 м²
    • студия-ком
    • 18/25 эт.
    • монолит
    5 377 484 Р
    Агент
    +7 (938) Показать номер
    Посмотреть контакты
    Студия Нижегородская область, Нижний Новгород Кузнечиха Город жилой ... - Фото 1
    Студия Нижегородская область, Нижний Новгород Кузнечиха Город жилой ... - Фото 2
    студия, общая площадь 23м², жилая 9м², кухня 3м²

    1-комн. квартира-студия с отделкой в ЖК Кузнечиха город на 21 этаже. Общая площадь: 23.4 кв.м., площадь гостиной 12.7 кв.м., из которых 3.6 кв.м. выделено под кухонную зону. Все окна выходят на одну сторону. В квартире одна лоджия, один совмещенный...
    • 23 м²
    • студия-ком
    • 21/25 эт.
    • монолит
    5 403 692 Р
    Агент
    +7 (938) Показать номер
    Посмотреть контакты
    Студия Нижегородская область, Нижний Новгород Кузнечиха Город жилой ... - Фото 1
    Студия Нижегородская область, Нижний Новгород Кузнечиха Город жилой ... - Фото 2
    студия, общая площадь 23м², жилая 12м², кухня 3м²

    1-комн. квартира-студия от застройщика с отделкой в ЖК Кузнечиха город на 24 этаже. Общая площадь: 23.2 кв.м., площадь гостиной 15.6 кв.м., из которых 3.4 кв.м. выделено под кухонную зону. Все окна выходят на одну сторону. В квартире один балкон, один...
    • 23 м²
    • студия-ком
    • 24/25 эт.
    • монолит
    5 385 984 Р
    Агент
    +7 (938) Показать номер
    Посмотреть контакты

    Не нашли подходящего объявления?

    Оставьте заявку, и наши риэлторы подберут квартиру в новостройке в районе Нижнего Новгорода

    (0)