Реализация объекта недвижимости приостановлена

Информация о квартире

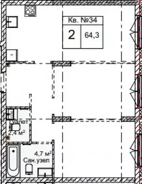
74.0 м2
Площадь
26.0 м2
Жилая
18.0 м2
Кухня
2
Комнаты
6
Этаж
9
Этажность

Дополнительная информация

Тип дома
монолит
Развернуть

2-к кв. Нижегородская область, Нижний Новгород ул. Максима Горького, ...

Продается двухкомнатная квартира в ЖК Симфония Нижнего на 6 этаже. Квартира без отделки, новый владелец может сделать ремонт по своему проекту. Общая площадь: 74.3 кв.м., жилая: 26.6 кв.м., площадь просторной кухни-столовой: 18.8 кв.м. Комнаты изолированные, все окна выходят на одну сторону. В квартире одна лоджия, два совмещенных санузла. Высота потолков 3.0 м. Дом монолитный, трехподъездный, переменной этажности, от 7 до 9 этажей. Квартира находится в 1-й секции высотой 9 этажей в корпусе 2. На этаже 4 квартиры. В подъезде 1 пассажирский и 1 грузовой лифт. Окончание строительства - 4 квартал 2027 года. Оформление сделки по договору долевого участия. Продолжение застройки в историческом центре города - в границах улиц Ильинская и Новая. Локация с пешеходной доступностью к культурно-развлекательной, торговой, транспортной и социальной инфраструктуре. Вторая очередь жилого комплекса представлена двумя домами, имеющими интересное архитектурное решение. Например, дом 1 выглядит как несколько строений, объединенных общим основанием. Минимализм фасадов, благородные цвета, декоративная подсветка внешний облик определяет характер ЖК: современный, эстетичный, респектабельный.Вся территория продумана до мелочей: закрытый двор только для резидентов, ландшафтный дизайн, зоны отдыха.Здесь представлены квартиры свободной планировки без стен и перегородок, а значит вы сами создаете конфигурацию своего жилого пространства. Особое внимание эксклюзивным лотам: двухуровневые квартиры, квартиры с видом на историческую застройку и собственной террасой. Жители смогут управлять домашними системами со смартфона, а IP-домофоны будут оснащены функциями распознавания лиц и видеонаблюдения.Места общего пользования служат созданию настроения комфорта и уюта уже с входной группы. Холлы и подъезды выполнены по дизайн проекту и подчеркивают высокий статус дома. Для владельцев авто предусмотрен подземный паркинг, оснащенный доступом из лифта и местами для зарядки электромобилей. z6v6Ea

Читать полностью

    Реализация объекта недвижимости приостановлена

    Не нашли подходящего объявления?

    Оставьте заявку, и наши риэлторы подберут квартиру в новостройке в районе Нижнего Новгорода

    (0)