Россия, Нижегородская область, Нижний Новгород, Глоракс Левобережный жилой комплекс
5 539 999 Р 68 290 $ или 58 680

Информация о квартире

23 м2
Площадь
11 м2
Жилая
5 м2
Кухня
студия
Комнат
10
Этаж
30
Этажность
Развернуть
Агент
+7 (980) 114-53-76
Начать чат с агентом

Студия Нижегородская область, Нижний Новгород Глоракс Левобережный ...

Продается квартира-студия на 10-м этаже в строящемся проекте бизнес-класса GloraX Левобережный. Общая площадь лота составляет 23,35 кв. м, из которых 11,52 кв. м отведено под жилую и 5,03 кв. м под кухонную зону. Номер квартиры - 50.Преимущества квартиры:cтудия; вид во двор - квартиры бизнес-класса на первой береговой линии Оки- уникальные планировки квартир с возможностю дозаказа разных вариантов отделки- собственная благоустроенная набережная с городским трейлом для пробежек и велопрогулок- семейный парк: рампы, скейтпарк, граффити для подростков- плейхаб рядом со школой с детскими площадками и стадионом - в зимнее время с катком.- велнес-парк с сухими фонтанам и релакс-зонами у воды- площадки для выгула собак- концепция благоустройства с закрытыми тихими дворами- полная инфраструктура (3 детских сада, школа, поликлиника, ФОК)- коммерческие помещения на 1 этажах- качественное изменение транспортной инфраструктуры в районе-комьюнити-центр для жителей проекта- модный гастрокластер- подземные и наземные паркингиGloraX Левобережный это масштабный проект в Нижнем Новгороде, созданный сделать жизнь левого берега и его людей принципиально новой. Это инновационный проект бизнес-класса, сочетающий в себе всё для современного уровня жизни: социальную и детскую инфраструктуру, комьюнити-центр и собственную набережную со спортивными и релакс-зонами, скейт-парк и гастро-кластер.GloraX Левобережный для тех, кто хочет жить всегда на первой линии. Это когда из твоего окна лучшие рассветы города, а твой берег новая точка притяжения для тех, кто любит спорт или фанат модных гастросетов. Это когда под окнами тихие зеленые дворики с игровыми площадками только для самых маленьких, а веселые игры заботливо вынесены в яркие плейхабы для тех, кто постарше. Это когда твой автомобиль ждет тебя на теплом паркинге, а сосед всегда с улыбкой встречает тебя на велодорожке у дома, это когда садик и школа в двух шагах, а у любимого питомца - специальная площадка в парке. Это когда летом петанк, а зимой каток. Это когда, утопая в рассветных лучах, любуешься Нижним со своего берега и кликаешь приложение GloraX, чтобы умный дом открыл шторы твоего дома для всей семьи.GloraX Левобережный квартал для тех, кто хочет жить современной активной жизнью в близком по духу комьюнити, ежедневно наполняться ресурсом, вдохновляясь рассветами и великой рекой, жить в гармонии с природой и технологиями, но на зрительном расстоянии от центра города.GloraX Левобережный всегда на первой линии Цена указана при 100 оплате или стандартной ипотеке. Узнайте подробности в Отделе продаж.

Читать полностью
    Позвонить Написать
    5 539 999 Р68 290 $ или 58 680
    Агент
    +7 (980) 114-53-76
    Начать чат с агентом
    Похожие предложения в Нижнем Новгороде
    Студия Нижегородская область, Нижний Новгород Ленгородок мкр, Мед ... - Фото 1
    Студия Нижегородская область, Нижний Новгород Ленгородок мкр, Мед ... - Фото 2
    студия, общая площадь 25м², жилая 15м²

    Продаётся студия в строящемся доме (дом 2.1), срок сдачи: II-кв. 2028, общей площадью 25.43 кв.м., на 24 этаже. Новый жилой комплекс Мёд от застройщика СЗ Андорасположен по адресу Нижний Новгород, Украинская улица.
    • 25 м²
    • студия-ком
    • 24/24 эт.
    5 500 000 Р
    Агент
    +7 (958) Показать номер
    Посмотреть контакты
    Студия Нижегородская область, Нижний Новгород Ленгородок мкр, Мед ... - Фото 1
    Студия Нижегородская область, Нижний Новгород Ленгородок мкр, Мед ... - Фото 2
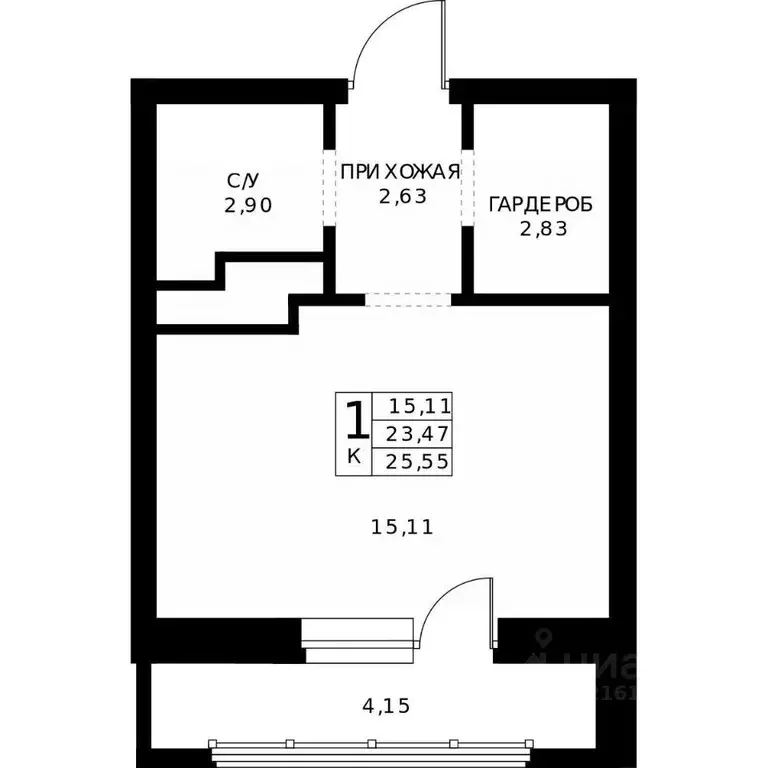
    студия, общая площадь 25м², жилая 15м²

    Продаётся студия в строящемся доме (дом 2.1), срок сдачи: II-кв. 2028, общей площадью 25.55 кв.м., на 19 этаже. Новый жилой комплекс Мёд от застройщика СЗ Андорасположен по адресу Нижний Новгород, Украинская улица.
    • 25 м²
    • студия-ком
    • 19/24 эт.
    5 450 000 Р
    Агент
    +7 (958) Показать номер
    Посмотреть контакты
    Студия Нижегородская область, Нижний Новгород Ленгородок мкр, Мед ... - Фото 1
    Студия Нижегородская область, Нижний Новгород Ленгородок мкр, Мед ... - Фото 2
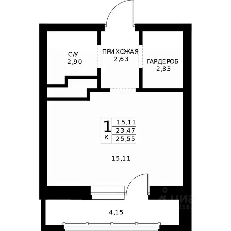
    студия, общая площадь 25м², жилая 15м²

    Продаётся студия в строящемся доме (дом 2.1), срок сдачи: II-кв. 2028, общей площадью 25.55 кв.м., на 21 этаже. Новый жилой комплекс Мёд от застройщика СЗ Андорасположен по адресу Нижний Новгород, Украинская улица.
    • 25 м²
    • студия-ком
    • 21/24 эт.
    5 470 000 Р
    Агент
    +7 (958) Показать номер
    Посмотреть контакты
    Студия Нижегородская область, Нижний Новгород Ленгородок мкр, Мед ... - Фото 1
    Студия Нижегородская область, Нижний Новгород Ленгородок мкр, Мед ... - Фото 2
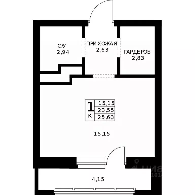
    студия, общая площадь 25м², жилая 15м²

    Продаётся студия в строящемся доме (дом 2.1), срок сдачи: II-кв. 2028, общей площадью 25.63 кв.м., на 17 этаже. Новый жилой комплекс Мёд от застройщика СЗ Андорасположен по адресу Нижний Новгород, Украинская улица.
    • 25 м²
    • студия-ком
    • 17/24 эт.
    5 430 000 Р
    Агент
    +7 (958) Показать номер
    Посмотреть контакты
    Студия Нижегородская область, Нижний Новгород Ленгородок мкр, Мед ... - Фото 1
    Студия Нижегородская область, Нижний Новгород Ленгородок мкр, Мед ... - Фото 2
    студия, общая площадь 25м², жилая 15м²

    Продаётся студия в строящемся доме (дом 2.1), срок сдачи: II-кв. 2028, общей площадью 25.55 кв.м., на 18 этаже. Новый жилой комплекс Мёд от застройщика СЗ Андорасположен по адресу Нижний Новгород, Украинская улица.
    • 25 м²
    • студия-ком
    • 18/24 эт.
    5 430 000 Р
    Агент
    +7 (958) Показать номер
    Посмотреть контакты

    Не нашли подходящего объявления?

    Оставьте заявку, и наши риэлторы подберут квартиру в новостройке в районе Нижнего Новгорода

    (0)