Россия, Нижегородская область, Нижний Новгород, Глоракс Левобережный жилой комплекс
7 009 999 Р 86 410 $ или 73 710

Информация о квартире

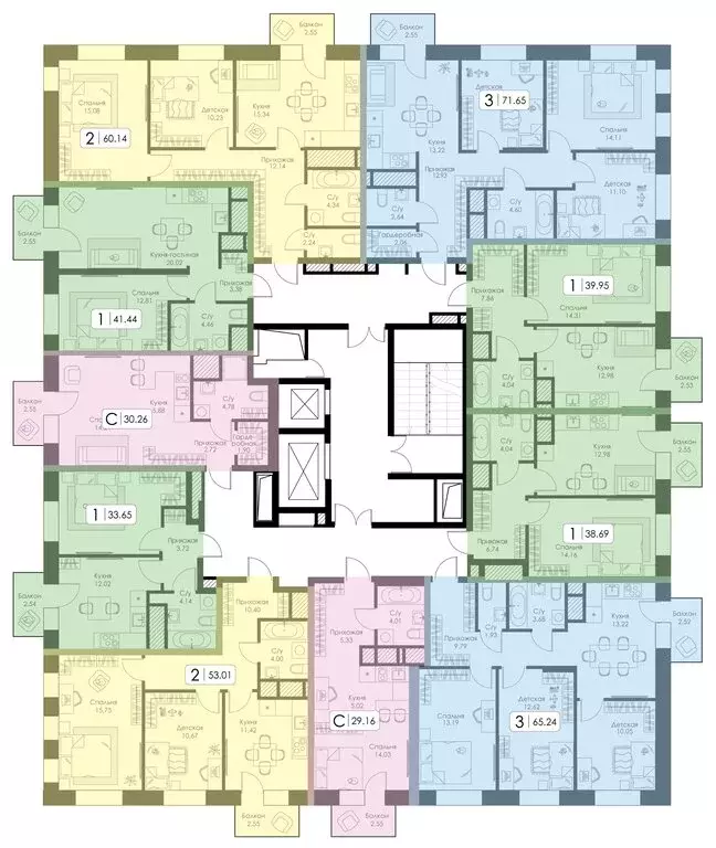
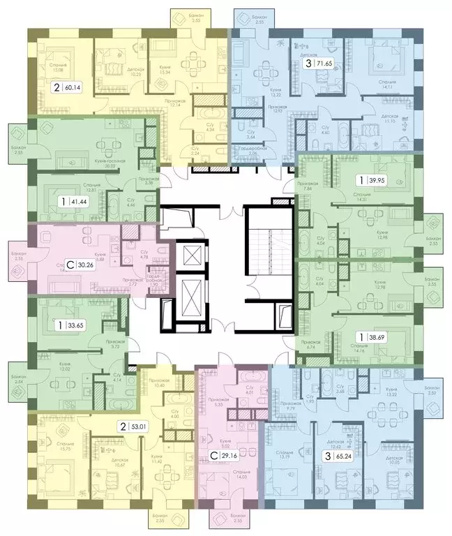
33 м2
Площадь
10 м2
Жилая
12 м2
Кухня
1
Комната
10
Этаж
30
Этажность
Развернуть
Агент
+7 (980) 114-53-76
Начать чат с агентом

1-к кв. Нижегородская область, Нижний Новгород Глоракс Левобережный ...

Продается 1-комн. квартира на 10-м этаже в строящемся проекте бизнес-класса GloraX Левобережный. Общая площадь лота составляет 33,43 кв. м, из которых 10,59 кв. м отведено под жилую и 12,55 кв. м под кухонную зону. Номер квартиры - 251.Преимущества квартиры:однокомнатная квартира; остекленная лоджия; вид во двор - квартиры бизнес-класса на первой береговой линии Оки- уникальные планировки квартир с возможностю дозаказа разных вариантов отделки- собственная благоустроенная набережная с городским трейлом для пробежек и велопрогулок- семейный парк: рампы, скейтпарк, граффити для подростков- плейхаб рядом со школой с детскими площадками и стадионом - в зимнее время с катком.- велнес-парк с сухими фонтанам и релакс-зонами у воды- площадки для выгула собак- концепция благоустройства с закрытыми тихими дворами- полная инфраструктура (3 детских сада, школа, поликлиника, ФОК)- коммерческие помещения на 1 этажах- качественное изменение транспортной инфраструктуры в районе-комьюнити-центр для жителей проекта- модный гастрокластер- подземные и наземные паркингиGloraX Левобережный это масштабный проект в Нижнем Новгороде, созданный сделать жизнь левого берега и его людей принципиально новой. Это инновационный проект бизнес-класса, сочетающий в себе всё для современного уровня жизни: социальную и детскую инфраструктуру, комьюнити-центр и собственную набережную со спортивными и релакс-зонами, скейт-парк и гастро-кластер.GloraX Левобережный для тех, кто хочет жить всегда на первой линии. Это когда из твоего окна лучшие рассветы города, а твой берег новая точка притяжения для тех, кто любит спорт или фанат модных гастросетов. Это когда под окнами тихие зеленые дворики с игровыми площадками только для самых маленьких, а веселые игры заботливо вынесены в яркие плейхабы для тех, кто постарше. Это когда твой автомобиль ждет тебя на теплом паркинге, а сосед всегда с улыбкой встречает тебя на велодорожке у дома, это когда садик и школа в двух шагах, а у любимого питомца - специальная площадка в парке. Это когда летом петанк, а зимой каток. Это когда, утопая в рассветных лучах, любуешься Нижним со своего берега и кликаешь приложение GloraX, чтобы умный дом открыл шторы твоего дома для всей семьи.GloraX Левобережный квартал для тех, кто хочет жить современной активной жизнью в близком по духу комьюнити, ежедневно наполняться ресурсом, вдохновляясь рассветами и великой рекой, жить в гармонии с природой и технологиями, но на зрительном расстоянии от центра города.GloraX Левобережный всегда на первой линии Цена указана при 100 оплате или стандартной ипотеке. Узнайте подробности в Отделе продаж.

Читать полностью
    Позвонить Написать
    7 009 999 Р86 410 $ или 73 710
    Агент
    +7 (980) 114-53-76
    Начать чат с агентом
    Похожие предложения в Нижнем Новгороде
    1-к кв. Нижегородская область, Нижний Новгород Глоракс Левобережный ... - Фото 1
    1-к кв. Нижегородская область, Нижний Новгород Глоракс Левобережный ... - Фото 2
    1-комнатная квартира, общая площадь 32м², жилая 10м², кухня 11м²

    Продается 1-комн. квартира на 8-м этаже в строящемся проекте бизнес-класса GloraX Левобережный. Общая площадь лота составляет 32,84 кв. м, из которых 10,14 кв. м отведено под жилую и 11,70 кв. м под кухонную зону. Номер квартиры - 220.Преимущества квартиры:однокомнатная...
    • 32 м²
    • 1-ком
    • 8/30 эт.
    6 989 999 Р
    Агент
    +7 (980) Показать номер
    Посмотреть контакты
    1-комнатная квартира: Нижний Новгород, 15-й квартал Канавинского ... - Фото 1
    1-комнатная квартира: Нижний Новгород, 15-й квартал Канавинского ... - Фото 2
    1-комнатная квартира, общая площадь 33м², жилая 13м², кухня 12м²

    Жилой комплекс «Анкор — это современное монолитно-кирпичное здание на Фибролитовой улице. В доме представлены квартиры различных планировок: однокомнатные, двухкомнатные и трехкомнатные. Каждая квартира отличается продуманным дизайном и удобной планировкой,...
    • 33 м²
    • 1-ком
    • 12/17 эт.
    7 098 384 Р
    Агент
    +7 (960) Показать номер
    Посмотреть контакты
    1-комнатная квартира: Нижний Новгород, 15-й квартал Канавинского ... - Фото 1
    1-комнатная квартира: Нижний Новгород, 15-й квартал Канавинского ... - Фото 2
    1-комнатная квартира, общая площадь 33м², жилая 13м², кухня 12м²

    Жилой комплекс «Анкор — это современное монолитно-кирпичное здание на Фибролитовой улице. В доме представлены квартиры различных планировок: однокомнатные, двухкомнатные и трехкомнатные. Каждая квартира отличается продуманным дизайном и удобной планировкой,...
    • 33 м²
    • 1-ком
    • 3/17 эт.
    7 098 384 Р
    Агент
    +7 (960) Показать номер
    Посмотреть контакты
    1-комнатная квартира: Нижний Новгород, 15-й квартал Канавинского ... - Фото 1
    1-комнатная квартира: Нижний Новгород, 15-й квартал Канавинского ... - Фото 2
    1-комнатная квартира, общая площадь 41м², жилая 12м², кухня 20м²

    Жилой комплекс «Анкор — это современное монолитно-кирпичное здание на Фибролитовой улице. В доме представлены квартиры различных планировок: однокомнатные, двухкомнатные и трехкомнатные. Каждая квартира отличается продуманным дизайном и удобной планировкой,...
    • 41 м²
    • 1-ком
    • 6/17 эт.
    6 924 624 Р
    Агент
    +7 (960) Показать номер
    Посмотреть контакты
    1-комнатная квартира: Нижний Новгород, 15-й квартал Канавинского ... - Фото 1
    1-комнатная квартира: Нижний Новгород, 15-й квартал Канавинского ... - Фото 2
    1-комнатная квартира, общая площадь 41м², жилая 12м², кухня 20м²

    Жилой комплекс «Анкор — это современное монолитно-кирпичное здание на Фибролитовой улице. В доме представлены квартиры различных планировок: однокомнатные, двухкомнатные и трехкомнатные. Каждая квартира отличается продуманным дизайном и удобной планировкой,...
    • 41 м²
    • 1-ком
    • 16/17 эт.
    6 924 624 Р
    Агент
    +7 (960) Показать номер
    Посмотреть контакты

    Не нашли подходящего объявления?

    Оставьте заявку, и наши риэлторы подберут квартиру в новостройке в районе Нижнего Новгорода

    (0)