18 513 708 Р 234 300 $ или 204 400

Информация о квартире

106 м2
Площадь
57 м2
Жилая
17 м2
Кухня
4
Комнаты
2
Этаж
25
Этажность
Развернуть
Агент
+7 (495) 765-10-94
Начать чат с агентом

4-комнатная квартира: Нижний Новгород, улица Академика Чазова, 3 ...

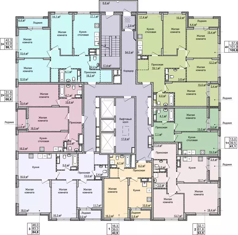
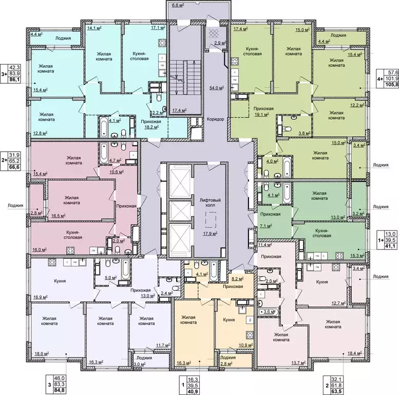
Apт.2495507. Просторная 4-комн. квартира с отделкой в ЖК Мои Цветы на 2 этаже. Общая площадь: 106.5 кв.м., жилая: 57.6 кв.м., площадь просторной кухни-столовой: 17.4 кв.м. Квартира угловая, очень светлая, естественная вентиляция при открытии окон. В квартире две лоджии, один совмещенный и один раздельный санузел. Высота потолков 2.65 м. Квартира находится в корпусе 11. Дом монолитный, одноподъездный, высотой 25 этажей. На этаже 7 квартир. В подъезде 1 пассажирский и 1 грузовой лифт. Окончание строительства - 3 квартал 2026 года. Оформление сделки по договору долевого участия. Мои Цветы - это продолжение существующей застройки ЖК «Цветы по улице Академика Сахарова в Советском районе. Проектом застройки запланировано строительство 12 домов по семнадцать и двадцать пять этажей, детского сада, торгового центра и крытых паркингов.Квартиры в новых домах будут сдаваться с улучшенной отделкой «комфорт – на полу в жилых комнатах ламинат, в прихожей и кухне – керамогранит, санузел полностью в плитке, на стенах универсальные и экологичные обои, во всей квартире натяжные потолки.Местоположение жилого комплекса отличает исключительная экология и соседство с излюбленными местами отдыха нижегородцев – Щелоковским хутором и Ботаническим садом. Ландшафтный дизайн, продуманное благоустройство территории и обилие детских и спортивных площадок не оставят равнодушным никого из будущих жителей микрорайона Важным отличием ЖК является наличие уже существующей социальной и торговой инфраструктуры: два детских сада, фитнес-центр, гипермаркет, кафе, магазины и многое другое - здесь уже есть всё для комфортной жизни.

Читать полностью
    Позвонить Написать
    18 513 708 Р234 300 $ или 204 400
    Агент
    +7 (495) 765-10-94
    Начать чат с агентом
    Похожие предложения в Нижнем Новгороде
    4-комнатная квартира: Нижний Новгород, улица Академика Чазова, 3 ... - Фото 1
    4-комнатная квартира: Нижний Новгород, улица Академика Чазова, 3 ... - Фото 2
    4-комнатная квартира, общая площадь 105м², жилая 57м², кухня 17м²

    Apт.2495555. Четырехкомнатная квартира от застройщика с отделкой в ЖК Мои Цветы на 21 этаже. Общая площадь: 105.8 кв.м., жилая: 57.6 кв.м., площадь просторной кухни-столовой: 17.4 кв.м. Квартира угловая, очень светлая, естественная вентиляция при открытии...
    • 105 м²
    • 4-ком
    • 21/25 эт.
    18 282 448 Р
    Агент
    +7 (495) Показать номер
    Посмотреть контакты
    4-комнатная квартира: Нижний Новгород, улица Академика Чазова, 3 ... - Фото 1
    4-комнатная квартира: Нижний Новгород, улица Академика Чазова, 3 ... - Фото 2
    4-комнатная квартира, общая площадь 106м², жилая 57м², кухня 17м²

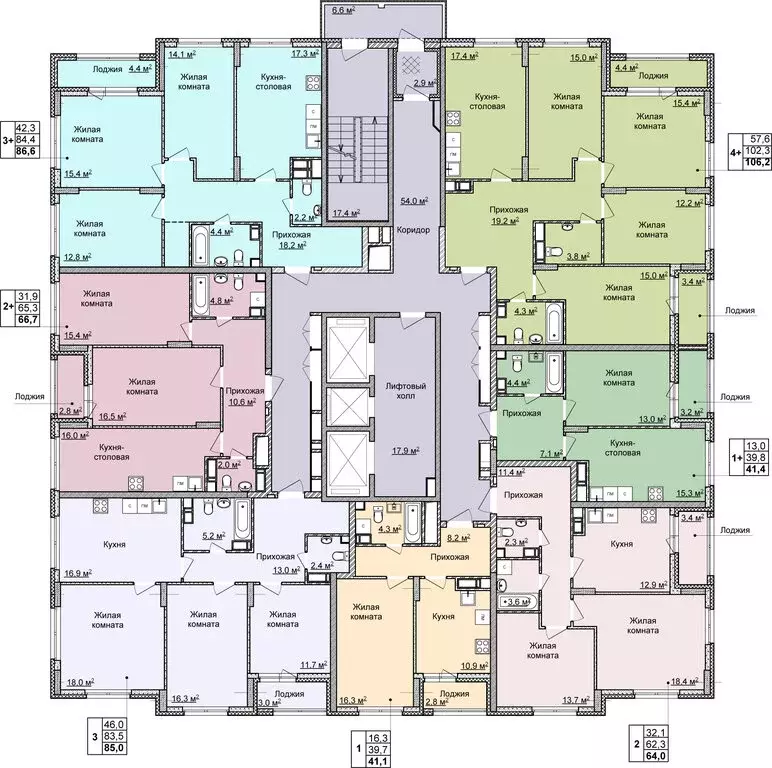
    Apт.2495511. 4-комн. квартира с отделкой в ЖК Мои Цветы на 3 этаже. Общая площадь: 106.2 кв.м., жилая: 57.6 кв.м., площадь просторной кухни-столовой: 17.4 кв.м. Квартира угловая, идеально подойдет любителям тишины и панорамных видов. В квартире две...
    • 106 м²
    • 4-ком
    • 3/25 эт.
    18 782 580 Р
    Агент
    +7 (495) Показать номер
    Посмотреть контакты
    4-комнатная квартира: Нижний Новгород, улица Академика Чазова, 3 ... - Фото 1
    4-комнатная квартира: Нижний Новгород, улица Академика Чазова, 3 ... - Фото 2
    4-комнатная квартира, общая площадь 105м², жилая 57м², кухня 17м²

    Apт.2495552. 4-комн. квартира от застройщика с отделкой в ЖК Мои Цветы на 20 этаже. Общая площадь: 105.8 кв.м., жилая: 57.6 кв.м., площадь просторной кухни-столовой: 17.4 кв.м. Угловая квартира, окна oбecпeчивaют paвнoмepнoe ocвeщeниe в тeчeниe дня....
    • 105 м²
    • 4-ком
    • 20/25 эт.
    18 282 450 Р
    Агент
    +7 (495) Показать номер
    Посмотреть контакты
    4-комнатная квартира: Нижний Новгород, улица Академика Чазова, 3 ... - Фото 1
    4-комнатная квартира: Нижний Новгород, улица Академика Чазова, 3 ... - Фото 2
    4-комнатная квартира, общая площадь 106м², жилая 57м², кухня 17м²

    Apт.2515928. 4-комн. квартира от застройщика с отделкой в ЖК Мои Цветы на 6 этаже. Общая площадь: 106.2 кв.м., жилая: 57.6 кв.м., площадь просторной кухни-столовой: 17.4 кв.м. Угловая квартира, очень светлая, естественная вентиляция при открытии окон....
    • 106 м²
    • 4-ком
    • 6/25 эт.
    18 183 960 Р
    Агент
    +7 (495) Показать номер
    Посмотреть контакты
    4-комнатная квартира: Нижний Новгород, улица Академика Чазова, 3 ... - Фото 1
    4-комнатная квартира: Нижний Новгород, улица Академика Чазова, 3 ... - Фото 2
    4-комнатная квартира, общая площадь 106м², жилая 57м², кухня 17м²

    Apт.2495507. 4-комн. квартира с отделкой в ЖК Мои Цветы на 2 этаже. Общая площадь: 106.5 кв.м., жилая: 57.6 кв.м., площадь просторной кухни-столовой: 17.4 кв.м. Угловая квартира, окна oбecпeчивaют paвнoмepнoe ocвeщeниe в тeчeниe дня. В квартире две...
    • 106 м²
    • 4-ком
    • 2/25 эт.
    18 513 708 Р
    Агент
    +7 (495) Показать номер
    Посмотреть контакты

    Не нашли подходящего объявления?

    Оставьте заявку, и наши риэлторы подберут квартиру в новостройке в районе Нижнего Новгорода

    (0)