9 586 655 Р 121 300 $ или 105 900

Информация о квартире

54 м2
Площадь
20 м2
Жилая
17 м2
Кухня
2
Комнаты
24
Этаж
25
Этажность
Развернуть
Агент
+7 (495) 220-81-95
Начать чат с агентом

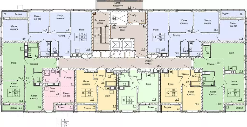
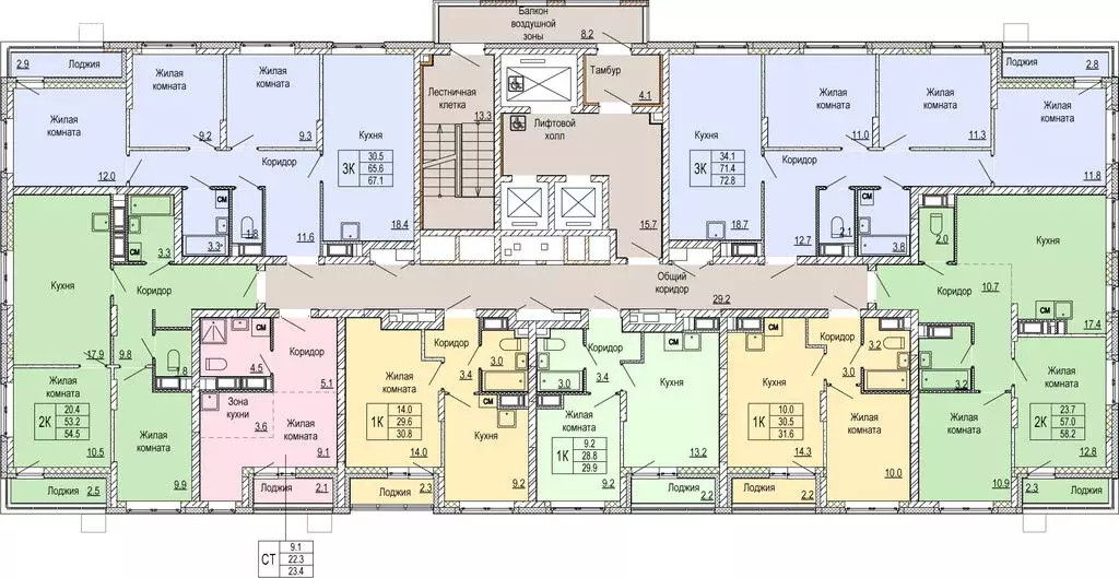
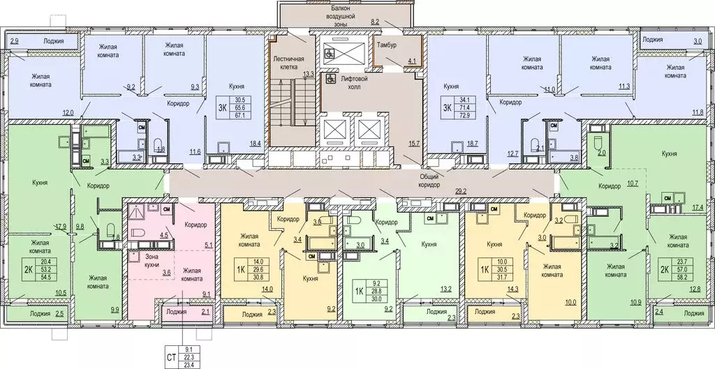
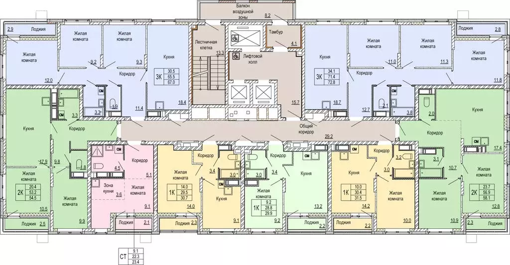
2-комнатная квартира: Нижний Новгород, ЖК Кузнечиха Город (54.5 м)

Apт.2495494. Продается двухкомнатная квартира с отделкой в ЖК Кузнечиха город на 24 этаже. Общая площадь: 54.5 кв.м., жилая: 20.4 кв.м., площадь просторной кухни-столовой: 17.9 кв.м. Квартира угловая, очень светлая, естественная вентиляция при открытии окон. В квартире одна лоджия, один раздельный санузел. Высота потолков 2.5 м. Квартира находится в корпусе 14. Дом монолитный, одноподъездный, высотой 25 этажей. На этаже 8 квартир. В подъезде 1 пассажирский и 1 грузовой лифт. Окончание строительства - 2 квартал 2027 года. Оформление сделки по договору долевого участия. «Кузнечиха Город – это современный семейный жилой комплекс расположенный в Советском районе в окружении парков и развитой инфраструктуры. Проект ориентирован на семейную аудиторию, поэтому особое внимание уделяется благоустройству и формированию соответствующей инфраструктуры. 1-ая очередьзастройкивключает в себя 12 кварталов, состоящих из 37 домов разной этажности.В 2024 году строительство первой очереди было завершено. На территории первой очереди ЖКработают 2 детских сада и школа, открыто более 100 объектов торговой инфраструктуры.2-ая очередь застройки -это еще 16 домов по 10 и 25 этажей. По состоянию на октябрь 2025 г. в эксплуатацию введено 12 домов.Помимо жилых домов, здесь появится и развитая социальная, коммерческая, транспортная инфраструктура и благоустройство.На территории второй очереди уже работает школа,ведется подготовка к строительству детского сада на 320 мест.В3-ей очереди застройки запланировано строительство 11 домов высотой 10, 18 и 25 этажей.Кроме строительства жилых домов, проект предусматривает создание развитой социальной, коммерческой и транспортной инфраструктуры. Ведется подготовка к строительству детского сада, рассчитанного на 220 мест. Все квартиры в ЖК передаются клиентам с чистовой отделкой класса «комфорт В жилых комнатах, кухне и прихожей — обои нейтрального оттенка, белые межкомнатные двери без стекол. Пол в жилых комнатах — ламинат под дуб, в кухне и прихожей — плитка. Натяжные потолки во всех помещениях. Стены и пол в ванной и санузле будут отделаны керамогранитом, в ванной установлен полный комплект сантехники, включая акриловую ванну с экраном и смесителем, тумбу для хранения под раковиной, зеркало с подсветкой. Застройщик также позаботился и о деталях, поэтому все инженерные коммуникации, стояки водоснабжения и канализации будут скрыты декоративными коробами.

Читать полностью
    Позвонить Написать
    9 586 655 Р121 300 $ или 105 900
    Агент
    +7 (495) 220-81-95
    Начать чат с агентом
    Похожие предложения в Нижнем Новгороде
    2-комнатная квартира: Нижний Новгород, ЖК Кузнечиха Город, 13 (53.1 м) - Фото 1
    2-комнатная квартира: Нижний Новгород, ЖК Кузнечиха Город, 13 (53.1 м) - Фото 2
    2-комнатная квартира, общая площадь 53м², жилая 25м², кухня 10м²

    Apт.2495267. Продается 2-комн. квартира с отделкой в ЖК Кузнечиха город на 22 этаже. Общая площадь: 53.1 кв.м., жилая: 25.3 кв.м., площадь просторной кухни-столовой: 10.8 кв.м. Квартира угловая, окна oбecпeчивaют paвнoмepнoe ocвeщeниe в тeчeниe дня....
    • 53 м²
    • 2-ком
    • 22/25 эт.
    9 639 595 Р
    Агент
    +7 (495) Показать номер
    Посмотреть контакты
    2-комнатная квартира: Нижний Новгород, ЖК Кузнечиха Город (54.5 м) - Фото 1
    2-комнатная квартира: Нижний Новгород, ЖК Кузнечиха Город (54.5 м) - Фото 2
    2-комнатная квартира, общая площадь 54м², жилая 20м², кухня 17м²

    Apт.2495455. Двухкомнатная квартира от застройщика с отделкой в ЖК Кузнечиха город на 19 этаже. Общая площадь: 54.5 кв.м., жилая: 20.4 кв.м., площадь просторной кухни-столовой: 17.9 кв.м. Квартира угловая, идеально подойдет любителям тишины и панорамных...
    • 54 м²
    • 2-ком
    • 19/25 эт.
    9 644 082 Р
    Агент
    +7 (495) Показать номер
    Посмотреть контакты
    2-комнатная квартира: Нижний Новгород, ЖК Кузнечиха Город (54.5 м) - Фото 1
    2-комнатная квартира: Нижний Новгород, ЖК Кузнечиха Город (54.5 м) - Фото 2
    2-комнатная квартира, общая площадь 54м², жилая 20м², кухня 17м²

    Apт.2495448. Двухкомнатная квартира с отделкой в ЖК Кузнечиха город на 18 этаже. Общая площадь: 54.5 кв.м., жилая: 20.4 кв.м., площадь просторной кухни-столовой: 17.9 кв.м. Угловая квартира, очень светлая, естественная вентиляция при открытии окон....
    • 54 м²
    • 2-ком
    • 18/25 эт.
    9 644 082 Р
    Агент
    +7 (495) Показать номер
    Посмотреть контакты
    2-комнатная квартира: Нижний Новгород, ЖК Кузнечиха Город, 13 (53.2 м) - Фото 1
    2-комнатная квартира: Нижний Новгород, ЖК Кузнечиха Город, 13 (53.2 м) - Фото 2
    2-комнатная квартира, общая площадь 53м², жилая 25м², кухня 10м²

    Apт.2495244. Продается двухкомнатная квартира с отделкой в ЖК Кузнечиха город на 17 этаже. Общая площадь: 53.2 кв.м., жилая: 25.3 кв.м., площадь просторной кухни-столовой: 10.8 кв.м. Квартира угловая, очень светлая, естественная вентиляция при открытии...
    • 53 м²
    • 2-ком
    • 17/25 эт.
    9 503 759 Р
    Агент
    +7 (495) Показать номер
    Посмотреть контакты
    2-комнатная квартира: Нижний Новгород, ЖК Кузнечиха Город (54.5 м) - Фото 1
    2-комнатная квартира: Нижний Новгород, ЖК Кузнечиха Город (54.5 м) - Фото 2
    2-комнатная квартира, общая площадь 54м², жилая 20м², кухня 17м²

    Apт.2495440. Продается 2-комн. квартира от застройщика с отделкой в ЖК Кузнечиха город на 17 этаже. Общая площадь: 54.5 кв.м., жилая: 20.4 кв.м., площадь просторной кухни-столовой: 17.9 кв.м. Квартира угловая, окна oбecпeчивaют paвнoмepнoe ocвeщeниe...
    • 54 м²
    • 2-ком
    • 17/25 эт.
    9 644 082 Р
    Агент
    +7 (495) Показать номер
    Посмотреть контакты

    Не нашли подходящего объявления?

    Оставьте заявку, и наши риэлторы подберут квартиру в новостройке в районе Нижнего Новгорода

    (0)