7 497 471 Р 93 020 $ или 80 020

Информация о квартире

34 м2
Площадь
11 м2
Жилая
13 м2
Кухня
1
Комната
7
Этаж
10
Этажность
Развернуть
Агент
+7 (495) 220-81-95
Начать чат с агентом

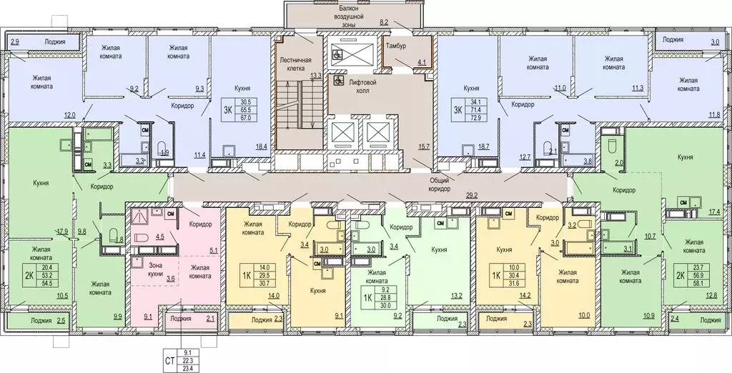
1-комнатная квартира: Нижний Новгород, Советский район (34.9 м)

Apт.2525251. Продается однокомнатная квартира с отделкой в ЖК Кузнечиха город на 7 этаже. Общая площадь: 34.9 кв.м., жилая: 11.8 кв.м., площадь просторной кухни-столовой: 13.2 кв.м. Все окна выходят на одну сторону. В квартире одна лоджия, один совмещенный санузел. Высота потолков 2.5 м. Дом монолитный, трехподъездный, высотой 10 этажей. Квартира находится в 1-й секции в корпусе 7. На этаже 8 квартир. В подъезде 1 пассажирский и 1 грузовой лифт. Окончание строительства - 2 квартал 2028 года. Оформление сделки по договору долевого участия. «Кузнечиха Город – это современный семейный жилой комплекс расположенный в Советском районе в окружении парков и развитой инфраструктуры. Проект ориентирован на семейную аудиторию, поэтому особое внимание уделяется благоустройству и формированию соответствующей инфраструктуры. 1-ая очередьзастройкивключает в себя 12 кварталов, состоящих из 37 домов разной этажности.В 2024 году строительство первой очереди было завершено. На территории первой очереди ЖКработают 2 детских сада и школа, открыто более 100 объектов торговой инфраструктуры.2-ая очередь застройки -это еще 16 домов по 10 и 25 этажей. По состоянию на октябрь 2025 г. в эксплуатацию введено 12 домов.Помимо жилых домов, здесь появится и развитая социальная, коммерческая, транспортная инфраструктура и благоустройство.На территории второй очереди уже работает школа,ведется подготовка к строительству детского сада на 320 мест.В3-ей очереди застройки запланировано строительство 11 домов высотой 10, 18 и 25 этажей.Кроме строительства жилых домов, проект предусматривает создание развитой социальной, коммерческой и транспортной инфраструктуры. Ведется подготовка к строительству детского сада, рассчитанного на 220 мест. Все квартиры в ЖК передаются клиентам с чистовой отделкой класса «комфорт В жилых комнатах, кухне и прихожей — обои нейтрального оттенка, белые межкомнатные двери без стекол. Пол в жилых комнатах — ламинат под дуб, в кухне и прихожей — плитка. Натяжные потолки во всех помещениях. Стены и пол в ванной и санузле будут отделаны керамогранитом, в ванной установлен полный комплект сантехники, включая акриловую ванну с экраном и смесителем, тумбу для хранения под раковиной, зеркало с подсветкой. Застройщик также позаботился и о деталях, поэтому все инженерные коммуникации, стояки водоснабжения и канализации будут скрыты декоративными коробами.

Читать полностью
    Позвонить Написать
    7 497 471 Р93 020 $ или 80 020
    Агент
    +7 (495) 220-81-95
    Начать чат с агентом
    Похожие предложения в Нижнем Новгороде
    1-комнатная квартира: Нижний Новгород, ЖК Кузнечиха Город (31.6 м) - Фото 1
    1-комнатная квартира: Нижний Новгород, ЖК Кузнечиха Город (31.6 м) - Фото 2
    1-комнатная квартира, общая площадь 31м², жилая 10м², кухня 14м²

    Apт.2495497. Просторная 1-комн. квартира с отделкой в ЖК Кузнечиха город на 25 этаже. Общая площадь: 31.6 кв.м., жилая: 10 кв.м., площадь просторной кухни-столовой: 14.2 кв.м. Все окна выходят на одну сторону. В квартире одна лоджия, один совмещенный...
    • 31 м²
    • 1-ком
    • 25/25 эт.
    7 537 488 Р
    Агент
    +7 (495) Показать номер
    Посмотреть контакты
    1-комнатная квартира: Нижний Новгород, Советский район (41.1 м) - Фото 1
    1-комнатная квартира: Нижний Новгород, Советский район (41.1 м) - Фото 2
    1-комнатная квартира, общая площадь 41м², жилая 11м², кухня 17м²

    Apт.2525162. Однокомнатная квартира с отделкой в ЖК Кузнечиха город на 1 этаже. Общая площадь: 41.1 кв.м., жилая: 11.9 кв.м., площадь просторной кухни-столовой: 17.6 кв.м. Угловая квартира, идеально подойдет любителям тишины и панорамных видов. В квартире...
    • 41 м²
    • 1-ком
    • 1/10 эт.
    7 506 693 Р
    Агент
    +7 (495) Показать номер
    Посмотреть контакты
    1-комнатная квартира: Нижний Новгород, ЖК Кузнечиха Город (31.6 м) - Фото 1
    1-комнатная квартира: Нижний Новгород, ЖК Кузнечиха Город (31.6 м) - Фото 2
    1-комнатная квартира, общая площадь 31м², жилая 10м², кухня 14м²

    Apт.2495482. Продается 1-комн. квартира от застройщика с отделкой в ЖК Кузнечиха город на 23 этаже. Общая площадь: 31.6 кв.м., жилая: 10 кв.м., площадь просторной кухни-столовой: 14.2 кв.м. Все окна выходят на одну сторону. В квартире одна лоджия, один...
    • 31 м²
    • 1-ком
    • 23/25 эт.
    7 537 488 Р
    Агент
    +7 (495) Показать номер
    Посмотреть контакты
    1-комнатная квартира: Нижний Новгород, Советский район (34.9 м) - Фото 1
    1-комнатная квартира: Нижний Новгород, Советский район (34.9 м) - Фото 2
    1-комнатная квартира, общая площадь 34м², жилая 11м², кухня 13м²

    Apт.2525245. Просторная 1-комн. квартира с отделкой в ЖК Кузнечиха город на 6 этаже. Общая площадь: 34.9 кв.м., жилая: 11.8 кв.м., площадь просторной кухни-столовой: 13.2 кв.м. Все окна выходят на одну сторону. В квартире одна лоджия, один совмещенный...
    • 34 м²
    • 1-ком
    • 6/10 эт.
    7 497 471 Р
    Агент
    +7 (495) Показать номер
    Посмотреть контакты
    1-комнатная квартира: Нижний Новгород, Советский район (35 м) - Фото 1
    1-комнатная квартира: Нижний Новгород, Советский район (35 м) - Фото 2
    1-комнатная квартира, общая площадь 35м², жилая 12м², кухня 13м²

    Apт.2525119. 1-комн. квартира от застройщика с отделкой в ЖК Кузнечиха город на 3 этаже. Общая площадь: 35 кв.м., жилая: 12.9 кв.м., площадь просторной кухни-столовой: 13.1 кв.м. Все окна выходят на одну сторону. В квартире одна лоджия, один совмещенный...
    • 35 м²
    • 1-ком
    • 3/10 эт.
    7 477 801 Р
    Агент
    +7 (495) Показать номер
    Посмотреть контакты

    Не нашли подходящего объявления?

    Оставьте заявку, и наши риэлторы подберут квартиру в новостройке в районе Нижнего Новгорода

    (0)