19 625 550 Р 242 100 $ или 208 900

Информация о квартире

61 м2
Площадь
10 м2
Жилая
35 м2
Кухня
1
Комната
6
Этаж
9
Этажность
Развернуть
Агент
+7 (985) 807-31-44
Начать чат с агентом

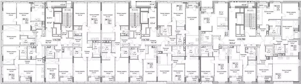
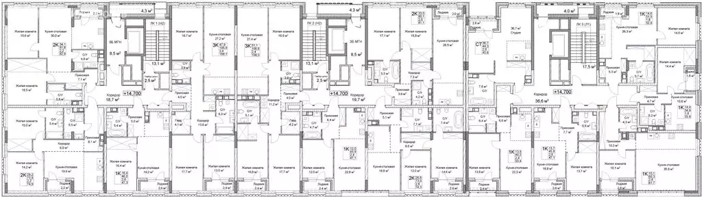
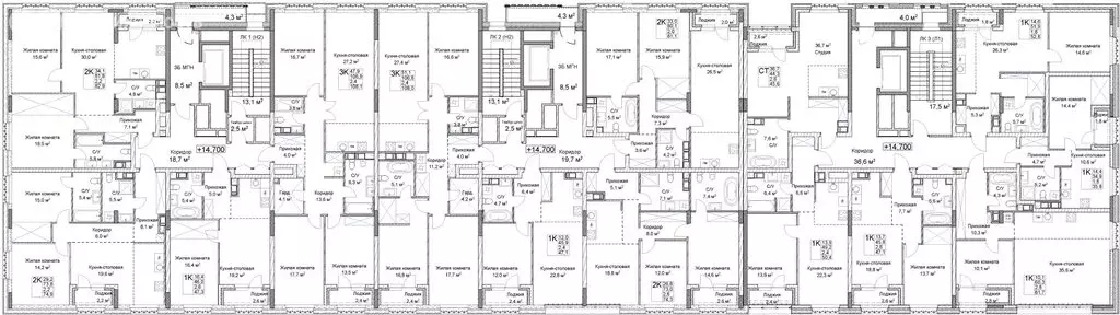
1-комнатная квартира: Нижний Новгород, Новая улица, 38 (61.7 м)

Apт.2524923. Просторная однокомнатная квартира в ЖК Симфония Нижнего на 6 этаже. Квартира без отделки, после выдачи ключей можно делать ремонт. Общая площадь: 61.7 кв.м., жилая: 10.1 кв.м., площадь просторной кухни-столовой: 35.6 кв.м. Угловая квартира, идеально подойдет любителям тишины и панорамных видов. В квартире одна лоджия, один совмещенный санузел. Высота потолков 3.0 м. Дом монолитный, трехподъездный, переменной этажности, от 7 до 9 этажей. Квартира находится в 1-й секции высотой 9 этажей в корпусе 2. На этаже 4 квартиры. В подъезде 1 пассажирский и 1 грузовой лифт. Окончание строительства - 4 квартал 2027 года. Оформление сделки по договору долевого участия. Продолжение застройки в историческом центре города - в границах улиц Ильинская и Новая. Локация с пешеходной доступностью к культурно-развлекательной, торговой, транспортной и социальной инфраструктуре. Вторая очередь жилого комплекса представлена двумя домами, имеющими интересное архитектурное решение. Например, дом №1 выглядит как несколько строений, объединенных общим основанием. Минимализм фасадов, благородные цвета, декоративная подсветка – внешний облик определяет характер ЖК: современный, эстетичный, респектабельный.Вся территория продумана до мелочей: закрытый двор только для резидентов, ландшафтный дизайн, зоны отдыха.Здесь представлены квартиры свободной планировки – без стен и перегородок, а значит вы сами создаете конфигурацию своего жилого пространства. Особое внимание эксклюзивным лотам: двухуровневые квартиры, квартиры с видом на историческую застройку и собственной террасой. Жители смогут управлять домашними системами со смартфона, а IP-домофоны будут оснащены функциями распознавания лиц и видеонаблюдения.Места общего пользования служат созданию настроения комфорта и уюта уже с входной группы. Холлы и подъезды выполнены по дизайн проекту и подчеркивают высокий статус дома. Для владельцев авто предусмотрен подземный паркинг, оснащенный доступом из лифта и местами для зарядки электромобилей.

Читать полностью
    Позвонить Написать
    19 625 550 Р242 100 $ или 208 900
    Агент
    +7 (985) 807-31-44
    Начать чат с агентом
    Похожие предложения в Нижнем Новгороде
    1-комнатная квартира: Нижний Новгород, Новая улица, 38 (61.7 м) - Фото 1
    1-комнатная квартира: Нижний Новгород, Новая улица, 38 (61.7 м) - Фото 2
    1-комнатная квартира, общая площадь 61м², жилая 10м², кухня 35м²

    Apт.2524923. Просторная 1-комн. квартира в ЖК Симфония Нижнего на 6 этаже. Квартира без отделки, после оформления собственности можно делать ремонт. Общая площадь: 61.7 кв.м., жилая: 10.1 кв.м., площадь просторной кухни-столовой: 35.6 кв.м. Квартира...
    • 61 м²
    • 1-ком
    • 6/9 эт.
    19 625 550 Р
    Агент
    +7 (985) Показать номер
    Посмотреть контакты
    2-комнатная квартира: Нижний Новгород, Новая улица, 38 (77.9 м) - Фото 1
    2-комнатная квартира: Нижний Новгород, Новая улица, 38 (77.9 м) - Фото 2
    2-комнатная квартира, общая площадь 77м², жилая 29м², кухня 23м²

    Apт.2496166. 2-комн. квартира в ЖК Симфония Нижнего на 2 этаже. Квартира без отделки, полностью готова к ремонту. Общая площадь: 77.9 кв.м., жилая: 29.2 кв.м., площадь просторной кухни-столовой: 23.2 кв.м. Квартира угловая, идеально подойдет любителям...
    • 77 м²
    • 2-ком
    • 2/9 эт.
    20 679 490 Р
    Агент
    +7 (985) Показать номер
    Посмотреть контакты
    1-комнатная квартира: Нижний Новгород, Новая улица, 38 (61.7 м) - Фото 1
    1-комнатная квартира: Нижний Новгород, Новая улица, 38 (61.7 м) - Фото 2
    1-комнатная квартира, общая площадь 61м², жилая 10м², кухня 35м²

    Apт.2524918. Продается 1-комн. квартира от застройщика в ЖК Симфония Нижнего на 5 этаже. Квартира без отделки, после получения ключей можно делать ремонт. Общая площадь: 61.7 кв.м., жилая: 10.1 кв.м., площадь просторной кухни-столовой: 35.6 кв.м. Угловая...
    • 61 м²
    • 1-ком
    • 5/9 эт.
    19 625 550 Р
    Агент
    +7 (985) Показать номер
    Посмотреть контакты
    2-комнатная квартира: Нижний Новгород, Новая улица, 38 (77.5 м) - Фото 1
    2-комнатная квартира: Нижний Новгород, Новая улица, 38 (77.5 м) - Фото 2
    2-комнатная квартира, общая площадь 77м², жилая 29м², кухня 18м²

    Apт.2496189. Продается двухкомнатная квартира в ЖК Симфония Нижнего на 2 этаже. Квартира без отделки, после оформления собственности можно делать ремонт. Общая площадь: 77.5 кв.м., жилая: 29 кв.м., площадь просторной кухни-столовой: 18.7 кв.м. Комнаты...
    • 77 м²
    • 2-ком
    • 2/9 эт.
    20 725 940 Р
    Агент
    +7 (985) Показать номер
    Посмотреть контакты
    2-комнатная квартира: Нижний Новгород, Новая улица, 38 (77.9 м) - Фото 1
    2-комнатная квартира: Нижний Новгород, Новая улица, 38 (77.9 м) - Фото 2
    2-комнатная квартира, общая площадь 77м², жилая 29м², кухня 23м²

    Apт.2496166. Просторная 2-комн. квартира в ЖК Симфония Нижнего на 2 этаже. Квартира без отделки, после оформления собственности можно делать ремонт. Общая площадь: 77.9 кв.м., жилая: 29.2 кв.м., площадь просторной кухни-столовой: 23.2 кв.м. Угловая...
    • 77 м²
    • 2-ком
    • 2/9 эт.
    20 679 490 Р
    Агент
    +7 (985) Показать номер
    Посмотреть контакты

    Не нашли подходящего объявления?

    Оставьте заявку, и наши риэлторы подберут квартиру в новостройке в районе Нижнего Новгорода

    (0)