5 719 906 Р 72 780 $ или 62 510

Информация о квартире

31 м2
Площадь
22 м2
Жилая
студия
Комнат
1
Этаж
10
Этажность
Развернуть
Агент
+7 (495) 220-81-95
Начать чат с агентом

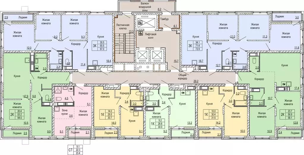
Квартира-студия: Нижний Новгород, Советский район (31.6 м)

Apт.2525220. Однокомнатная квартира-студия с отделкой в ЖК Кузнечиха город на 1 этаже. Общая площадь: 31.6 кв.м., площадь гостиной 22.7 кв.м., из которых 12.2 кв.м. выделено под кухонную зону. Все окна выходят на одну сторону. В квартире одна лоджия, один совмещенный санузел. Высота потолков 2.5 м. Дом монолитный, трехподъездный, высотой 10 этажей. Квартира находится в 1-й секции в корпусе 7. На этаже 8 квартир. В подъезде 1 пассажирский и 1 грузовой лифт. Окончание строительства - 2 квартал 2028 года. Оформление сделки по договору долевого участия. «Кузнечиха Город – это современный семейный жилой комплекс расположенный в Советском районе в окружении парков и развитой инфраструктуры. Проект ориентирован на семейную аудиторию, поэтому особое внимание уделяется благоустройству и формированию соответствующей инфраструктуры. 1-ая очередьзастройкивключает в себя 12 кварталов, состоящих из 37 домов разной этажности.В 2024 году строительство первой очереди было завершено. На территории первой очереди ЖКработают 2 детских сада и школа, открыто более 100 объектов торговой инфраструктуры.2-ая очередь застройки -это еще 16 домов по 10 и 25 этажей. По состоянию на октябрь 2025 г. в эксплуатацию введено 12 домов.Помимо жилых домов, здесь появится и развитая социальная, коммерческая, транспортная инфраструктура и благоустройство.На территории второй очереди уже работает школа,ведется подготовка к строительству детского сада на 320 мест.В3-ей очереди застройки запланировано строительство 11 домов высотой 10, 18 и 25 этажей.Кроме строительства жилых домов, проект предусматривает создание развитой социальной, коммерческой и транспортной инфраструктуры. Ведется подготовка к строительству детского сада, рассчитанного на 220 мест. Все квартиры в ЖК передаются клиентам с чистовой отделкой класса «комфорт В жилых комнатах, кухне и прихожей — обои нейтрального оттенка, белые межкомнатные двери без стекол. Пол в жилых комнатах — ламинат под дуб, в кухне и прихожей — плитка. Натяжные потолки во всех помещениях. Стены и пол в ванной и санузле будут отделаны керамогранитом, в ванной установлен полный комплект сантехники, включая акриловую ванну с экраном и смесителем, тумбу для хранения под раковиной, зеркало с подсветкой. Застройщик также позаботился и о деталях, поэтому все инженерные коммуникации, стояки водоснабжения и канализации будут скрыты декоративными коробами.

Читать полностью
    Позвонить Написать
    5 719 906 Р72 780 $ или 62 510
    Агент
    +7 (495) 220-81-95
    Начать чат с агентом
    Похожие предложения в Нижнем Новгороде
    1-к кв. Нижегородская область, Нижний Новгород Культура с/пос, Новая ... - Фото 1
    1-к кв. Нижегородская область, Нижний Новгород Культура с/пос, Новая ... - Фото 2
    1-комнатная квартира, общая площадь 34м²

    Новая Жизнь — Ройка — это микрорайон, созданный для комфортной и размеренной загородной жизни.На территории площадью свыше 30 га будут расположены 65 малоэтажных домов высотой не более 4 этажей, торговый центр с супермаркетом и всеми необходимыми магазинами...
    • 34 м²
    • 1-ком
    • 1/4 эт.
    5 653 780 Р
    Агент
    +7 (958) Показать номер
    Посмотреть контакты
    1-к кв. Нижегородская область, Нижний Новгород Культура с/пос, Новая ... - Фото 1
    1-к кв. Нижегородская область, Нижний Новгород Культура с/пос, Новая ... - Фото 2
    1-комнатная квартира, общая площадь 32м²

    Новая Жизнь — Ройка — это микрорайон, созданный для комфортной и размеренной загородной жизни.На территории площадью свыше 30 га будут расположены 65 малоэтажных домов высотой не более 4 этажей, торговый центр с супермаркетом и всеми необходимыми магазинами...
    • 32 м²
    • 1-ком
    • 2/4 эт.
    5 672 400 Р
    Агент
    +7 (958) Показать номер
    Посмотреть контакты
    1-к кв. Нижегородская область, Нижний Новгород Культура с/пос, Новая ... - Фото 1
    1-к кв. Нижегородская область, Нижний Новгород Культура с/пос, Новая ... - Фото 2
    1-комнатная квартира, общая площадь 32м²

    Новая Жизнь — Ройка — это микрорайон, созданный для комфортной и размеренной загородной жизни.На территории площадью свыше 30 га будут расположены 65 малоэтажных домов высотой не более 4 этажей, торговый центр с супермаркетом и всеми необходимыми магазинами...
    • 32 м²
    • 1-ком
    • 3/4 эт.
    5 672 400 Р
    Агент
    +7 (958) Показать номер
    Посмотреть контакты
    1-к кв. Нижегородская область, Нижний Новгород Культура с/пос, Новая ... - Фото 1
    1-к кв. Нижегородская область, Нижний Новгород Культура с/пос, Новая ... - Фото 2
    1-комнатная квартира, общая площадь 32м²

    Новая Жизнь — Ройка — это микрорайон, созданный для комфортной и размеренной загородной жизни.На территории площадью свыше 30 га будут расположены 65 малоэтажных домов высотой не более 4 этажей, торговый центр с супермаркетом и всеми необходимыми магазинами...
    • 32 м²
    • 1-ком
    • 4/4 эт.
    5 616 980 Р
    Агент
    +7 (958) Показать номер
    Посмотреть контакты
    Квартира-студия: Нижний Новгород, ЖК Кузнечиха Город (23.4 м) - Фото 1
    Квартира-студия: Нижний Новгород, ЖК Кузнечиха Город (23.4 м) - Фото 2
    студия, общая площадь 23м², жилая 12м²

    Apт.2495469. Продается однокомнатная квартира-студия от застройщика с отделкой в ЖК Кузнечиха город на 21 этаже. Общая площадь: 23.4 кв.м., площадь гостиной 12.7 кв.м., из которых 3.6 кв.м. выделено под кухонную зону. Все окна выходят на одну сторону....
    • 23 м²
    • студия-ком
    • 21/25 эт.
    5 650 922 Р
    Агент
    +7 (495) Показать номер
    Посмотреть контакты

    Не нашли подходящего объявления?

    Оставьте заявку, и наши риэлторы подберут квартиру в новостройке в районе Нижнего Новгорода

    (0)