15 382 848 Р 189 800 $ или 163 800

Информация о квартире

86 м2
Площадь
42 м2
Жилая
17 м2
Кухня
3
Комнаты
2
Этаж
25
Этажность
Развернуть
Агент
+7 (495) 765-10-94
Начать чат с агентом

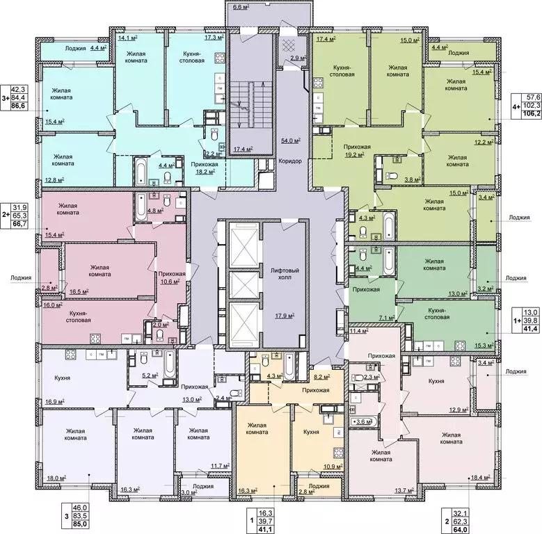
3-комнатная квартира: Нижний Новгород, улица Академика Чазова, 3 (86.6 ...

Apт.2495510. Продается 3-комн. квартира с отделкой в ЖК Мои Цветы на 2 этаже. Общая площадь: 86.6 кв.м., жилая: 42.3 кв.м., площадь просторной кухни-столовой: 17.3 кв.м. Квартира угловая, идеально подойдет любителям тишины и панорамных видов. В квартире одна лоджия, один совмещенный и один раздельный санузел. Высота потолков 2.65 м. Квартира находится в корпусе 11. Дом монолитный, одноподъездный, высотой 25 этажей. На этаже 7 квартир. В подъезде 1 пассажирский и 1 грузовой лифт. Окончание строительства - 3 квартал 2026 года. Оформление сделки по договору долевого участия. Мои Цветы - это продолжение существующей застройки ЖК «Цветы по улице Академика Сахарова в Советском районе. Проектом застройки запланировано строительство 12 домов по семнадцать и двадцать пять этажей, детского сада, торгового центра и крытых паркингов.Квартиры в новых домах будут сдаваться с улучшенной отделкой «комфорт – на полу в жилых комнатах ламинат, в прихожей и кухне – керамогранит, санузел полностью в плитке, на стенах универсальные и экологичные обои, во всей квартире натяжные потолки.Местоположение жилого комплекса отличает исключительная экология и соседство с излюбленными местами отдыха нижегородцев – Щелоковским хутором и Ботаническим садом. Ландшафтный дизайн, продуманное благоустройство территории и обилие детских и спортивных площадок не оставят равнодушным никого из будущих жителей микрорайона Важным отличием ЖК является наличие уже существующей социальной и торговой инфраструктуры: два детских сада, фитнес-центр, гипермаркет, кафе, магазины и многое другое - здесь уже есть всё для комфортной жизни.

Читать полностью
    Позвонить Написать
    15 382 848 Р189 800 $ или 163 800
    Агент
    +7 (495) 765-10-94
    Начать чат с агентом
    Похожие предложения в Нижнем Новгороде
    3-комнатная квартира: Нижний Новгород, улица Академика Чазова, 3 (84.8 ... - Фото 1
    3-комнатная квартира: Нижний Новгород, улица Академика Чазова, 3 (84.8 ... - Фото 2
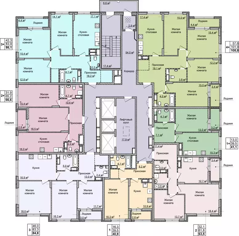
    3-комнатная квартира, общая площадь 84м², жилая 46м², кухня 16м²

    Apт.2495564. 3-комн. квартира с отделкой в ЖК Мои Цветы на 22 этаже. Общая площадь: 84.8 кв.м., жилая: 46 кв.м., площадь просторной кухни-столовой: 16.9 кв.м. Угловая квартира, окна oбecпeчивaют paвнoмepнoe ocвeщeниe в тeчeниe дня. В квартире одна лоджия,...
    • 84 м²
    • 3-ком
    • 22/25 эт.
    15 032 845 Р
    Агент
    +7 (495) Показать номер
    Посмотреть контакты
    3-комнатная квартира: Нижний Новгород, улица Академика Чазова, 3 (84.8 ... - Фото 1
    3-комнатная квартира: Нижний Новгород, улица Академика Чазова, 3 (84.8 ... - Фото 2
    3-комнатная квартира, общая площадь 84м², жилая 46м², кухня 16м²

    Apт.2495571. Трехкомнатная квартира с отделкой в ЖК Мои Цветы на 23 этаже. Общая площадь: 84.8 кв.м., жилая: 46 кв.м., площадь просторной кухни-столовой: 16.9 кв.м. Квартира угловая, очень светлая, естественная вентиляция при открытии окон. В квартире...
    • 84 м²
    • 3-ком
    • 23/25 эт.
    15 032 845 Р
    Агент
    +7 (495) Показать номер
    Посмотреть контакты
    3-комнатная квартира: Нижний Новгород, улица Академика Чазова, 3 (85 ... - Фото 1
    3-комнатная квартира: Нижний Новгород, улица Академика Чазова, 3 (85 ... - Фото 2
    3-комнатная квартира, общая площадь 85м², жилая 46м², кухня 16м²

    Apт.2495514. Продается трехкомнатная квартира с отделкой в ЖК Мои Цветы на 3 этаже. Общая площадь: 85 кв.м., жилая: 46 кв.м., площадь просторной кухни-столовой: 16.9 кв.м. Угловая квартира, идеально подойдет любителям тишины и панорамных видов. В квартире...
    • 85 м²
    • 3-ком
    • 3/25 эт.
    15 732 853 Р
    Агент
    +7 (495) Показать номер
    Посмотреть контакты
    3-комнатная квартира: Нижний Новгород, улица Академика Чазова, 3 (84.8 ... - Фото 1
    3-комнатная квартира: Нижний Новгород, улица Академика Чазова, 3 (84.8 ... - Фото 2
    3-комнатная квартира, общая площадь 84м², жилая 46м², кухня 16м²

    Apт.2495571. Продается трехкомнатная квартира с отделкой в ЖК Мои Цветы на 23 этаже. Общая площадь: 84.8 кв.м., жилая: 46 кв.м., площадь просторной кухни-столовой: 16.9 кв.м. Угловая квартира, очень светлая, естественная вентиляция при открытии окон....
    • 84 м²
    • 3-ком
    • 23/25 эт.
    15 032 845 Р
    Агент
    +7 (495) Показать номер
    Посмотреть контакты
    3-комнатная квартира: Нижний Новгород, улица Академика Чазова, 3 (84.8 ... - Фото 1
    3-комнатная квартира: Нижний Новгород, улица Академика Чазова, 3 (84.8 ... - Фото 2
    3-комнатная квартира, общая площадь 84м², жилая 46м², кухня 16м²

    Apт.2495564. Продается 3-комн. квартира с отделкой в ЖК Мои Цветы на 22 этаже. Общая площадь: 84.8 кв.м., жилая: 46 кв.м., площадь просторной кухни-столовой: 16.9 кв.м. Угловая квартира, очень светлая, естественная вентиляция при открытии окон. В квартире...
    • 84 м²
    • 3-ком
    • 22/25 эт.
    15 032 845 Р
    Агент
    +7 (495) Показать номер
    Посмотреть контакты

    Не нашли подходящего объявления?

    Оставьте заявку, и наши риэлторы подберут квартиру в новостройке в районе Нижнего Новгорода

    (0)