9 000 864 Р 114 500 $ или 98 370

Информация о квартире

50 м2
Площадь
21 м2
Жилая
12 м2
Кухня
2
Комнаты
5
Этаж
10
Этажность
Развернуть
Агент
+7 (495) 220-81-95
Начать чат с агентом

2-комнатная квартира: Нижний Новгород, Советский район (50.1 м)

Apт.2525183. 2-комн. квартира с отделкой в ЖК Кузнечиха город на 5 этаже. Общая площадь: 50.1 кв.м., жилая: 21.4 кв.м., площадь просторной кухни-столовой: 12.5 кв.м. Квартира угловая, идеально подойдет любителям тишины и панорамных видов. В квартире одна лоджия, один раздельный санузел. Высота потолков 2.5 м. Дом монолитный, трехподъездный, высотой 10 этажей. Квартира находится в 1-й секции в корпусе 7. На этаже 8 квартир. В подъезде 1 пассажирский и 1 грузовой лифт. Окончание строительства - 2 квартал 2028 года. Оформление сделки по договору долевого участия. «Кузнечиха Город – это современный семейный жилой комплекс расположенный в Советском районе в окружении парков и развитой инфраструктуры. Проект ориентирован на семейную аудиторию, поэтому особое внимание уделяется благоустройству и формированию соответствующей инфраструктуры. 1-ая очередьзастройкивключает в себя 12 кварталов, состоящих из 37 домов разной этажности.В 2024 году строительство первой очереди было завершено. На территории первой очереди ЖКработают 2 детских сада и школа, открыто более 100 объектов торговой инфраструктуры.2-ая очередь застройки -это еще 16 домов по 10 и 25 этажей. По состоянию на октябрь 2025 г. в эксплуатацию введено 12 домов.Помимо жилых домов, здесь появится и развитая социальная, коммерческая, транспортная инфраструктура и благоустройство.На территории второй очереди уже работает школа,ведется подготовка к строительству детского сада на 320 мест.В3-ей очереди застройки запланировано строительство 11 домов высотой 10, 18 и 25 этажей.Кроме строительства жилых домов, проект предусматривает создание развитой социальной, коммерческой и транспортной инфраструктуры. Ведется подготовка к строительству детского сада, рассчитанного на 220 мест. Все квартиры в ЖК передаются клиентам с чистовой отделкой класса «комфорт В жилых комнатах, кухне и прихожей — обои нейтрального оттенка, белые межкомнатные двери без стекол. Пол в жилых комнатах — ламинат под дуб, в кухне и прихожей — плитка. Натяжные потолки во всех помещениях. Стены и пол в ванной и санузле будут отделаны керамогранитом, в ванной установлен полный комплект сантехники, включая акриловую ванну с экраном и смесителем, тумбу для хранения под раковиной, зеркало с подсветкой. Застройщик также позаботился и о деталях, поэтому все инженерные коммуникации, стояки водоснабжения и канализации будут скрыты декоративными коробами.

Читать полностью
    Позвонить Написать
    9 000 864 Р114 500 $ или 98 370
    Агент
    +7 (495) 220-81-95
    Начать чат с агентом
    Похожие предложения в Нижнем Новгороде
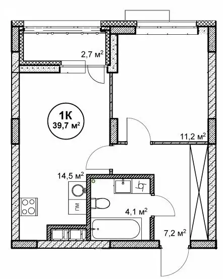
    1-комнатная квартира: Нижний Новгород, посёлок Cовхоза Цветы (39.7 м) - Фото 1
    1-комнатная квартира: Нижний Новгород, посёлок Cовхоза Цветы (39.7 м) - Фото 2
    1-комнатная квартира, общая площадь 39м²

    • 39 м²
    • 1-ком
    • 14/14 эт.
    8 980 000 Р
    Агент
    +7 (909) Показать номер
    Посмотреть контакты
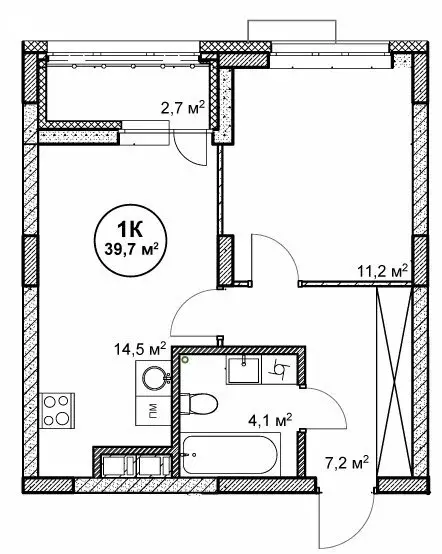
    1-комнатная квартира: Нижний Новгород, посёлок Cовхоза Цветы (39.7 м) - Фото 1
    1-комнатная квартира: Нижний Новгород, посёлок Cовхоза Цветы (39.7 м) - Фото 2
    1-комнатная квартира, общая площадь 39м²

    • 39 м²
    • 1-ком
    • 13/14 эт.
    8 930 000 Р
    Агент
    +7 (909) Показать номер
    Посмотреть контакты
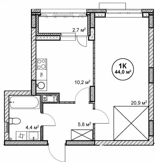
    1-комнатная квартира: Нижний Новгород, посёлок Cовхоза Цветы (44 м) - Фото 1
    1-комнатная квартира: Нижний Новгород, посёлок Cовхоза Цветы (44 м) - Фото 2
    1-комнатная квартира, общая площадь 44м²

    • 44 м²
    • 1-ком
    • 10/14 эт.
    8 990 000 Р
    Агент
    +7 (909) Показать номер
    Посмотреть контакты
    1-комнатная квартира: Нижний Новгород, посёлок Cовхоза Цветы (44 м) - Фото 1
    1-комнатная квартира: Нижний Новгород, посёлок Cовхоза Цветы (44 м) - Фото 2
    1-комнатная квартира, общая площадь 44м²

    • 44 м²
    • 1-ком
    • 9/14 эт.
    8 940 000 Р
    Агент
    +7 (909) Показать номер
    Посмотреть контакты
    1-комнатная квартира: Нижний Новгород, посёлок Cовхоза Цветы (44 м) - Фото 1
    1-комнатная квартира: Нижний Новгород, посёлок Cовхоза Цветы (44 м) - Фото 2
    1-комнатная квартира, общая площадь 44м²

    • 44 м²
    • 1-ком
    • 11/14 эт.
    9 040 000 Р
    Агент
    +7 (909) Показать номер
    Посмотреть контакты

    Не нашли подходящего объявления?

    Оставьте заявку, и наши риэлторы подберут квартиру в новостройке в районе Нижнего Новгорода

    (0)