17 122 230 Р 211 200 $ или 182 300

Информация о квартире

50 м2
Площадь
15 м2
Жилая
23 м2
Кухня
1
Комната
4
Этаж
9
Этажность
Развернуть
Агент
+7 (985) 807-31-44
Начать чат с агентом

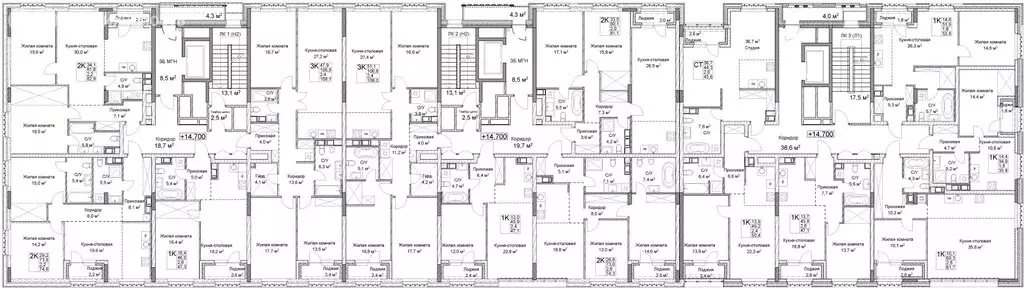
1-комнатная квартира: Нижний Новгород, Новая улица, 38 (50 м)

Apт.2496197. Просторная однокомнатная квартира в ЖК Симфония Нижнего на 4 этаже. Квартира без отделки, после получения ключей можно делать ремонт. Общая площадь: 50 кв.м., жилая: 15.7 кв.м., площадь просторной кухни-столовой: 23.2 кв.м. Все окна выходят на одну сторону. В квартире один совмещенный санузел. Высота потолков 3.0 м. Дом монолитный, трехподъездный, переменной этажности, от 7 до 9 этажей. Квартира находится в 1-й секции высотой 9 этажей в корпусе 2. На этаже 4 квартиры. В подъезде 1 пассажирский и 1 грузовой лифт. Окончание строительства - 4 квартал 2027 года. Оформление сделки по договору долевого участия. Продолжение застройки в историческом центре города - в границах улиц Ильинская и Новая. Локация с пешеходной доступностью к культурно-развлекательной, торговой, транспортной и социальной инфраструктуре. Вторая очередь жилого комплекса представлена двумя домами, имеющими интересное архитектурное решение. Например, дом №1 выглядит как несколько строений, объединенных общим основанием. Минимализм фасадов, благородные цвета, декоративная подсветка – внешний облик определяет характер ЖК: современный, эстетичный, респектабельный.Вся территория продумана до мелочей: закрытый двор только для резидентов, ландшафтный дизайн, зоны отдыха.Здесь представлены квартиры свободной планировки – без стен и перегородок, а значит вы сами создаете конфигурацию своего жилого пространства. Особое внимание эксклюзивным лотам: двухуровневые квартиры, квартиры с видом на историческую застройку и собственной террасой. Жители смогут управлять домашними системами со смартфона, а IP-домофоны будут оснащены функциями распознавания лиц и видеонаблюдения.Места общего пользования служат созданию настроения комфорта и уюта уже с входной группы. Холлы и подъезды выполнены по дизайн проекту и подчеркивают высокий статус дома. Для владельцев авто предусмотрен подземный паркинг, оснащенный доступом из лифта и местами для зарядки электромобилей.

Читать полностью
    Позвонить Написать
    17 122 230 Р211 200 $ или 182 300
    Агент
    +7 (985) 807-31-44
    Начать чат с агентом
    Похожие предложения в Нижнем Новгороде
    1-комнатная квартира: Нижний Новгород, Новая улица, 38 (50 м) - Фото 1
    1-комнатная квартира: Нижний Новгород, Новая улица, 38 (50 м) - Фото 2
    1-комнатная квартира, общая площадь 50м², жилая 15м², кухня 22м²

    Apт.2496223. Однокомнатная квартира от застройщика в ЖК Симфония Нижнего на 3 этаже. Квартира без отделки, после оформления собственности можно делать ремонт. Общая площадь: 50 кв.м., жилая: 15.3 кв.м., площадь просторной кухни-столовой: 22.8 кв.м....
    • 50 м²
    • 1-ком
    • 3/9 эт.
    16 965 780 Р
    Агент
    +7 (985) Показать номер
    Посмотреть контакты
    1-комнатная квартира: Нижний Новгород, Новая улица, 38 (52.8 м) - Фото 1
    1-комнатная квартира: Нижний Новгород, Новая улица, 38 (52.8 м) - Фото 2
    1-комнатная квартира, общая площадь 52м², жилая 14м², кухня 26м²

    Apт.2524916. Продается 1-комн. квартира от застройщика в ЖК Симфония Нижнего на 5 этаже. Квартира без отделки, после оформления собственности можно делать ремонт. Общая площадь: 52.8 кв.м., жилая: 14.6 кв.м., площадь просторной кухни-столовой: 26.3...
    • 52 м²
    • 1-ком
    • 5/9 эт.
    17 561 656 Р
    Агент
    +7 (985) Показать номер
    Посмотреть контакты
    1-комнатная квартира: Нижний Новгород, Новая улица, 38 (47.1 м) - Фото 1
    1-комнатная квартира: Нижний Новгород, Новая улица, 38 (47.1 м) - Фото 2
    1-комнатная квартира, общая площадь 47м², жилая 12м², кухня 22м²

    Apт.2526049. Просторная 1-комн. квартира в ЖК Симфония Нижнего на 9 этаже. Квартира без отделки, после выдачи ключей можно делать ремонт. Общая площадь: 47.1 кв.м., жилая: 12 кв.м., площадь просторной кухни-столовой: 22.8 кв.м. Все окна выходят на одну...
    • 47 м²
    • 1-ком
    • 9/9 эт.
    17 856 420 Р
    Агент
    +7 (985) Показать номер
    Посмотреть контакты
    1-комнатная квартира: Нижний Новгород, Новая улица, 38 (50 м) - Фото 1
    1-комнатная квартира: Нижний Новгород, Новая улица, 38 (50 м) - Фото 2
    1-комнатная квартира, общая площадь 50м², жилая 15м², кухня 22м²

    Apт.2496229. Просторная однокомнатная квартира в ЖК Симфония Нижнего на 4 этаже. Квартира без отделки, полностью готова к ремонту. Общая площадь: 50 кв.м., жилая: 15.3 кв.м., площадь просторной кухни-столовой: 22.8 кв.м. Все окна выходят на одну сторону....
    • 50 м²
    • 1-ком
    • 4/9 эт.
    17 122 230 Р
    Агент
    +7 (985) Показать номер
    Посмотреть контакты
    1-комнатная квартира: Нижний Новгород, Новая улица, 38 (52.8 м) - Фото 1
    1-комнатная квартира: Нижний Новгород, Новая улица, 38 (52.8 м) - Фото 2
    1-комнатная квартира, общая площадь 52м², жилая 14м², кухня 26м²

    Apт.2524921. Продается 1-комн. квартира в ЖК Симфония Нижнего на 6 этаже. Квартира без отделки, после оформления собственности можно делать ремонт. Общая площадь: 52.8 кв.м., жилая: 14.6 кв.м., площадь просторной кухни-столовой: 26.3 кв.м. Угловая квартира,...
    • 52 м²
    • 1-ком
    • 6/9 эт.
    17 561 656 Р
    Агент
    +7 (985) Показать номер
    Посмотреть контакты

    Не нашли подходящего объявления?

    Оставьте заявку, и наши риэлторы подберут квартиру в новостройке в районе Нижнего Новгорода

    (0)