7 099 734 Р 89 840 $ или 78 400

Информация о квартире

30 м2
Площадь
14 м2
Жилая
9 м2
Кухня
1
Комната
18
Этаж
25
Этажность
Развернуть
Агент
+7 (495) 220-81-95
Начать чат с агентом

1-комнатная квартира: Нижний Новгород, ЖК Кузнечиха Город (30.8 м)

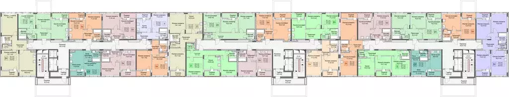
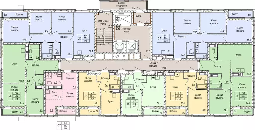
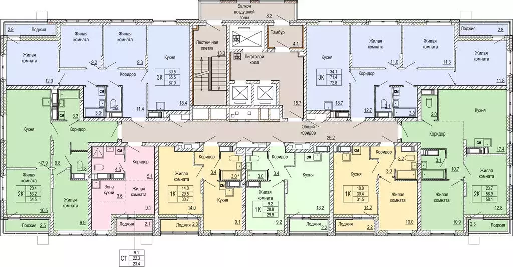
Apт.2495446. Однокомнатная квартира с отделкой в ЖК Кузнечиха город на 18 этаже. Общая площадь: 30.8 кв.м., жилая: 14 кв.м., площадь просторной кухни-столовой: 9.2 кв.м. Все окна выходят на одну сторону. В квартире одна лоджия, один совмещенный санузел. Высота потолков 2.5 м. Квартира находится в корпусе 14. Дом монолитный, одноподъездный, высотой 25 этажей. На этаже 8 квартир. В подъезде 1 пассажирский и 1 грузовой лифт. Окончание строительства - 2 квартал 2027 года. Оформление сделки по договору долевого участия. «Кузнечиха Город – это современный семейный жилой комплекс расположенный в Советском районе в окружении парков и развитой инфраструктуры. Проект ориентирован на семейную аудиторию, поэтому особое внимание уделяется благоустройству и формированию соответствующей инфраструктуры. 1-ая очередьзастройкивключает в себя 12 кварталов, состоящих из 37 домов разной этажности.В 2024 году строительство первой очереди было завершено. На территории первой очереди ЖКработают 2 детских сада и школа, открыто более 100 объектов торговой инфраструктуры.2-ая очередь застройки -это еще 16 домов по 10 и 25 этажей. По состоянию на октябрь 2025 г. в эксплуатацию введено 12 домов.Помимо жилых домов, здесь появится и развитая социальная, коммерческая, транспортная инфраструктура и благоустройство.На территории второй очереди уже работает школа,ведется подготовка к строительству детского сада на 320 мест.В3-ей очереди застройки запланировано строительство 11 домов высотой 10, 18 и 25 этажей.Кроме строительства жилых домов, проект предусматривает создание развитой социальной, коммерческой и транспортной инфраструктуры. Ведется подготовка к строительству детского сада, рассчитанного на 220 мест. Все квартиры в ЖК передаются клиентам с чистовой отделкой класса «комфорт В жилых комнатах, кухне и прихожей — обои нейтрального оттенка, белые межкомнатные двери без стекол. Пол в жилых комнатах — ламинат под дуб, в кухне и прихожей — плитка. Натяжные потолки во всех помещениях. Стены и пол в ванной и санузле будут отделаны керамогранитом, в ванной установлен полный комплект сантехники, включая акриловую ванну с экраном и смесителем, тумбу для хранения под раковиной, зеркало с подсветкой. Застройщик также позаботился и о деталях, поэтому все инженерные коммуникации, стояки водоснабжения и канализации будут скрыты декоративными коробами.

Читать полностью
    Позвонить Написать
    7 099 734 Р89 840 $ или 78 400
    Агент
    +7 (495) 220-81-95
    Начать чат с агентом
    Похожие предложения в Нижнем Новгороде
    1-к кв. Нижегородская область, Нижний Новгород Кузнечиха Город жилой ... - Фото 1
    1-к кв. Нижегородская область, Нижний Новгород Кузнечиха Город жилой ... - Фото 2
    1-комнатная квартира, общая площадь 30м², жилая 14м², кухня 9м²

    1-комн. квартира с отделкой в ЖК Кузнечиха город на 15 этаже. Общая площадь: 30.8 кв.м., жилая: 14 кв.м., площадь просторной кухни-столовой: 9.2 кв.м. Все окна выходят на одну сторону. В квартире одна лоджия, один совмещенный санузел. Высота потолков...
    • 30 м²
    • 1-ком
    • 15/25 эт.
    • монолит
    7 066 107 Р
    Агент
    +7 (938) Показать номер
    Посмотреть контакты
    1-комнатная квартира: Нижний Новгород, Советский район (34.8 м) - Фото 1
    1-комнатная квартира: Нижний Новгород, Советский район (34.8 м) - Фото 2
    1-комнатная квартира, общая площадь 34м², жилая 11м², кухня 13м²

    Apт.2525163. Продается 1-комн. квартира от застройщика с отделкой в ЖК Кузнечиха город на 2 этаже. Общая площадь: 34.8 кв.м., жилая: 11.2 кв.м., площадь просторной кухни-столовой: 13.7 кв.м. Все окна выходят на одну сторону. В квартире одна лоджия,...
    • 34 м²
    • 1-ком
    • 2/10 эт.
    7 183 019 Р
    Агент
    +7 (495) Показать номер
    Посмотреть контакты
    1-комнатная квартира: Нижний Новгород, ЖК Кузнечиха Город (30 м) - Фото 1
    1-комнатная квартира: Нижний Новгород, ЖК Кузнечиха Город (30 м) - Фото 2
    1-комнатная квартира, общая площадь 30м², жилая 9м², кухня 13м²

    Apт.2495483. Однокомнатная квартира от застройщика с отделкой в ЖК Кузнечиха город на 23 этаже. Общая площадь: 30 кв.м., жилая: 9.2 кв.м., площадь просторной кухни-столовой: 13.2 кв.м. Все окна выходят на одну сторону. В квартире одна лоджия, один совмещенный...
    • 30 м²
    • 1-ком
    • 23/25 эт.
    7 185 501 Р
    Агент
    +7 (495) Показать номер
    Посмотреть контакты
    1-комнатная квартира: Нижний Новгород, ЖК Кузнечиха Город (30.7 м) - Фото 1
    1-комнатная квартира: Нижний Новгород, ЖК Кузнечиха Город (30.7 м) - Фото 2
    1-комнатная квартира, общая площадь 30м², жилая 14м², кухня 9м²

    Apт.2495476. 1-комн. квартира от застройщика с отделкой в ЖК Кузнечиха город на 22 этаже. Общая площадь: 30.7 кв.м., жилая: 14 кв.м., площадь просторной кухни-столовой: 9.1 кв.м. Все окна выходят на одну сторону. В квартире одна лоджия, один совмещенный...
    • 30 м²
    • 1-ком
    • 22/25 эт.
    7 133 116 Р
    Агент
    +7 (495) Показать номер
    Посмотреть контакты
    1-к кв. Нижегородская область, Нижний Новгород д. Анкудиновка, КМ ... - Фото 1
    1-к кв. Нижегородская область, Нижний Новгород д. Анкудиновка, КМ ... - Фото 2
    1-комнатная квартира, общая площадь 40м²

    Продаётся 1-комнатная квартира в строящемся доме (53), срок сдачи: III-кв. 2027, общей площадью 40.1 кв.м., на 19 этаже. Расположение, транспортная доступность Жилой комплекс КМ Анкудиновский парк - это микрорайон, в состав которого входит 27 монолитно-кирпичных...
    • 40 м²
    • 1-ком
    • 19/25 эт.
    • панельный
    7 097 700 Р
    Агент
    +7 (980) Показать номер
    Посмотреть контакты

    Не нашли подходящего объявления?

    Оставьте заявку, и наши риэлторы подберут квартиру в новостройке в районе Нижнего Новгорода

    (0)