9 566 147 Р 121 100 $ или 105 600

Информация о квартире

54 м2
Площадь
20 м2
Жилая
17 м2
Кухня
2
Комнаты
18
Этаж
25
Этажность
Развернуть
Агент
+7 (495) 220-81-95
Начать чат с агентом

2-комнатная квартира: Нижний Новгород, ЖК Кузнечиха Город (54.5 м)

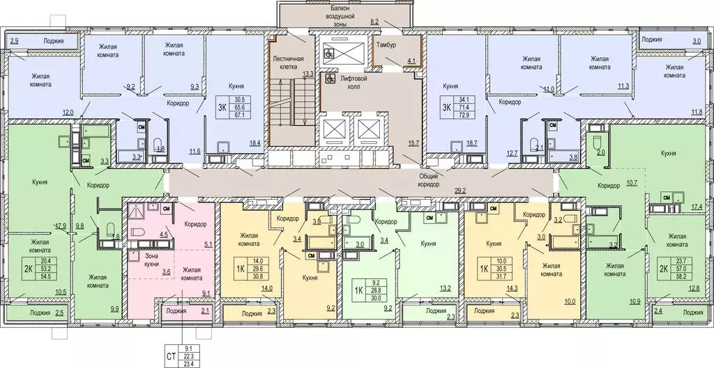
Apт.2495448. Просторная 2-комн. квартира с отделкой в ЖК Кузнечиха город на 18 этаже. Общая площадь: 54.5 кв.м., жилая: 20.4 кв.м., площадь просторной кухни-столовой: 17.9 кв.м. Угловая квартира, очень светлая, естественная вентиляция при открытии окон. В квартире одна лоджия, один раздельный санузел. Высота потолков 2.5 м. Квартира находится в корпусе 14. Дом монолитный, одноподъездный, высотой 25 этажей. На этаже 8 квартир. В подъезде 1 пассажирский и 1 грузовой лифт. Окончание строительства - 2 квартал 2027 года. Оформление сделки по договору долевого участия. «Кузнечиха Город – это современный семейный жилой комплекс расположенный в Советском районе в окружении парков и развитой инфраструктуры. Проект ориентирован на семейную аудиторию, поэтому особое внимание уделяется благоустройству и формированию соответствующей инфраструктуры. 1-ая очередьзастройкивключает в себя 12 кварталов, состоящих из 37 домов разной этажности.В 2024 году строительство первой очереди было завершено. На территории первой очереди ЖКработают 2 детских сада и школа, открыто более 100 объектов торговой инфраструктуры.2-ая очередь застройки -это еще 16 домов по 10 и 25 этажей. По состоянию на октябрь 2025 г. в эксплуатацию введено 12 домов.Помимо жилых домов, здесь появится и развитая социальная, коммерческая, транспортная инфраструктура и благоустройство.На территории второй очереди уже работает школа,ведется подготовка к строительству детского сада на 320 мест.В3-ей очереди застройки запланировано строительство 11 домов высотой 10, 18 и 25 этажей.Кроме строительства жилых домов, проект предусматривает создание развитой социальной, коммерческой и транспортной инфраструктуры. Ведется подготовка к строительству детского сада, рассчитанного на 220 мест. Все квартиры в ЖК передаются клиентам с чистовой отделкой класса «комфорт В жилых комнатах, кухне и прихожей — обои нейтрального оттенка, белые межкомнатные двери без стекол. Пол в жилых комнатах — ламинат под дуб, в кухне и прихожей — плитка. Натяжные потолки во всех помещениях. Стены и пол в ванной и санузле будут отделаны керамогранитом, в ванной установлен полный комплект сантехники, включая акриловую ванну с экраном и смесителем, тумбу для хранения под раковиной, зеркало с подсветкой. Застройщик также позаботился и о деталях, поэтому все инженерные коммуникации, стояки водоснабжения и канализации будут скрыты декоративными коробами.

Читать полностью
    Позвонить Написать
    9 566 147 Р121 100 $ или 105 600
    Агент
    +7 (495) 220-81-95
    Начать чат с агентом
    Похожие предложения в Нижнем Новгороде
    Студия Нижегородская область, Нижний Новгород ул. Тургенева (33.7 м) - Фото 1
    Студия Нижегородская область, Нижний Новгород ул. Тургенева (33.7 м) - Фото 2
    студия, общая площадь 33м², жилая 13м², кухня 9м²

    Однокомнатная квартира-студия от застройщика с предчистовой отделкой в ЖК ИДЕЛЬ. Квартал на Сенной на 3 этаже. Общая площадь: 33.7 кв.м., площадь гостиной 22.8 кв.м., из которых 9 кв.м. выделено под кухонную зону. Все окна выходят на одну сторону. В...
    • 33 м²
    • студия-ком
    • 3/12 эт.
    • монолит
    9 699 862 Р
    Агент
    +7 (958) Показать номер
    Посмотреть контакты
    Студия Нижегородская область, Нижний Новгород ул. Тургенева (33.7 м) - Фото 1
    Студия Нижегородская область, Нижний Новгород ул. Тургенева (33.7 м) - Фото 2
    студия, общая площадь 33м², жилая 13м², кухня 9м²

    Однокомнатная квартира-студия с предчистовой отделкой в ЖК ИДЕЛЬ. Квартал на Сенной на 2 этаже. Общая площадь: 33.7 кв.м., площадь гостиной 22.8 кв.м., из которых 9 кв.м. выделено под кухонную зону. Все окна выходят на одну сторону. В квартире одна...
    • 33 м²
    • студия-ком
    • 2/12 эт.
    • монолит
    9 699 862 Р
    Агент
    +7 (958) Показать номер
    Посмотреть контакты
    2-комнатная квартира: Нижний Новгород, ЖК Кузнечиха Город (54.5 м) - Фото 1
    2-комнатная квартира: Нижний Новгород, ЖК Кузнечиха Город (54.5 м) - Фото 2
    2-комнатная квартира, общая площадь 54м², жилая 20м², кухня 17м²

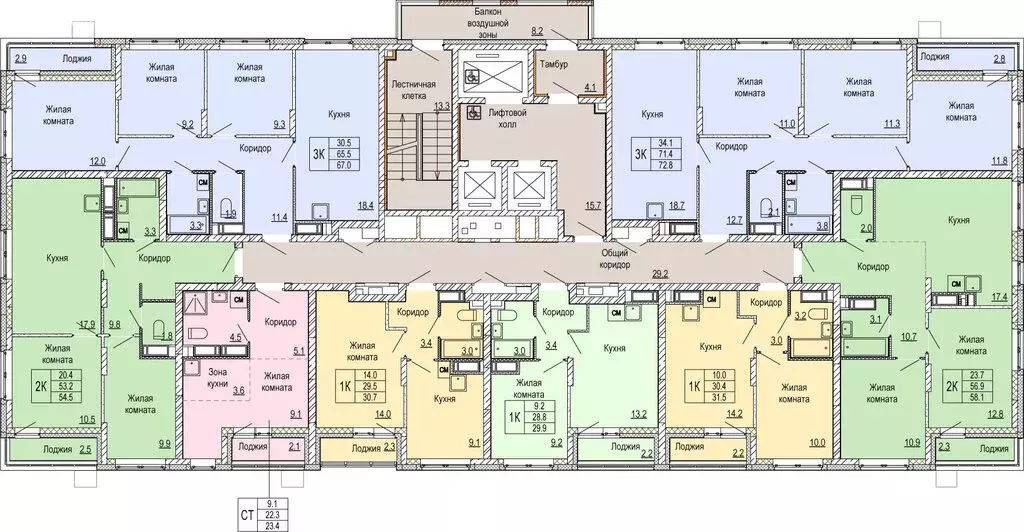
    Apт.2495462. Продается 2-комн. квартира с отделкой в ЖК Кузнечиха город на 20 этаже. Общая площадь: 54.5 кв.м., жилая: 20.4 кв.м., площадь просторной кухни-столовой: 17.9 кв.м. Угловая квартира, очень светлая, естественная вентиляция при открытии окон....
    • 54 м²
    • 2-ком
    • 20/25 эт.
    9 566 147 Р
    Агент
    +7 (495) Показать номер
    Посмотреть контакты
    2-комнатная квартира: Нижний Новгород, ЖК Кузнечиха Город (54.5 м) - Фото 1
    2-комнатная квартира: Нижний Новгород, ЖК Кузнечиха Город (54.5 м) - Фото 2
    2-комнатная квартира, общая площадь 54м², жилая 20м², кухня 17м²

    Apт.2495455. 2-комн. квартира от застройщика с отделкой в ЖК Кузнечиха город на 19 этаже. Общая площадь: 54.5 кв.м., жилая: 20.4 кв.м., площадь просторной кухни-столовой: 17.9 кв.м. Квартира угловая, очень светлая, естественная вентиляция при открытии...
    • 54 м²
    • 2-ком
    • 19/25 эт.
    9 566 147 Р
    Агент
    +7 (495) Показать номер
    Посмотреть контакты
    1-к кв. Нижегородская область, Нижний Новгород Ветеринарная ул. (43.01 ... - Фото 1
    1-к кв. Нижегородская область, Нижний Новгород Ветеринарная ул. (43.01 ... - Фото 2
    1-комнатная квартира, общая площадь 43м², жилая 13м²

    КМ Тимирязевский. 3 очередь — старт продаж Продолжение проекта, которому доверяют. Самые выгодные цены на старте строительства Покупайте сейчас — пока цена за м минимальна. КМ Тимирязевский — современный жилой комплекс комфорт-класса в центре Нижнего...
    • 43 м²
    • 1-ком
    • 2/18 эт.
    • панельный
    9 599 832 Р
    Агент
    +7 (958) Показать номер
    Посмотреть контакты

    Не нашли подходящего объявления?

    Оставьте заявку, и наши риэлторы подберут квартиру в новостройке в районе Нижнего Новгорода

    (0)