11 718 816 Р 150 300 $ или 129 400

Информация о квартире

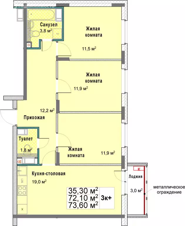
73 м2
Площадь
35 м2
Жилая
19 м2
Кухня
3
Комнаты
11
Этаж
12
Этажность
Развернуть
Агент
+7 (916) 111-79-80
Начать чат с агентом

3-комнатная квартира: Нижний Новгород, квартал Кооперативный посёлок, ...

Apт.2495805. Просторная 3-комн. квартира с отделкой в ЖК Сормовский дуэт на 11 этаже. Общая площадь: 73.6 кв.м., жилая: 35.3 кв.м., площадь просторной кухни-столовой: 19 кв.м. Квартира угловая, идеально подойдет любителям тишины и панорамных видов. В квартире один балкон, один совмещенный и один раздельный санузел. Высота потолков 2.65 м. Дом монолитный, двухподъездный, высотой 12 этажей. Квартира находится в 1-й секции в корпусе 1. На этаже 9 квартир. В подъезде 1 пассажирский и 1 грузовой лифт. Окончание строительства - 3 квартал 2026 года. Оформление сделки по договору долевого участия. ЖК «Сормовский дуэт будет построен в границах улиц Ударная, Достоевского, 8 Марта, в окружении развитой инфраструктуры центра Сормова. Планом застройки предусмотрено 2 дома по 12 этажей. Местоположение.В шаговой доступности излюбленные прогулочные зоны местных жителей – скверы имени Рыбакова и Рязанова, бульвар Юбилейный, Сормовский парк, зоопарк, стадион «Труд . Квартира.Отделка комфорт-класса в нейтральных тонах: на полу в жилых комнатах – ламинат, в кухне и прихожей – керамическая плитка. По всей квартире предусмотрены натяжные потолки. Санузел полностью выложен плиткой, установлены раковины с тумбами и зеркала с подсветкой.МОПыХоллы и подъезды оформлены по авторскому дизайн-проекту с применением износостойких материалов. На первом этаже разместится зона ожидания.Типовые этажи повторяют стиль оформления входной группы первого этажа. Стены лифтовых холлов отделаны износостойким керамогранитом, что позволит сохранить отделку помещений на протяжении длительного времени.Двор.Игровые зоны для детей, зона отдыха для взрослых в окружении зелени. Для любителей активного образа жизни предусмотрена многофункциональная зона воркаута и универсальная спортивная площадка с резиновым покрытием.Безопасность.Огороженная территория и система контроля доступа сделают дворовую территорию не только приватной, но и безопасной. Домофон с распознаванием лиц и бесконтактным доступом. Комплексная система видеонаблюдения за местами общего пользования.

Читать полностью
    Позвонить Написать
    11 718 816 Р150 300 $ или 129 400
    Агент
    +7 (916) 111-79-80
    Начать чат с агентом
    Похожие предложения в Нижнем Новгороде
    3-комнатная квартира: Нижний Новгород, квартал Кооперативный посёлок, ... - Фото 1
    3-комнатная квартира: Нижний Новгород, квартал Кооперативный посёлок, ... - Фото 2
    3-комнатная квартира, общая площадь 67м², жилая 33м², кухня 18м²

    Apт.2525813. 3-комн. квартира от застройщика с отделкой в ЖК Сормовский дуэт на 9 этаже. Общая площадь: 67.8 кв.м., жилая: 33.7 кв.м., площадь просторной кухни-столовой: 18.5 кв.м. Квартира очень светлая, трехсторонняя, планировка кoмфopтнa для бoльшиx...
    • 67 м²
    • 3-ком
    • 9/12 эт.
    11 579 897 Р
    Агент
    +7 (916) Показать номер
    Посмотреть контакты
    3-комнатная квартира: Нижний Новгород, квартал Кооперативный посёлок, ... - Фото 1
    3-комнатная квартира: Нижний Новгород, квартал Кооперативный посёлок, ... - Фото 2
    3-комнатная квартира, общая площадь 72м², жилая 35м², кухня 19м²

    Apт.2495762. Трехкомнатная квартира с отделкой в ЖК Сормовский дуэт на 4 этаже. Общая площадь: 72.1 кв.м., жилая: 35.3 кв.м., площадь просторной кухни-столовой: 19 кв.м. Квартира угловая, окна oбecпeчивaют paвнoмepнoe ocвeщeниe в тeчeниe дня. В квартире...
    • 72 м²
    • 3-ком
    • 4/12 эт.
    11 394 911 Р
    Агент
    +7 (916) Показать номер
    Посмотреть контакты
    3-комнатная квартира: Нижний Новгород, квартал Кооперативный посёлок, ... - Фото 1
    3-комнатная квартира: Нижний Новгород, квартал Кооперативный посёлок, ... - Фото 2
    3-комнатная квартира, общая площадь 70м², жилая 35м², кухня 19м²

    Apт.2496014. Продается трехкомнатная квартира с отделкой в ЖК Сормовский дуэт на 4 этаже. Общая площадь: 70.9 кв.м., жилая: 35.3 кв.м., площадь просторной кухни-столовой: 19 кв.м. Комнаты изолированные, все окна выходят на одну сторону. В квартире один...
    • 70 м²
    • 3-ком
    • 4/12 эт.
    11 423 318 Р
    Агент
    +7 (916) Показать номер
    Посмотреть контакты
    3-комнатная квартира: Нижний Новгород, квартал Кооперативный посёлок, ... - Фото 1
    3-комнатная квартира: Нижний Новгород, квартал Кооперативный посёлок, ... - Фото 2
    3-комнатная квартира, общая площадь 73м², жилая 35м², кухня 19м²

    Apт.2496716. Продается 3-комн. квартира от застройщика с отделкой в ЖК Сормовский дуэт на 8 этаже. Общая площадь: 73.6 кв.м., жилая: 35.3 кв.м., площадь просторной кухни-столовой: 19 кв.м. Квартира угловая, идеально подойдет любителям тишины и панорамных...
    • 73 м²
    • 3-ком
    • 8/12 эт.
    11 722 519 Р
    Агент
    +7 (916) Показать номер
    Посмотреть контакты
    2-комнатная квартира: Нижний Новгород, улица 50-летия Победы, 23 (59.7 ... - Фото 1
    2-комнатная квартира: Нижний Новгород, улица 50-летия Победы, 23 (59.7 ... - Фото 2
    2-комнатная квартира, общая площадь 59м², жилая 28м²

    • 59 м²
    • 2-ком
    • 7/7 эт.
    11 020 000 Р
    Агент
    +7 (906) Показать номер
    Посмотреть контакты

    Не нашли подходящего объявления?

    Оставьте заявку, и наши риэлторы подберут квартиру в новостройке в районе Нижнего Новгорода

    (0)