5 906 303 Р 75 500 $ или 65 030

Информация о квартире

23 м2
Площадь
12 м2
Жилая
студия
Комнат
24
Этаж
25
Этажность
Развернуть
Агент
+7 (495) 220-81-95
Начать чат с агентом

Квартира-студия: Нижний Новгород, ЖК Кузнечиха Город (23.4 м)

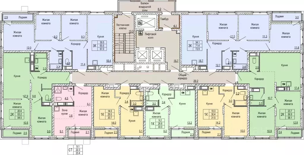
Apт.2495493. Просторная 1-комн. квартира-студия с отделкой в ЖК Кузнечиха город на 24 этаже. Общая площадь: 23.4 кв.м., площадь гостиной 12.7 кв.м., из которых 3.6 кв.м. выделено под кухонную зону. Все окна выходят на одну сторону. В квартире одна лоджия, один совмещенный санузел. Высота потолков 2.5 м. Квартира находится в корпусе 14. Дом монолитный, одноподъездный, высотой 25 этажей. На этаже 8 квартир. В подъезде 1 пассажирский и 1 грузовой лифт. Окончание строительства - 2 квартал 2027 года. Оформление сделки по договору долевого участия. «Кузнечиха Город – это современный семейный жилой комплекс расположенный в Советском районе в окружении парков и развитой инфраструктуры. Проект ориентирован на семейную аудиторию, поэтому особое внимание уделяется благоустройству и формированию соответствующей инфраструктуры. 1-ая очередьзастройкивключает в себя 12 кварталов, состоящих из 37 домов разной этажности.В 2024 году строительство первой очереди было завершено. На территории первой очереди ЖКработают 2 детских сада и школа, открыто более 100 объектов торговой инфраструктуры.2-ая очередь застройки -это еще 16 домов по 10 и 25 этажей. По состоянию на октябрь 2025 г. в эксплуатацию введено 12 домов.Помимо жилых домов, здесь появится и развитая социальная, коммерческая, транспортная инфраструктура и благоустройство.На территории второй очереди уже работает школа,ведется подготовка к строительству детского сада на 320 мест.В3-ей очереди застройки запланировано строительство 11 домов высотой 10, 18 и 25 этажей.Кроме строительства жилых домов, проект предусматривает создание развитой социальной, коммерческой и транспортной инфраструктуры. Ведется подготовка к строительству детского сада, рассчитанного на 220 мест. Все квартиры в ЖК передаются клиентам с чистовой отделкой класса «комфорт В жилых комнатах, кухне и прихожей — обои нейтрального оттенка, белые межкомнатные двери без стекол. Пол в жилых комнатах — ламинат под дуб, в кухне и прихожей — плитка. Натяжные потолки во всех помещениях. Стены и пол в ванной и санузле будут отделаны керамогранитом, в ванной установлен полный комплект сантехники, включая акриловую ванну с экраном и смесителем, тумбу для хранения под раковиной, зеркало с подсветкой. Застройщик также позаботился и о деталях, поэтому все инженерные коммуникации, стояки водоснабжения и канализации будут скрыты декоративными коробами.

Читать полностью
    Позвонить Написать
    5 906 303 Р75 500 $ или 65 030
    Агент
    +7 (495) 220-81-95
    Начать чат с агентом
    Похожие предложения в Нижнем Новгороде
    Студия Нижегородская область, Нижний Новгород Кузнечиха Город жилой ... - Фото 1
    Студия Нижегородская область, Нижний Новгород Кузнечиха Город жилой ... - Фото 2
    студия, общая площадь 23м², жилая 12м², кухня 3м²

    Продается однокомнатная квартира-студия с отделкой в ЖК Кузнечиха город на 25 этаже. Общая площадь: 23.2 кв.м., площадь гостиной 15.6 кв.м., из которых 3.4 кв.м. выделено под кухонную зону. Все окна выходят на одну сторону. В квартире один балкон, один...
    • 23 м²
    • студия-ком
    • 25/25 эт.
    • монолит
    5 993 873 Р
    Агент
    +7 (938) Показать номер
    Посмотреть контакты
    Студия Нижегородская область, Нижний Новгород Кузнечиха Город жилой ... - Фото 1
    Студия Нижегородская область, Нижний Новгород Кузнечиха Город жилой ... - Фото 2
    студия, общая площадь 23м², жилая 9м², кухня 3м²

    Просторная 1-комн. квартира-студия с отделкой в ЖК Кузнечиха город на 24 этаже. Общая площадь: 23.4 кв.м., площадь гостиной 12.7 кв.м., из которых 3.6 кв.м. выделено под кухонную зону. Все окна выходят на одну сторону. В квартире одна лоджия, один совмещенный...
    • 23 м²
    • студия-ком
    • 24/25 эт.
    • монолит
    5 906 303 Р
    Агент
    +7 (938) Показать номер
    Посмотреть контакты
    Студия Нижегородская область, Нижний Новгород Кузнечиха Город жилой ... - Фото 1
    Студия Нижегородская область, Нижний Новгород Кузнечиха Город жилой ... - Фото 2
    студия, общая площадь 23м², жилая 9м², кухня 3м²

    1-комн. квартира-студия с отделкой в ЖК Кузнечиха город на 23 этаже. Общая площадь: 23.4 кв.м., площадь гостиной 12.7 кв.м., из которых 3.6 кв.м. выделено под кухонную зону. Все окна выходят на одну сторону. В квартире одна лоджия, один совмещенный...
    • 23 м²
    • студия-ком
    • 23/25 эт.
    • монолит
    5 906 303 Р
    Агент
    +7 (938) Показать номер
    Посмотреть контакты
    Студия Нижегородская область, Нижний Новгород Кузнечиха Город жилой ... - Фото 1
    Студия Нижегородская область, Нижний Новгород Кузнечиха Город жилой ... - Фото 2
    студия, общая площадь 23м², жилая 9м², кухня 3м²

    Просторная 1-комн. квартира-студия с отделкой в ЖК Кузнечиха город на 22 этаже. Общая площадь: 23.4 кв.м., площадь гостиной 12.7 кв.м., из которых 3.6 кв.м. выделено под кухонную зону. Все окна выходят на одну сторону. В квартире одна лоджия, один совмещенный...
    • 23 м²
    • студия-ком
    • 22/25 эт.
    • монолит
    5 906 303 Р
    Агент
    +7 (938) Показать номер
    Посмотреть контакты
    Студия Нижегородская область, Нижний Новгород Кузнечиха Город жилой ... - Фото 1
    Студия Нижегородская область, Нижний Новгород Кузнечиха Город жилой ... - Фото 2
    студия, общая площадь 23м², жилая 9м², кухня 3м²

    Продается 1-комн. квартира-студия с отделкой в ЖК Кузнечиха город на 18 этаже. Общая площадь: 23.4 кв.м., площадь гостиной 12.7 кв.м., из которых 3.6 кв.м. выделено под кухонную зону. Все окна выходят на одну сторону. В квартире одна лоджия, один совмещенный...
    • 23 м²
    • студия-ком
    • 18/25 эт.
    • монолит
    5 880 095 Р
    Агент
    +7 (938) Показать номер
    Посмотреть контакты

    Не нашли подходящего объявления?

    Оставьте заявку, и наши риэлторы подберут квартиру в новостройке в районе Нижнего Новгорода

    (0)