8 843 815 Р 114 200 $ или 98 430

Информация о квартире

41 м2
Площадь
13 м2
Жилая
15 м2
Кухня
1
Комната
24
Этаж
25
Этажность
Развернуть
Агент
+7 (495) 765-10-94
Начать чат с агентом

1-комнатная квартира: Нижний Новгород, улица Академика Чазова, 3 (41.1 ...

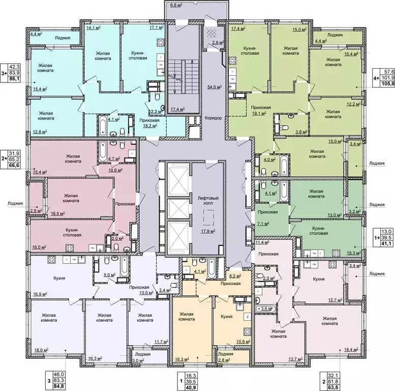
Apт.2495574. Просторная 1-комн. квартира с отделкой в ЖК Мои Цветы на 24 этаже. Общая площадь: 41.1 кв.м., жилая: 13 кв.м., площадь просторной кухни-столовой: 15.3 кв.м. Все окна выходят на одну сторону. В квартире одна лоджия, один совмещенный санузел. Высота потолков 2.65 м. Квартира находится в корпусе 11. Дом монолитный, одноподъездный, высотой 25 этажей. На этаже 7 квартир. В подъезде 1 пассажирский и 1 грузовой лифт. Окончание строительства - 3 квартал 2026 года. Оформление сделки по договору долевого участия. Мои Цветы - это продолжение существующей застройки ЖК «Цветы по улице Академика Сахарова в Советском районе. Проектом застройки запланировано строительство 12 домов по семнадцать и двадцать пять этажей, детского сада, торгового центра и крытых паркингов.Квартиры в новых домах будут сдаваться с улучшенной отделкой «комфорт – на полу в жилых комнатах ламинат, в прихожей и кухне – керамогранит, санузел полностью в плитке, на стенах универсальные и экологичные обои, во всей квартире натяжные потолки.Местоположение жилого комплекса отличает исключительная экология и соседство с излюбленными местами отдыха нижегородцев – Щелоковским хутором и Ботаническим садом. Ландшафтный дизайн, продуманное благоустройство территории и обилие детских и спортивных площадок не оставят равнодушным никого из будущих жителей микрорайона Важным отличием ЖК является наличие уже существующей социальной и торговой инфраструктуры: два детских сада, фитнес-центр, гипермаркет, кафе, магазины и многое другое - здесь уже есть всё для комфортной жизни.

Читать полностью
    Позвонить Написать
    8 843 815 Р114 200 $ или 98 430
    Агент
    +7 (495) 765-10-94
    Начать чат с агентом
    Похожие предложения в Нижнем Новгороде
    1-комнатная квартира: Нижний Новгород, улица Академика Чазова, 3 (40.9 ... - Фото 1
    1-комнатная квартира: Нижний Новгород, улица Академика Чазова, 3 (40.9 ... - Фото 2
    1-комнатная квартира, общая площадь 40м², жилая 16м², кухня 10м²

    Apт.2495557. Продается 1-комн. квартира с отделкой в ЖК Мои Цветы на 21 этаже. Общая площадь: 40.9 кв.м., жилая: 16.3 кв.м., площадь просторной кухни-столовой: 10.9 кв.м. Все окна выходят на одну сторону. В квартире одна лоджия, один совмещенный санузел....
    • 40 м²
    • 1-ком
    • 21/25 эт.
    8 793 787 Р
    Агент
    +7 (495) Показать номер
    Посмотреть контакты
    1-комнатная квартира: Нижний Новгород, улица Академика Чазова, 3 (40.9 ... - Фото 1
    1-комнатная квартира: Нижний Новгород, улица Академика Чазова, 3 (40.9 ... - Фото 2
    1-комнатная квартира, общая площадь 40м², жилая 16м², кухня 10м²

    Apт.2495557. 1-комн. квартира с отделкой в ЖК Мои Цветы на 21 этаже. Общая площадь: 40.9 кв.м., жилая: 16.3 кв.м., площадь просторной кухни-столовой: 10.9 кв.м. Все окна выходят на одну сторону. В квартире одна лоджия, один совмещенный санузел. Высота...
    • 40 м²
    • 1-ком
    • 21/25 эт.
    8 793 787 Р
    Агент
    +7 (495) Показать номер
    Посмотреть контакты
    1-комнатная квартира: Нижний Новгород, улица Академика Чазова, 3 (40.9 ... - Фото 1
    1-комнатная квартира: Нижний Новгород, улица Академика Чазова, 3 (40.9 ... - Фото 2
    1-комнатная квартира, общая площадь 40м², жилая 16м², кухня 10м²

    Apт.2495576. Просторная 1-комн. квартира с отделкой в ЖК Мои Цветы на 24 этаже. Общая площадь: 40.9 кв.м., жилая: 16.3 кв.м., площадь просторной кухни-столовой: 10.9 кв.м. Все окна выходят на одну сторону. В квартире одна лоджия, один совмещенный санузел....
    • 40 м²
    • 1-ком
    • 24/25 эт.
    8 793 787 Р
    Агент
    +7 (495) Показать номер
    Посмотреть контакты
    1-комнатная квартира: Нижний Новгород, улица Академика Чазова, 3 (41.1 ... - Фото 1
    1-комнатная квартира: Нижний Новгород, улица Академика Чазова, 3 (41.1 ... - Фото 2
    1-комнатная квартира, общая площадь 41м², жилая 13м², кухня 15м²

    Apт.2495568. 1-комн. квартира с отделкой в ЖК Мои Цветы на 23 этаже. Общая площадь: 41.1 кв.м., жилая: 13 кв.м., площадь просторной кухни-столовой: 15.3 кв.м. Все окна выходят на одну сторону. В квартире одна лоджия, один совмещенный санузел. Высота...
    • 41 м²
    • 1-ком
    • 23/25 эт.
    8 843 815 Р
    Агент
    +7 (495) Показать номер
    Посмотреть контакты
    1-комнатная квартира: Нижний Новгород, улица Академика Чазова, 3 (40.9 ... - Фото 1
    1-комнатная квартира: Нижний Новгород, улица Академика Чазова, 3 (40.9 ... - Фото 2
    1-комнатная квартира, общая площадь 40м², жилая 16м², кухня 10м²

    Apт.2495570. Просторная 1-комн. квартира с отделкой в ЖК Мои Цветы на 23 этаже. Общая площадь: 40.9 кв.м., жилая: 16.3 кв.м., площадь просторной кухни-столовой: 10.9 кв.м. Все окна выходят на одну сторону. В квартире одна лоджия, один совмещенный санузел....
    • 40 м²
    • 1-ком
    • 23/25 эт.
    8 793 787 Р
    Агент
    +7 (495) Показать номер
    Посмотреть контакты

    Не нашли подходящего объявления?

    Оставьте заявку, и наши риэлторы подберут квартиру в новостройке в районе Нижнего Новгорода

    (0)