5 200 000 Р 64 210 $ или 54 980

Информация о квартире

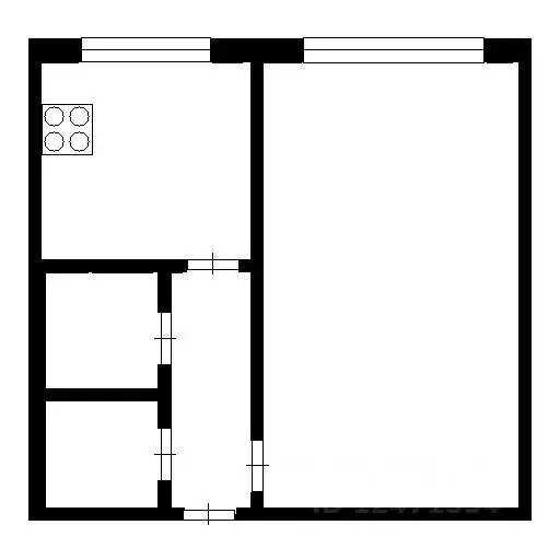
32 м2
Площадь
17 м2
Жилая
6 м2
Кухня
1
Комната
4
Этаж
5
Этажность

Дополнительная информация

Тип дома
панельный
Развернуть
Агент
+7 (986) 761-42-34
Начать чат с агентом

1-к кв. Нижегородская область, Нижний Новгород ул. Дьяконова, 2к4 ...

В продаже прекрасная просторная однокомнатная квартира в хорошем месте Автозаводского района )Квартира расположена на 4 этаже пятиэтажного панельного дома БЕЗ КОЛОНКИ, центральное отопление и горячая вода Квартира не угловая, теплая, окна выходят во двор, большая зеленая зона перед домом с детской площадкой, территория вокруг дома приятна глазу, дорожки и парковка в хорошем состоянии, сделан карман для машин, дом находится вблизи от остановки общественного транспорта, в то же время никакого шума, инфраструктура прекрасная - в непосредственной близости детские сады, школа и гимназия, различные кружки и секции, торговый центр Новый век и Евроспар, Никольский собор, детская и взрослая поликлиники, парк 777, Дворец спорта Северная звезда, различные магазины, кафе.Комната просторная, балкон застеклен, окна пластиковые двустворчатые, обе створки открываются, добротная входная дверь, проведена замена труб горячей и холодной воды, канализации, полностью заменены трубы отопления, батареи новые, пол залит, выровнен, на полу линолеум, в прихожей и санузле на полу плитка, ванная акриловая, счетчики на воду и газ, просторная прихожая, на стенах обои под покраску, новый полотенцесушитель, в санузле плитка, новым собственникам остается кухонный гарнитур, хорошая плита.Квартира в альтернативной продаже, один взрослый собственник, никто не проживает.Звоните и записывайтесь на просмотр ТОРГ ВОЗМОЖЕН.

Читать полностью

    Для того, чтобы купить однокомнатную квартиру по адресу: Нижний Новгород, м. Кировская, ул. Дьяконова, 2к4, позвоните по телефону +7 (986) 761-42-34. Торопитесь! Объявление №30091024111 о продаже однокомнатной квартиры опубликовано Вчера.

    Позвонить Написать
    5 200 000 Р64 210 $ или 54 980
    Агент
    +7 (986) 761-42-34
    Начать чат с агентом
    Похожие предложения
    2-к кв. Нижегородская область, Нижний Новгород ул. Дьяконова, 2к3 ... - Фото 1
    2-к кв. Нижегородская область, Нижний Новгород ул. Дьяконова, 2к3 ... - Фото 2
    2-комнатная квартира, общая площадь 50м², жилая 34м², кухня 5м²

    Пишите в циан сообщения если не дозвонились. В продаже 2к с двумя большими залами 17,4, раздельный с/у, центральная горячая вода (без колонки).Удобный этаж, балкон выходит во двор. Комнаты на разные стороны. Во дворе детский сад, зелёный большой двор.Удобная...
    • 50 м²
    • 2-ком
    • 2/5 эт.
    • панельный
    5 200 000 Р
    Агент
    +7 (910) Показать номер
    Посмотреть контакты
    1-к кв. Нижегородская область, Нижний Новгород ул. Строкина, 6 (32.8 ... - Фото 1
    1-к кв. Нижегородская область, Нижний Новгород ул. Строкина, 6 (32.8 ... - Фото 2
    1-комнатная квартира, общая площадь 32м², жилая 17м², кухня 8м²

    Продаётся уютная квартира, расположенная в уютном районе, где вы сможете наслаждаться спокойствием и тишиной. Во дворе есть зелёные насаждения, детские площадки для развлечения ваших малышей. Характеристики квартиры: количество комнат: 1; площадь: 32,8...
    • 32 м²
    • 1-ком
    • 4/9 эт.
    • панельный
    5 150 000 Р
    Агент
    +7 (987) Показать номер
    Посмотреть контакты
    2-комнатная квартира, общая площадь 47м², жилая 30м², кухня 6м²

    продам 2 квартиру ул южное шоссе, остановка рынок. комнаты изолированные на разные стороны, 3 этаж -золотая середина. Дом находится во дворе, нет шума от дороги,ядом остановка транспорта, школы, садик, фитнес центр,до метро парк культуры 15 минут....
    • 47 м²
    • 2-ком
    • 3/5 эт.
    • панельный
    5 100 000 Р
    Агент
    +7 (987) Показать номер
    Посмотреть контакты
    3-к кв. Нижегородская область, Нижний Новгород ул. Героя Советского ... - Фото 1
    3-к кв. Нижегородская область, Нижний Новгород ул. Героя Советского ... - Фото 2
    3-комнатная квартира, общая площадь 53м², жилая 40м², кухня 5м²

    Уважаемые покупатели, Вашему вниманию предлагается для покупки замечательная трехкомнатная квартира в Автозаводском районе, улица Героя Советского Союза Поющева, дом 27. Рядом улица Комсомольская, проспект Октября, проспект Кирова.Квартира светлая, уютная...
    • 53 м²
    • 3-ком
    • 5/5 эт.
    • кирпичный
    5 300 000 Р
    Агент
    +7 (931) Показать номер
    Посмотреть контакты
    2-к кв. Нижегородская область, Нижний Новгород Автомеханическая ул., 7 ... - Фото 1
    2-к кв. Нижегородская область, Нижний Новгород Автомеханическая ул., 7 ... - Фото 2
    2-комнатная квартира, общая площадь 45м², жилая 30м², кухня 5м²

    Код объекта: 1856574. Продается двухкомнатная квартира в Автозаводском районе на Автомеханической улице — идеальное жильё для тех, кто ценит комфорт и удобство Квартира расположена на четвёртом этаже пятиэтажного панельного дома 1964 года постройки....
    • 45 м²
    • 2-ком
    • 4/5 эт.
    • панельный
    5 100 000 Р
    Агент
    +7 (981) Показать номер
    Посмотреть контакты

    Не нашли подходящего объявления?

    Оставьте заявку, и наши риэлторы подберут квартиру в районе Нижнего Новгорода

    (0)