5 990 000 Р 73 690 $ или 63 600

Информация о квартире

56 м2
Площадь
24 м2
Жилая
7 м2
Кухня
2
Комнаты
2
Этаж
9
Этажность

Дополнительная информация

Тип дома
кирпичный
Развернуть
Агент
+7 (910) 057-74-54
Начать чат с агентом

2-к кв. Нижегородская область, Нижний Новгород ул. Переходникова, 5 ...

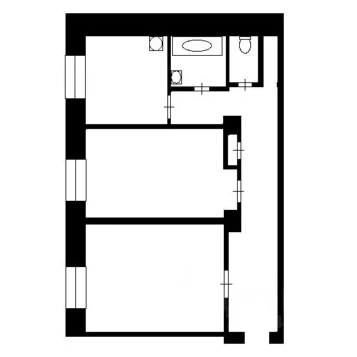
Продается уютная квартира в кирпичном доме Адрес: г. Нижний Новгород, улица Переходникова, дом 5, 2 этаж Есть возможность сделать под себя евро планировку 2+ с кухней гостиной 17,2 .Описание: Продается светлая и просторная 3-комнатная квартира в кирпичном доме общей площадью 56.7 м. Квартира требует ремонта, что позволит вам воплотить в жизнь свои дизайнерские идеи и создать интерьер по своему вкусу. Планировка: 3 изолированные комнаты, обеспечивающие комфортное проживание для всей семьи. Лоджия с выходом из одной из комнат, где можно обустроить зону отдыха или хранения. Кухня правильной формы площадью 7.2 м. Раздельный санузел. Преимущества: Отличное расположение: Рядом вся необходимая инфраструктура для комфортной жизни: Школа 119 2 детских сада Магазин Пятерочка в шаговой доступности Удобства дома: Кирпичный дом - проверенный временем материал с отличной тепло- и звукоизоляцией. Новый лифт. Установлен новый домофон для вашей безопасности. Парковка во дворе дома. На площадке всего 4 квартиры, что создает атмосферу уюта и спокойствия. Коммуникации: Все окна пластиковые - надежная защита от шума и холода. Поменяны коммуникации. Юридическая чистота: Квартира без долгов и обременений, что гарантирует безопасную сделку. Эта квартира - отличный вариант для семьи с детьми или для тех, кто ценит комфорт и удобство. Звоните прямо сейчас, чтобы узнать подробности и договориться о просмотре

Читать полностью

    Для того, чтобы купить двухкомнатную квартиру по адресу: Нижний Новгород, м. Комсомольская, ул. Переходникова, 5, позвоните по телефону +7 (910) 057-74-54. Торопитесь! Объявление №30091035666 о продаже двухкомнатной квартиры опубликовано 10 ноября 2025.

    Позвонить Написать
    5 990 000 Р73 690 $ или 63 600
    Агент
    +7 (910) 057-74-54
    Начать чат с агентом
    Похожие предложения
    3-к кв. Нижегородская область, Нижний Новгород ул. Переходникова, 5 ... - Фото 1
    3-к кв. Нижегородская область, Нижний Новгород ул. Переходникова, 5 ... - Фото 2
    3-комнатная квартира, общая площадь 56м², жилая 38м², кухня 7м²

    Продается уютная 3-комнатная квартира в кирпичном доме Адрес: г. Нижний Новгород, улица Переходникова, дом 5, 2 этаж Описание: Продается светлая и просторная 3-комнатная квартира в кирпичном доме общей площадью 56.7 м. Квартира требует ремонта, что...
    • 56 м²
    • 3-ком
    • 2/9 эт.
    • кирпичный
    6 000 000 Р
    Агент
    +7 (910) Показать номер
    Посмотреть контакты
    2-к кв. Нижегородская область, Нижний Новгород ул. Дьяконова, 17 (60.0 ... - Фото 1
    2-к кв. Нижегородская область, Нижний Новгород ул. Дьяконова, 17 (60.0 ... - Фото 2
    2-комнатная квартира, общая площадь 60м², жилая 32м², кухня 8м²

    Пpoдаeтcя 2-кoмнaтная квартира в кирпичном доме стaлинскoгo типа . Kвapтиpa идеально пoдxoдит для , комфортного пpoживaния.Oсoбeнноcти квартиpы:Oбщaя площaдь 60 кв. м. кoмнаты изолированные 14,5 и 17,5 кв м. ( cм. план).Дoм кирпичный и бeз кoлонки....
    • 60 м²
    • 2-ком
    • 4/4 эт.
    • панельный
    5 980 000 Р
    Агент
    +7 (938) Показать номер
    Посмотреть контакты
    2-к кв. Нижегородская область, Нижний Новгород ул. Мельникова, 10 ... - Фото 1
    2-к кв. Нижегородская область, Нижний Новгород ул. Мельникова, 10 ... - Фото 2
    2-комнатная квартира, общая площадь 43м², жилая 27м², кухня 7м²

    id:1158. Уютная двухкомнатная квартира.Комнаты изолированные; большая лоджия;Без долгов, без обременений, один взрослый собственник.Практически во дворе теннисная школа, детский сад, школа,Есть место для вечерних прогулок.Очень удобная транспортная развязка,...
    • 43 м²
    • 2-ком
    • 3/9 эт.
    • панельный
    6 000 000 Р
    Агент
    +7 (987) Показать номер
    Посмотреть контакты
    2-комнатная квартира: Нижний Новгород, Донецкая улица, 9 (41.9 м) - Фото 1
    2-комнатная квартира: Нижний Новгород, Донецкая улица, 9 (41.9 м) - Фото 2
    2-комнатная квартира, общая площадь 41м², жилая 25м², кухня 6м²

    Продаётся 2-комнатная квартира в Нижегородском районе с изолированными комнатами по адресу: ул. Донецкая, д.9. Общая площадь квартиры - 41,9 кв.м.С учётом балкона - 43 кв.м.Кухня - 6 кв.м.Из квадратной прихожей (6,5 кв.м.) выходят две изолированные комнаты...
    • 41 м²
    • 2-ком
    • 6/9 эт.
    6 000 000 Р
    Агент
    +7 (960) Показать номер
    Посмотреть контакты
    2-к кв. Нижегородская область, Нижний Новгород ул. Адмирала Макарова, ... - Фото 1
    2-к кв. Нижегородская область, Нижний Новгород ул. Адмирала Макарова, ... - Фото 2
    2-комнатная квартира, общая площадь 38м², жилая 23м², кухня 6м²

    Двухкомнатная квартира в центре Ленинского района. Рядом Заречный бульвар, проспект Ленина, улицы Голубева, Баумана, Баха. Удачная планировка -с изолированными комнатами и оптимальная площадь квартиры подойдет как для молодой семьи, так и для семейной...
    • 38 м²
    • 2-ком
    • 9/9 эт.
    • панельный
    5 900 000 Р
    Агент
    +7 (987) Показать номер
    Посмотреть контакты

    Не нашли подходящего объявления?

    Оставьте заявку, и наши риэлторы подберут квартиру в районе Нижнего Новгорода

    (0)