Реализация объекта недвижимости приостановлена

Информация о помещении и здании

2
Этаж
2
Этажность
Развернуть

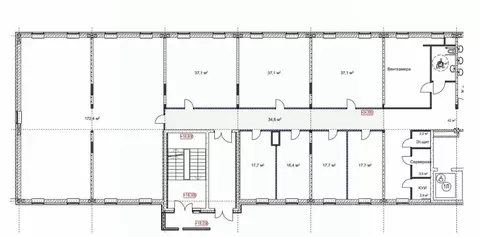
Офис в Нижегородская область, Нижний Новгород ул. Шаляпина, 2А (400 м)

Сдаются площади свободного назначения 400 кв.м, можно разбить на более мелкие площади, на 2 этаже 2-этажного здания в 7 мин. пешком от м.Бурнаковская, район города - Московский, улица Шаляпина 2А. В здании есть электричество мощностью 60 КВт, теплоснабжение, вода, канализация. Туалет находится на первом этаже, есть возможность сделать на втором. Помещение подходит под офис, торговые площади, а также можно рассмотреть и производство. Есть возможность обсудить арендные каникулы. Предоплата за один месяц вперёд, коммунальные услуги дополнительно. Есть несколько парковочных мест. Сдаётся от юридического лица.

Читать полностью

    Реализация объекта недвижимости приостановлена

    Не нашли подходящего объявления?

    Оставьте заявку, и наши риэлторы подберут офис в районе Нижнего Новгорода

    (0)