600 050 Р 7 380 $ или 6 370

Информация об помещении

2
Этаж

Состояние и оснащение

Количество этажей
2
Развернуть
Агент
+7 (987) 392-58-46
Начать чат с агентом

Торговая площадь в Нижегородская область, Нижний Новгород ул. Июльских ...

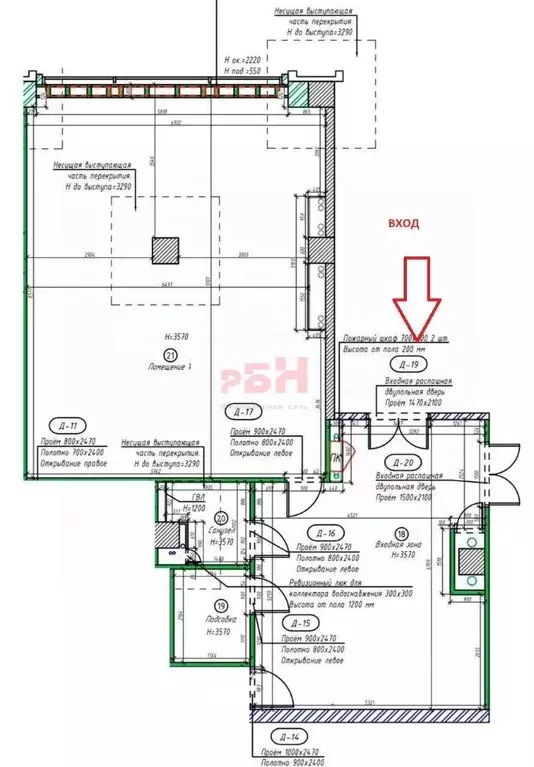
Аренда помещения в отдельно стоящем здании общей площадью 550 м2. Площадь Земельного участка 412.00 кв. м. Красная линия, два этажа по 270м2 каждый. в цоколе и на 2 этаже, лифт. Тип конструкции здания - монолит. Высота потолков минус 1 этаж-2,5м м., 2 этаж -3,9 м. Парковка - 30 Машино мест. Электроэнергия - 150 Квт, 2 категория подключения (есть возможность увеличения мощности). Холодное водоснабжение (документация о технологическом присоединении, ввод в эксплуатацию -есть). Тепло отопление -автономное газоснабжение. Тепло вентиляция - приточно-вытяжная.Все коммуникации центральные. Разрешенное использование здравоохранение. Аренда от юр. лица без НДС.Маймекс ООО , N 105273

Читать полностью
    Позвонить Написать
    600 050 Р7 380 $ или 6 370
    Агент
    +7 (987) 392-58-46
    Начать чат с агентом
    Похожие предложения
    Торговая площадь в Ростовская область, Ростов-на-Дону Левобережная ... - Фото 1
    Торговая площадь в Ростовская область, Ростов-на-Дону Левобережная ... - Фото 2
    Каталожный номер — C000490АРЕНДА ОТ СОБСТВЕННИКА БЕЗ КОМИССИИ Сдается в аренду отдельно стоящее одноэтажное здание 600 кв.метров на улице Левобережная. Очень высокий автомобильный трафик, близость ЖК Левобережный).Летняя веранда с эстрадой, широкий фасад,...
    • 1/1 эт.
    600 000 Р
    Агент
    +7 (989) Показать номер
    Посмотреть контакты
    Торговая площадь в Свердловская область, Екатеринбург ул. Степана ... - Фото 1
    Торговая площадь в Свердловская область, Екатеринбург ул. Степана ... - Фото 2
    Предлагается в долгосрочную аренду помещение на 1 этаже Апарт-отеля Артек by Огни Rent с дизайнерским ремонтом в центре города с круглосуточным доступом и отдельным входом напротив УГМК арены возле цирка.Без комиссии для арендаторов.- Расположено на...
    • 1/16 эт.
    602 000 Р
    Агент
    +7 (912) Показать номер
    Посмотреть контакты
    Торговая площадь в Тюменская область, Тюмень ул. Малыгина, 2 (608 м) - Фото 1
    Торговая площадь в Тюменская область, Тюмень ул. Малыгина, 2 (608 м) - Фото 2
    Арт.. СРОЧНАЯ сдается в аренду Нежилое помещение на первой линии в центре города, рядом с ТЦ Вояж. Идеально подойдет под офис компании, торговлю, медицинский центр, клинику, стоматологию, отель, хостел и т.д. Плoщадь 1 этaжа -258 м2. Площадь 2 этажа -...
    • 2/2 эт.
    600 000 Р
    Агент
    +7 (919) Показать номер
    Посмотреть контакты
    Торговая площадь в Москва Большой Саввинский пер., 3 (154 м) - Фото 1
    Торговая площадь в Москва Большой Саввинский пер., 3 (154 м) - Фото 2
    Аренда торгового помещения 154 м2 в Большом Саввинском переулке, д. 3 (10 минут пешком от м. Киевская). 1-я линия Первый этаж жилого дома 154 м2, открытая планировка, отдельный вход, высота потолка 3,5 м. Состояние помещения за выездом арендатора. Место...
    • 1/11 эт.
    608 000 Р
    Агент
    +7 (916) Показать номер
    Посмотреть контакты
    Торговая площадь в Москва Электродная ул., 2С32 (188 м) - Фото 1
    Торговая площадь в Москва Электродная ул., 2С32 (188 м) - Фото 2
    Аренда торгового помещения площадью 188 м2 на ул. Электродная д.2с32 (5 минут пешком от м. Шоссе Энтузиастов). 1 линия домов.188 м2 на 1 этаже, открытая планировка, отдельный вход с фасада, высота потолка 4.5 м, витринные окна по фасаду. Доступ 24/7....
    • 1/2 эт.
    590 000 Р
    Агент
    +7 (916) Показать номер
    Посмотреть контакты

    Не нашли подходящего объявления?

    Оставьте заявку, и наши риэлторы подберут торговое помещение в районе Нижнего Новгорода

    (0)