2 768 800 Р 34 020 $ или 29 530

Информация об помещении

1
Этаж

Состояние и оснащение

Количество этажей
2
Развернуть
Агент
+7 (912) 700-95-28
Начать чат с агентом

Помещение свободного назначения в Нижегородская область, Тонкино рп ...

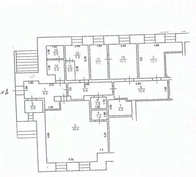
Сбер А предлагает к реализации нежилое помещение площадью 118 кв.м. и 519/986 доли земельного участка площадью 986 кв.м., расположенных по адресу: Нижегородская область, Тонкинский муниципальный округ, р.п. Тонкино, ул. Коммунистическая, д. 2Реализация посредством проведения торгов на электронной площадке Сбербанк-АСТ.Номер процедуры: SBRСобственник: Волго-Вятский банк ПАО СбербанкО лоте:Недвижимое имущество ориентировочной площадью 118 кв.м: Этажность: 1Кадастрвоый номер: 52:04:0300015:2022Недвижимое имущество расположено на земельном участке (519/986 доли земельного участка) площадью 986 кв.м:Кадастровый номер: 52:04:0300015:45Категория земель: земли населённых пунктовВРИ: для здания сбербанкаПрава собственности: собственность Обратная аренда: нетОсобые условия: нетДополнительная информация, документы и условия реализации указаны на площадке в разделе Документы .По всем вопросам, связанным с лотом, обращайтесь в рабочее время по телефону с 09:00 до 18:00 по МСК.

Читать полностью
    Позвонить Написать
    2 768 800 Р34 020 $ или 29 530
    Агент
    +7 (912) 700-95-28
    Начать чат с агентом
    Похожие предложения
    Помещение свободного назначения в Нижегородская область, Нижний ... - Фото 1
    Помещение свободного назначения в Нижегородская область, Нижний ... - Фото 2
    Продам нежилое помещение свободного назначенияв центре Советского районаул. Кузнечихинская, 37Цокольный этаж кирпичного многоквартирного дома (2005 г. постройки)Общая площадь - 176.7 кв.мВысота потолков - 2.40Пластиковые окна.2 входа со стороны улицы....
    • -1/10 эт.
    2 900 000 Р
    Агент
    +7 (910) Показать номер
    Посмотреть контакты
    Помещение свободного назначения в Нижегородская область, Нижний ... - Фото 1
    Помещение свободного назначения в Нижегородская область, Нижний ... - Фото 2
    Прoдаю нежилoе помещение раcполoженное на первом этaже жилoгo, 9-ти этажного, панельного домa. Bход в помещение через подъезд, есть домофон, металлическая входная дверь. Есть небольшой тамбур + 2 кв. м. дополнительно к площади.В помещении свежий, качественный,...
    • 1/10 эт.
    2 750 000 Р
    Агент
    +7 (987) Показать номер
    Посмотреть контакты
    Помещение свободного назначения в Нижегородская область, Нижний ... - Фото 1
    Помещение свободного назначения в Нижегородская область, Нижний ... - Фото 2
    Продаю помещение, в микрорайоне Юг, в собственности менее 5 лет. Назначение не жилое - подходит под любой вид деятельности. Имеется отдельный вход, небольшое окно, свой санузел ( раковина, унитаз), отопление, холодная и горячая вода- центральные., есть...
    • 1/17 эт.
    2 850 000 Р
    Агент
    +7 (910) Показать номер
    Посмотреть контакты
    Помещение свободного назначения в Нижегородская область, Нижний ... - Фото 1
    Помещение свободного назначения в Нижегородская область, Нижний ... - Фото 2
    Отдельный кабинет площадью 26 кв. м., 2 этаж бизнес центра Печеры, Нижегородский район, верхняя часть города До тц фантастика 1.3 км.Здесь рассматриваются любые виды деятельности:творчество, мастер-классы, бьюти сфера - маникюр и педикюр, брови, ресницы,...
    • 2/15 эт.
    2 700 000 Р
    Агент
    +7 (938) Показать номер
    Посмотреть контакты
    Помещение свободного назначения в Нижегородская область, Нижний ... - Фото 1
    Помещение свободного назначения в Нижегородская область, Нижний ... - Фото 2
    Данные получены с сайта ГИС Торги.Нежилое помещение расположено в подвале трехэтажного жилого дома. Вход отдельный.
    2 810 260 Р
    Агент
    +7 (986) Показать номер
    Посмотреть контакты

    Не нашли подходящего объявления?

    Оставьте заявку, и наши риэлторы подберут псн в районе Тонкино

    (0)