Россия, Нижегородская область, Выкса, Гаражный Квартал № 7 тер., 39
1 300 000 Р 16 890 $ или 14 440

Информация о гараже

29 м2
Площадь

Территория

СТО
рядом
Автомойка
рядом
Развернуть
Агент
+7 (910) 057-71-09
Начать чат с агентом

Гараж в Нижегородская область, Выкса Гаражный Квартал № 7 тер., 39 (29 ...

В продаже гараж площадью 29 кв.м расположен на улице Братьев Баташевых в центральной части города. Объект отличается полноценной площадью, позволяющей разместить легковой автомобиль с комфортом и организовать пространство для ремонтных работ или хранения. Помещение полностью электрифицировано, установлены розетки и система освещения. Для поддержания комфортной температуры в холодный сезон в гараже имеется дровяная печь. Ключевыми функциональными преимуществами являются большая смотровая яма и отдельный кирпичный погреб площадью 5,2 кв.м, что значительно расширяет возможности использования. Внутри уже смонтированы стеллажи для инструментов и инвентаря. Гараж сухой, сделана качественно крыша, не протекает. К объекту ведет качественный асфальтированный подъезд с центральной улицы, что обеспечивает легкую доступность в любое время года. Земельный участок под гаражом находится в собственности, что упрощает юридическое оформление сделки. Объект продается впервые, все необходимые документы подготовлены и позволяют провести сделку оперативно. Это предложение представляет собой готовое решение для автовладельца или мастера, ценящего функциональность, удачное расположение и четкий юридический статус недвижимости. Код пользователя: 169148Номер в базе:

Читать полностью

    Для того, чтобы купить гараж площадью 29 кв. метров по адресу: Выкса, Гаражный Квартал № 7 тер., 39, позвоните по телефону +7 (910) 057-71-09. Торопитесь! Объявление №40003188527 о продаже гаража площадью 29 кв. метров опубликовано 01 апреля 2026.

    Позвонить Написать
    1 300 000 Р16 890 $ или 14 440
    Агент
    +7 (910) 057-71-09
    Начать чат с агентом
    Похожие предложения
    Гараж в Нижегородская область, Нижний Новгород 1-я Оранжерейная ул., ... - Фото 1
    Гараж в Нижегородская область, Нижний Новгород 1-я Оранжерейная ул., ... - Фото 2
    общая площадь 18м²

    Код объекта: 1324369.В продаже машино-место с возможностью сделать гаражные ворота/рольставни и провести провода, установить розетки, свои счетчики Парковка расположена в новом доме, широкий въезд, круглосуточная охрана.Удобная локация близ парка Пушкина,...
    • 18 м²
    1 200 000 Р
    Агент
    +7 (981) Показать номер
    Посмотреть контакты
    Гараж в Нижегородская область, Нижний Новгород Мои Цветы жилой ... - Фото 1
    Гараж в Нижегородская область, Нижний Новгород Мои Цветы жилой ... - Фото 2
    общая площадь 13м²

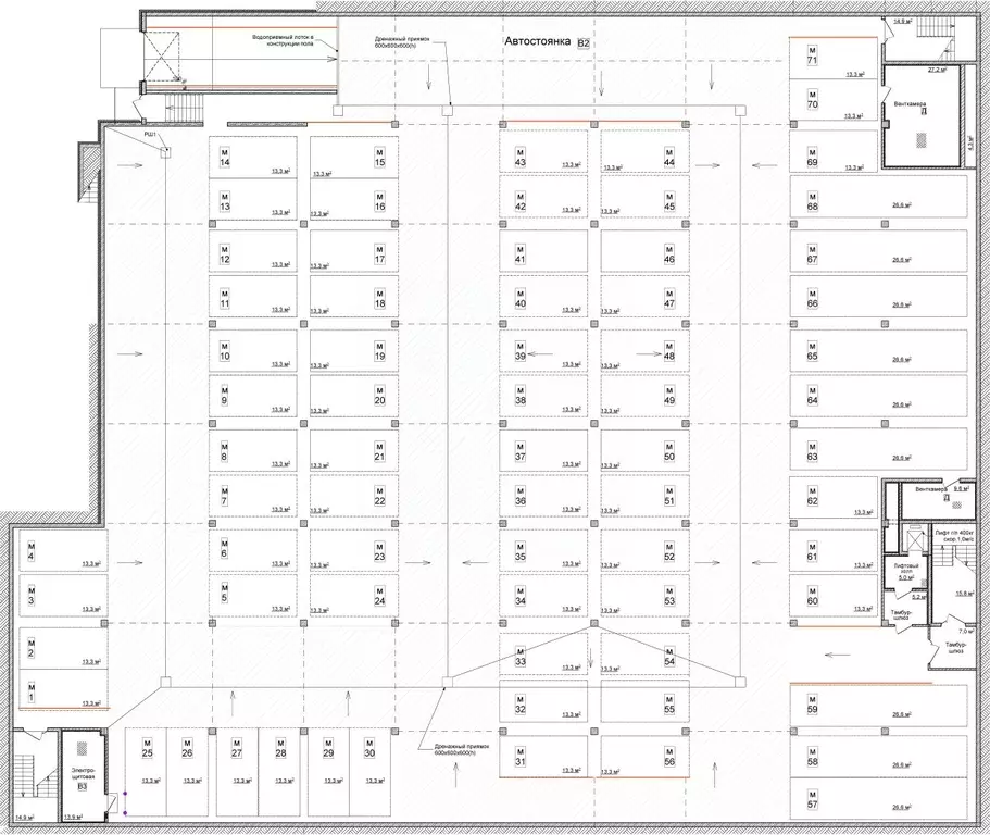
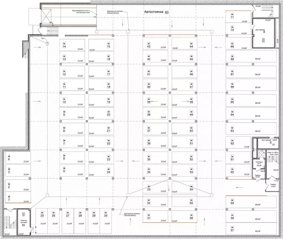
    Машиноместо на 0 уровне наземного паркинга в ЖК Мои Цветы , общая площадь 13.3 кв.м. Круглосуточная охрана, установлено видеонаблюдение, автоматические ворота и шлагбаум на въезд. Доступ 24 часа в сутки. Подземный паркинг в ЖК Мои Цветы - защита автомобиля...
    • 13 м²
    1 396 200 Р
    Агент
    +7 (987) Показать номер
    Посмотреть контакты
    Гараж в Нижегородская область, Нижний Новгород Мои Цветы жилой ... - Фото 1
    Гараж в Нижегородская область, Нижний Новгород Мои Цветы жилой ... - Фото 2
    общая площадь 13м²

    Машиноместо на 0 уровне наземного паркинга в ЖК Мои Цветы , общая площадь 13.3 кв.м. Система видеонаблюдения, автоматические ворота с шлагбаумом, охраняется 24/7. Круглосуточный доступ. Подземный паркинг в ЖК Мои Цветы - защита автомобиля от непогоды...
    • 13 м²
    1 396 200 Р
    Агент
    +7 (987) Показать номер
    Посмотреть контакты
    Гараж в Нижегородская область, Нижний Новгород Мои Цветы жилой ... - Фото 1
    Гараж в Нижегородская область, Нижний Новгород Мои Цветы жилой ... - Фото 2
    общая площадь 13м²

    Машиноместо на 0 уровне наземного паркинга в ЖК Мои Цветы , общая площадь 13.3 кв.м. Автоматические ворота и шлагбаум на въезд, установлено видеонаблюдение, охраняется 24/7. Круглосуточный доступ. Подземный паркинг в ЖК Мои Цветы - защита автомобиля...
    • 13 м²
    1 396 200 Р
    Агент
    +7 (987) Показать номер
    Посмотреть контакты
    Гараж в Нижегородская область, Нижний Новгород Мои Цветы жилой ... - Фото 1
    Гараж в Нижегородская область, Нижний Новгород Мои Цветы жилой ... - Фото 2
    общая площадь 13м²

    Машиноместо на 0 уровне наземного паркинга в ЖК Мои Цветы , общая площадь 13.3 кв.м. Охраняется 24/7, система видеонаблюдения, автоматические ворота и шлагбаум на въезд. Круглосуточный доступ. Подземный паркинг в ЖК Мои Цветы - защита автомобиля от...
    • 13 м²
    1 396 200 Р
    Агент
    +7 (987) Показать номер
    Посмотреть контакты

    Не нашли подходящего объявления?

    Оставьте заявку, и наши риэлторы подберут гараж в районе Выксы

    (0)