4 900 000 Р 62 640 $ или 53 210

Информация о коттедже

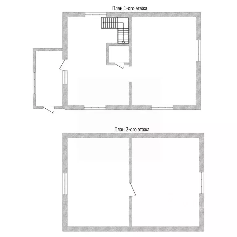
74 м2
Площадь
1
Этажность
4 cоток
Участок

Дополнительная информация

Дом продаётся вместе с участком
есть
Развернуть
Агент
+7 (931) 892-60-24
Начать чат с агентом

Дом в Нижегородская область, Выкса ул. Грибоедова, 38 (74 м)

Уважаемые покупатели, к продаже представлен дом 74,3 кв. м. + 4,7 соток земли. Дом находиться на ул. Грибоедова, район Скотного с косметическим ремонтом, совместным сан. узлом, 2 комнаты большие. При продаже дома остается кухонный гарнитур. Дом расположен вблизи от реки в хорошем районе, где развита инфраструктура, рядом магазины, школа, детские сады, автобусная остановка. Отличный вариант без дополнительных вложений Юридическое сопровождение. Два взрослых собственника. По всем вопросам, звоните Торг. Код пользователя: 147636Номер в базе: 7250184

Читать полностью

    Для того, чтобы купить 1-этажный коттедж по адресу: Выкса, ул. Грибоедова, 38, позвоните по телефону +7 (931) 892-60-24. Торопитесь! Объявление №50016132613 о продаже одноэтажного коттеджа опубликовано 2 дня назад.

    Позвонить Написать
    4 900 000 Р62 640 $ или 53 210
    Агент
    +7 (931) 892-60-24
    Начать чат с агентом
    Похожие предложения
    Дом в Нижегородская область, Выкса ул. Зуева, 19 (300 м) - Фото 1
    Дом в Нижегородская область, Выкса ул. Зуева, 19 (300 м) - Фото 2
    3 этажа, общая площадь 300м², участок 15 соток

    Уважаемые покупатели Вашему вниманию представлен двух этажный недостроенный дом на участке 15 соток по улице Зуева. Очень хорошее месторасположение: в пешей доступности магазины, детский сад, школа, спортивный стадион, аптека, пруд, садовое товарищество,...
    • 3 эт.
    • 300 м²
    • 15 сот.
    5 000 000 Р
    Агент
    +7 (915) Показать номер
    Посмотреть контакты
    Дом в Нижегородская область, Нижний Новгород Кирпичник СНТ, 12 (59 м) - Фото 1
    Дом в Нижегородская область, Нижний Новгород Кирпичник СНТ, 12 (59 м) - Фото 2
    2 этажа, общая площадь 59м², участок 6 соток

    Дом в СНТ Кирпичник (д. Афонино) — для тех, кто хочет тишины, пространства и жизни в собственном доме, не уезжая из города.Расположение — одно из главных достоинств: с участка открывается красивый вид на город, а добраться до Нижнего Новгорода можно...
    • 2 эт.
    • 59 м²
    • 6 сот.
    4 800 000 Р
    Агент
    +7 (910) Показать номер
    Посмотреть контакты
    Дом в Нижегородская область, Богородский муниципальный округ, д. ... - Фото 1
    Дом в Нижегородская область, Богородский муниципальный округ, д. ... - Фото 2
    2 этажа, общая площадь 84м², участок 6 соток

    Продаётся прекрасный 2-этажный дом площадью 84 квадратных метра. Этот дом идеально подойдёт для семьи с детьми или просто для тех, кто хочет жить в тихом и спокойном месте, но при этом оставаться близко к городской инфраструктуре. Дом находится в экологически...
    • 2 эт.
    • 84 м²
    • 6 сот.
    4 800 000 Р
    Агент
    +7 (981) Показать номер
    Посмотреть контакты
    Дом в Нижегородская область, Богородский муниципальный округ, д. ... - Фото 1
    Дом в Нижегородская область, Богородский муниципальный округ, д. ... - Фото 2
    2 этажа, общая площадь 84м², участок 6 соток

    Хотите стать счастливым обладателем уютного дома с тремя комнатами и двумя этажами? Тогда это предложение идеально подойдет для вас Продаётся дом площадью 84 квадратных метра, который является очень экономичным вариантом для большой семьи или для тех,...
    • 2 эт.
    • 84 м²
    • 6 сот.
    4 800 000 Р
    Агент
    +7 (981) Показать номер
    Посмотреть контакты
    Дом в Нижегородская область, Кстово пер. Энтузиастов, 18/2 (75 м) - Фото 1
    Дом в Нижегородская область, Кстово пер. Энтузиастов, 18/2 (75 м) - Фото 2
    1 этаж, общая площадь 75м², участок 6 соток

    Арт.В городе Кстово продаётся жилой дом. В доме располагается четыре изолированные комнаты, кухня, санузел с баней, что создаст Вам комфорт и уют. Также имеется пристрой, с возможностью обустройства второго этажа, тем самым увеличив жилую зону. На территории...
    • 1 эт.
    • 75 м²
    • 6 сот.
    5 000 000 Р
    Агент
    +7 (910) Показать номер
    Посмотреть контакты

    Не нашли подходящего объявления?

    Оставьте заявку, и наши риэлторы подберут купить дом в районе Выксы

    (0)