7 000 000 Р 89 480 $ или 76 010

Информация о квартире

56 м2
Площадь
6 м2
Кухня
3
Комнаты
3
Этаж
6
Этажность

Дополнительная информация

Тип дома
панельный
Развернуть
Агент
+7 (910) 395-01-66
Начать чат с агентом

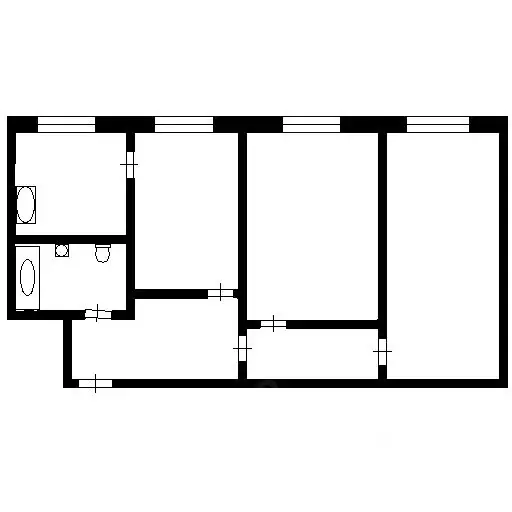
3-к кв. Нижегородская область, Выкса ул. Симы Битковой, 26 (56.9 м)

Трехкомнатная квартира площадью 56,9 кв. м расположена на третьем этаже современного пятиэтажного дома, сданного в эксплуатацию в 2023 году. Квартира отличается рациональной планировкой: изолированные комнаты, включая две спальни и гостиную, а также кухня и балкон. Окна выходят на разные стороны света, обеспечивая оптимальную инсоляцию — спальни ориентированы на север, а гостиная на юг, что создает комфортный световой режим в течение всего дня. Квартира не является угловой, что минимизирует влияние внешних температур. Дом построен с применением технологий энергоэффективности, включая индивидуальную котельную и усиленное утепление наружных стен, что гарантирует существенную экономию на коммунальных расходах. Внутри дома обеспечена высококачественная звукоизоляция, а управление имуществом организовано эффективно благодаря профессиональной работе управляющей компании и активному участию старшей по дому, с которой налажена оперативная связь через общий чат. Дом находится в историческом центре города, где в пешей доступности в пределах пяти минут расположены все необходимые объекты инфраструктуры — магазины, кафе, аптеки, банки ,школы и детские сады. Транспортная развязка также находится рядом, обеспечивая быстрый выезд в любую часть города. Состояние квартиры отличное, она готова к заселению и представляет собой выгодное вложение в недвижимость с высоким потенциалом для комфортного проживания или стабильной арендной доходности. Код пользователя: 155894Номер в базе:

Читать полностью

    Для того, чтобы купить трехкомнатную квартиру по адресу: Выкса, ул. Симы Битковой, 26, позвоните по телефону +7 (910) 395-01-66. Торопитесь! Объявление №30092422245 о продаже трехкомнатной квартиры опубликовано Вчера.

    Позвонить Написать
    7 000 000 Р89 480 $ или 76 010
    Агент
    +7 (910) 395-01-66
    Начать чат с агентом
    Похожие предложения
    3-к кв. Нижегородская область, Нижний Новгород ул. Вячеслава Шишкова, ... - Фото 1
    3-к кв. Нижегородская область, Нижний Новгород ул. Вячеслава Шишкова, ... - Фото 2
    3-комнатная квартира, общая площадь 41м², кухня 7м²

    Продается 3-комнатная квартира (кухня-гостиная, спальня и кабинет) светлая, тёплая и уютная на пл. Советской. Комфортная квартира с оригинальным и современным ремонтом, качественной мебелью и бытовой техникой. Встроенная кухня, духовой шкаф, холодильник,...
    • 41 м²
    • 3-ком
    • 2/5 эт.
    • кирпичный
    7 100 000 Р
    Агент
    +7 (987) Показать номер
    Посмотреть контакты
    2-к кв. Нижегородская область, Нижний Новгород просп. Ильича, 26 (49.9 ... - Фото 1
    2-к кв. Нижегородская область, Нижний Новгород просп. Ильича, 26 (49.9 ... - Фото 2
    2-комнатная квартира, общая площадь 49м², жилая 32м², кухня 7м²

    Продаётся двухкомнатная квартира в центре Автозаводского района Нижнего Новгорода по адресу: проспект Ильича д. 26. Квартира расположена на первом этаже четырёхэтажного дома. Высота потолков 3 метра. Общая площадь квартиры составляет 49,9 кв. м, из...
    • 49 м²
    • 2-ком
    • 1/4 эт.
    • кирпичный
    7 100 000 Р
    Агент
    +7 (981) Показать номер
    Посмотреть контакты
    3-к кв. Нижегородская область, Кстово ул. Жуковского, 4 (58.0 м) - Фото 1
    3-к кв. Нижегородская область, Кстово ул. Жуковского, 4 (58.0 м) - Фото 2
    3-комнатная квартира, общая площадь 58м², жилая 39м², кухня 6м²

    Арт.Продаю 3-х комнатную квартиру Нижегородская область, г. Кстово, ул. Жуковского д. 4ПАРАМЕТРЫ КВАРТИРЫ:- общая площадь - 58.1 кв. м.- жилая площадь - 39 кв. м.- площадь комнат - 17 + 12+10 кв. м.- площадь кухни - 6 кв. м.ОПИСАНИЕ:Уютная, просторная,...
    • 58 м²
    • 3-ком
    • 1/5 эт.
    • панельный
    6 970 000 Р
    Агент
    +7 (910) Показать номер
    Посмотреть контакты
    3-к кв. Нижегородская область, Нижний Новгород ул. Коминтерна, 22 ... - Фото 1
    3-к кв. Нижегородская область, Нижний Новгород ул. Коминтерна, 22 ... - Фото 2
    3-комнатная квартира, общая площадь 60м², жилая 43м², кухня 7м²

    Продаю 3-х комнатную квартиру ул.Коминтерна д 22Квартира расположена на 1 этаже 9-ти эт.панельного дома.Квартира не угловая, очень тёплая Общий метраж- 60,4 кв.м, жилой-43,5 кв м, кухня-7кв.м.Одна комната изолированная, две-на разные стороны.Лоджия...
    • 60 м²
    • 3-ком
    • 1/9 эт.
    • панельный
    6 900 000 Р
    Агент
    +7 (987) Показать номер
    Посмотреть контакты
    Студия Нижегородская область, Нижний Новгород ул. Ванеева, 40А (23.0 ... - Фото 1
    Студия Нижегородская область, Нижний Новгород ул. Ванеева, 40А (23.0 ... - Фото 2
    студия, общая площадь 23м², жилая 13м², кухня 5м²

    Код объекта: 1898450.Продаётся Уютная Студия в Нижнем Новгороде в ЖК Подкова на Ванеева Квартира находится на 6 этаже 17-этажного кирпичного дома, построенного в 2025 году.Высота потолков 2,8 метра создаёт ощущение простора.Общая площадь квартиры - 23,0...
    • 23 м²
    • студия-ком
    • 6/17 эт.
    • кирпичный
    6 990 000 Р
    Агент
    +7 (987) Показать номер
    Посмотреть контакты

    Не нашли подходящего объявления?

    Оставьте заявку, и наши риэлторы подберут квартиру в районе Выксы

    (0)