2 300 000 Р 28 200 $ или 24 230

Информация о квартире

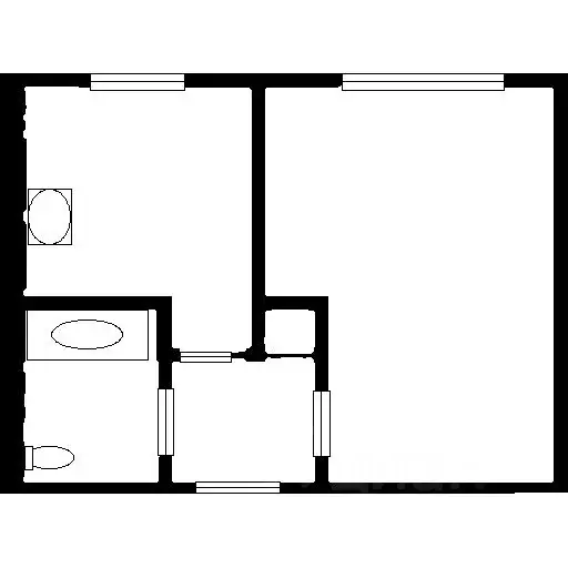
30 м2
Площадь
18 м2
Жилая
5 м2
Кухня
1
Комната
4
Этаж
5
Этажность

Дополнительная информация

Тип дома
кирпичный
Развернуть
Агент
Татьяна Голубева (Владис)
+7 (981) 298-22-57
Начать чат с агентом

1-к кв. Нижегородская область, Заволжье г. Городецкий муниципальный ...

Код объекта: 1820833. Уникальное предложение в ЗаволжьеАдрес: Россия, Нижегородская область, Городецкий муниципальный округ, Заволжье, улица Пушкина, 18.Описание:Представляем вашему вниманию однокомнатную квартиру в кирпичном доме 1976 года постройки. Квартира расположена на 4 этаже 5-этажного дома и обладает рядом преимуществ, которые делают её идеальным выбором для тех, кто ищет комфортное жильё по доступной цене.Основные характеристики:- Общая площадь: 30 кв. м.- Жилая площадь: 18 кв. м.- Площадь кухни: 5 кв. м.- Высота потолков: 2,65 м.- Ремонт: косметический.- Санузел: совмещённый в плитке - Балкон: остеклённый, отделан рейкойПреимущества:Квартира находится в хорошем состоянии и готова к заселению. Благодаря кирпичной конструкции дома и железобетонным перекрытиям обеспечивается высокая надёжность и долговечность. Центральное отопление гарантирует комфорт в холодное время года.Один взрослый собственник, вся сумма в договоре Не нарушались конструкции стен Без долгов и обременений Фото реальные Не упустите возможность стать владельцем этой уютной квартиры в живописном районе Заволжье Один взрослый собственник, вся сумма в договореПозвоните нам прямо сейчас, чтобы узнать больше и записаться на просмотр.Мы гарантируем безопасную сделку и юридическую поддержку нашим Клиентам. Поможем одобрить ипотеку со сниженной ставкой.

Читать полностью

    Для того, чтобы купить однокомнатную квартиру по адресу: Заволжье, ул. Пушкина, 18, позвоните по телефону +7 (981) 298-22-57. Торопитесь! Объявление №30090875809 о продаже однокомнатной квартиры опубликовано Вчера.

    Позвонить Написать
    2 300 000 Р28 200 $ или 24 230
    Агент
    Татьяна Голубева (Владис)
    +7 (981) 298-22-57
    Начать чат с агентом
    Похожие предложения
    1-комнатная квартира: Заволжье, улица Пушкина, 18 (30 м) - Фото 1
    1-комнатная квартира: Заволжье, улица Пушкина, 18 (30 м) - Фото 2
    1-комнатная квартира, общая площадь 30м², жилая 18м², кухня 5м²

    Код объекта: 1820833. Уникальное предложение в ЗаволжьеАдрес: Россия, Нижегородская область, Городецкий муниципальный округ, Заволжье, улица Пушкина, 18.Описание:Представляем вашему вниманию однокомнатную квартиру в кирпичном доме 1976 года постройки....
    • 30 м²
    • 1-ком
    • 4/5 эт.
    2 300 000 Р
    Агент
    +7 (905) Показать номер
    Посмотреть контакты
    3-к кв. Нижегородская область, Заволжье г. Городецкий муниципальный ... - Фото 1
    3-к кв. Нижегородская область, Заволжье г. Городецкий муниципальный ... - Фото 2
    3-комнатная квартира, общая площадь 61м², жилая 34м², кухня 8м²

    Арт.В продаже теплая,уютная 3-х комнатная квартира. В квартире отопление центральное, вода- своя скважина, канализация- септик. Ремонт косметический, чистый, можно заехать без вложений, два пластиковых окна. большая кухня, сан.узел раздельный : ванная...
    • 61 м²
    • 3-ком
    • 1/1 эт.
    2 200 000 Р
    Агент
    +7 (987) Показать номер
    Посмотреть контакты
    1-к кв. Нижегородская область, Заволжье г. Городецкий муниципальный ... - Фото 1
    1-к кв. Нижегородская область, Заволжье г. Городецкий муниципальный ... - Фото 2
    1-комнатная квартира, общая площадь 30м², жилая 16м², кухня 6м²

    Продается уютная однокомнатная квартира в городе Заволжье на проспекте Дзержинского, 22. Общая площадь — 30 кв. м, жилая площадь — 16 кв. м, кухня — 6 кв. м. Квартира расположена на 5 этаже 5-этажного панельного дома, построенного в 1971 году. Высота...
    • 30 м²
    • 1-ком
    • 5/5 эт.
    • панельный
    2 200 000 Р
    Агент
    +7 (919) Показать номер
    Посмотреть контакты
    1-к кв. Нижегородская область, Дзержинск Новомосковская ул., 34 (28.5 ... - Фото 1
    1-к кв. Нижегородская область, Дзержинск Новомосковская ул., 34 (28.5 ... - Фото 2
    1-комнатная квартира, общая площадь 28м², жилая 18м², кухня 5м²

    id:1138. Ваш шанс обрести уютное гнездышко в обжитом и спокойном районе Мы готовы рассмотреть варианты ОБМЕНА вашей квартиры с доплатой в любую сторону Предлагаем к приобретению светлую однокомнатную квартиру, расположенную по адресу: ул. Новомосковская,...
    • 28 м²
    • 1-ком
    • 4/5 эт.
    • кирпичный
    2 390 000 Р
    Агент
    +7 (987) Показать номер
    Посмотреть контакты
    2-к кв. Нижегородская область, Нижний Новгород пос. Березовая Пойма, ... - Фото 1
    2-к кв. Нижегородская область, Нижний Новгород пос. Березовая Пойма, ... - Фото 2
    2-комнатная квартира, общая площадь 46м², кухня 8м²

    Продается уютная двухкомнатная квартира в живописном поселке Березовая Пойма, Нижний Новгород. Общая площадь квартиры составляет 46,5 кв. м, расположена она на втором этаже двухэтажного дома. Это отличный вариант для тех, кто ценит спокойствие и уют загородной...
    • 46 м²
    • 2-ком
    • 2/2 эт.
    2 333 000 Р
    Агент
    +7 (987) Показать номер
    Посмотреть контакты

    Не нашли подходящего объявления?

    Оставьте заявку, и наши риэлторы подберут квартиру в районе Заволжья

    (0)