Реализация объекта недвижимости приостановлена

Информация о квартире

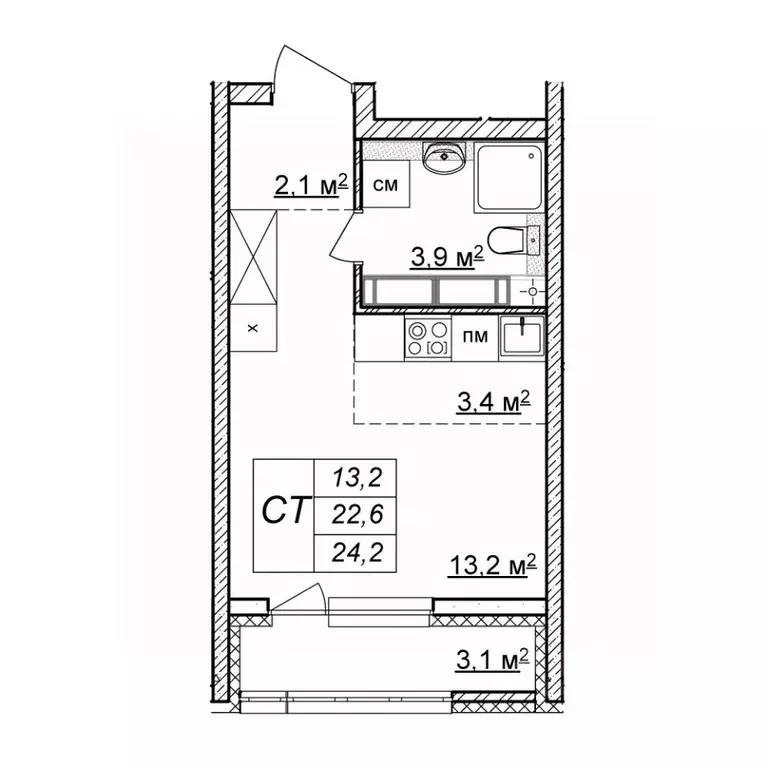
24.0 м2
Площадь
13.0 м2
Жилая
3.0 м2
Кухня
студия
Комнат
6
Этаж
25
Этажность
Развернуть

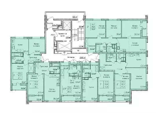
Студия Нижегородская область, Нижний Новгород Кузнечиха Город жилой ...

В продаже квартира 33 , расположенная в доме 13 (по генплану) в ЖК Новая Кузнечиха . Преимуществами квартиры 33 являются:чистовая отделка под ключ, прихожая, отделенная от жилой зоны планировочным решением, лоджия. Срок сдачи - 1 кв. 2027г. Квартиры сдаются с чистовой отделкой, выполненной с использованием современных, безопасных, экологичных и долговечных материалов высокого класса. Интерьер жилых комнат выполнен в нейтральных тонах, что делает его универсальным. Все инженерные коммуникации, стояки водоснабжения и канализации зашиты в короба. Советский район. Экологически чистая среда в близи Щелковского хутора. Остановка общественного транспорта на территории ЖК. В пешеходной доступности от жилого комплекса находится уже развитая инфраструктура Советского района: школы, детские сады, поликлиники, торгово-развлекательные центры , остановки общественного транспорта с развитой сетью маршрутов. На территории ЖК продуманная концепция благоустройства с детскими игровыми комплексами, спортивными площадками, озеленение по всей территории микрорайона. Официальный застройщик - ООО СЗ Инградстрой .

Читать полностью

    Реализация объекта недвижимости приостановлена

    Не нашли подходящего объявления?

    Оставьте заявку, и наши риэлторы подберут квартиру в новостройке в районе Нижнего Новгорода

    (0)